Список изменяющих документов
(в ред. Изменения N 1, утв. Приказом Росстандарта от 25.12.2024 N 2000-ст)
а - вне населенных пунктов; б - в населенных пунктах;
в - на обочине в стесненных условиях
Рисунок В.1 - Типовое размещение знаков в поперечном
профиле дороги
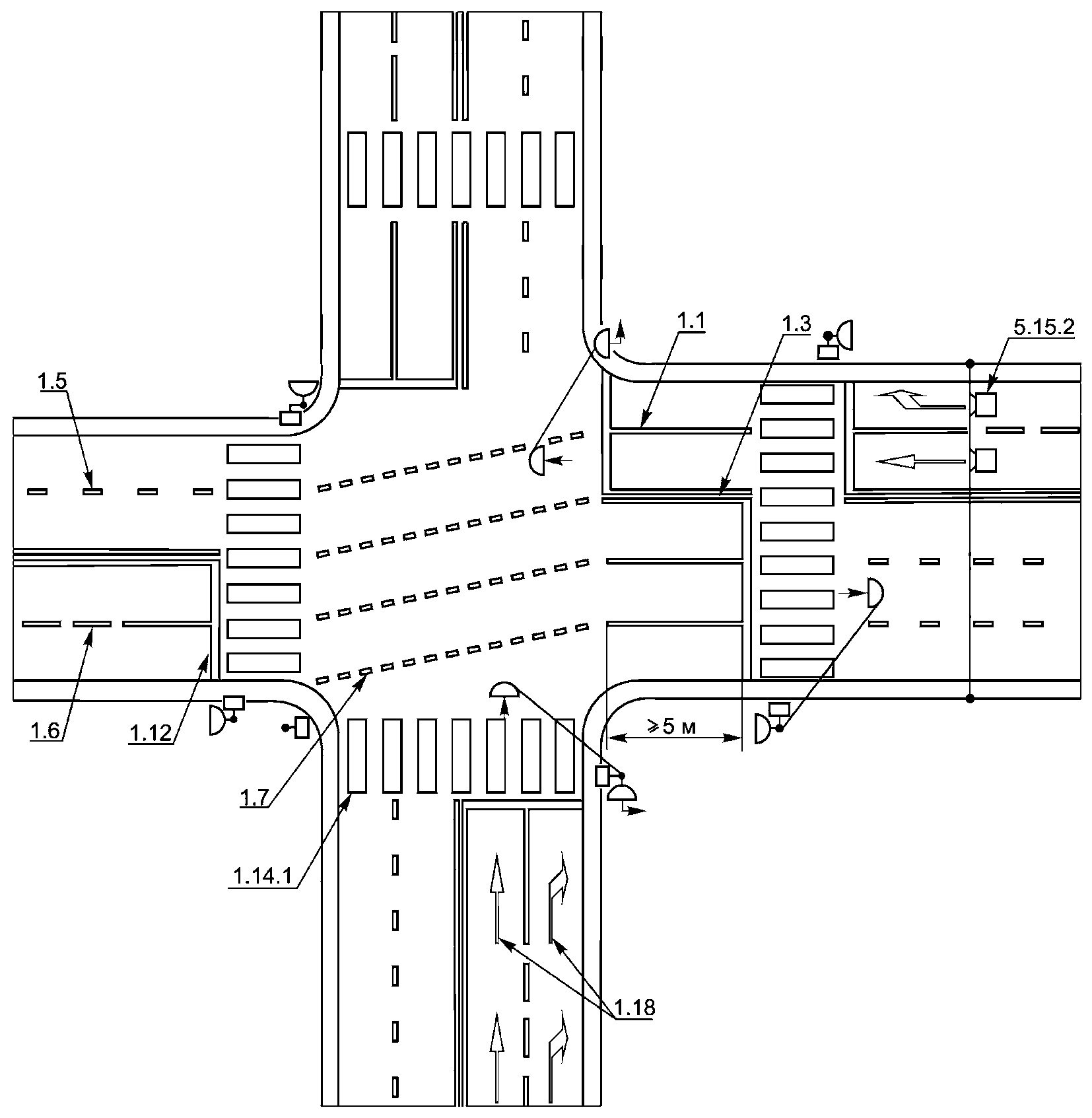
а - при наличии перекрестка между основным знаком и началом
опасного участка; б - при расстоянии между перекрестком
и опасным участком менее 20 м
Рисунок В.2 - Установка предупреждающих знаков

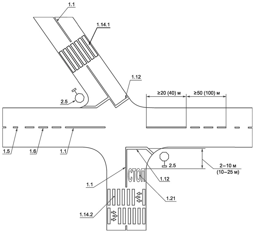
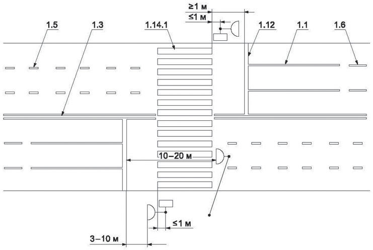
Рисунок В.3 - Размещение знаков 1.4.1 - 1.4.6
Примечание - Пунктиром выделены знаки, установка
которых допускается.
а - в населенном пункте перед перекрестком, на котором
главная дорога изменяет направление; б - в конце
главной дороги
Рисунок В.4 - Размещение знаков приоритета

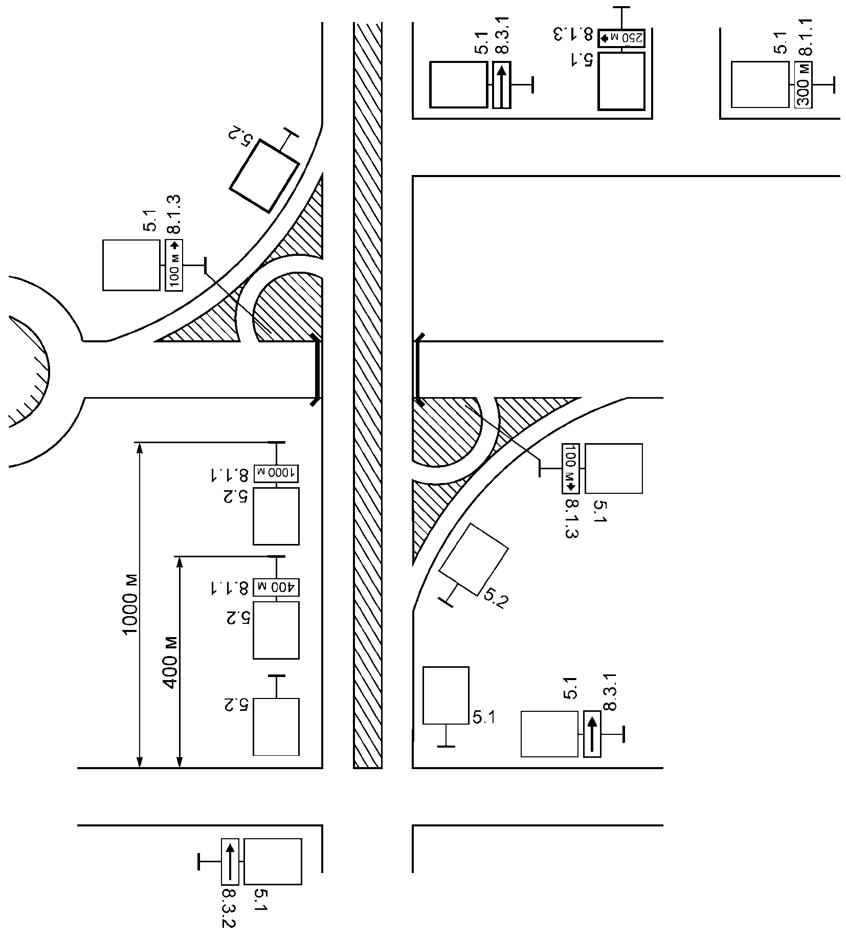
Рисунок В.5 - Пример расстановки знаков 5.1 и 5.2
а - зоны видимости перекрываются; б - зоны видимости
не перекрываются
А, А1 - зоны видимости менее допустимых;
А0 - расстояние между зонами видимости; М, М1 - минимальные
расстояния видимости, обеспечивающие безопасность движения
при данной скорости транспортных средств
(введено Изменением N 1, утв. Приказом Росстандарта
от 25.12.2024 N 2000-ст)
--------------------------------
<*> Допускается вместо нанесения разметки 1.11 продлевать разметку 1.1.
в - видимость автомобиля C и C' на кривой в плане,
ограниченная попутным автомобилем
A, A1 - зоны видимости менее допустимых; M, M1 - минимальные расстояния видимости, обеспечивающие безопасность движения при разрешенной максимальной скорости транспортных средств, установленной на данном участке дороги по таблице 4; C, C' - автомобиль, движущийся по внешней полосе на кривой в плане в начале и конце зоны ограниченной видимости; C1,
- автомобиль, движущийся по внутренней полосе на кривой в плане в начале и конце зоны ограниченной видимости; C2,
- автомобиль, движущийся впереди автомобиля C1,
на расстоянии 10 м; B, B' - место расположения глаз водителя
(введено Изменением N 1, утв. Приказом Росстандарта
от 25.12.2024 N 2000-ст)
--------------------------------
<*> Допускается вместо нанесения разметки 1.11 продлевать разметку 1.1.
Примечание - Условия видимости автомобиля C на кривой в плане определяют путем проведения отрезка M, M' от места расположения глаз водителя B, B' в автомобиле C1, C2 через край обочины (либо край проезжей части, при отсутствии обочины) E, E' до середины полосы движения (предназначенной для встречного движения). Для водителя автомобиля C условия видимости определяются аналогично.
г - видимость автомобиля C, ограниченная дорожными условиями
на кривой в плане
M, M' - минимальные расстояния видимости встречного автомобиля для разрешенной максимальной скорости, установленной на данном участке дороги по таблице 4; D - точка начала обеспечения видимости автомобиля C из автомобиля C1; D' - точка начала ограничения видимости автомобиля C из автомобиля C2.
Рисунок В.6 - Примеры нанесения разметки на участках дорог
с необеспеченной видимостью в зависимости от зоны видимости
встречного автомобиля
(в ред. Изменения N 1, утв. Приказом Росстандарта
от 25.12.2024 N 2000-ст)
(см. текст в предыдущей редакции)
Рисунок В.7 - Пример нанесения разметки
перед нерегулируемым перекрестком с ограниченной видимостью
(в ред. Изменения N 1, утв. Приказом Росстандарта
от 25.12.2024 N 2000-ст)
(см. текст в предыдущей редакции)
а - пример нанесения разметки при уменьшении
количества полос;
б - пример нанесения разметки при увеличении
количества полос
Рисунок В.8 - Пример нанесения разметки при уменьшении
и увеличении количества полос для движения
в одном направлении

Рисунок В.9 - Пример нанесения разметки на регулируемом
перекрестке

Рисунок В.10 - Пример нанесения разметки канализированного
пересечения
(в ред. Изменения N 1, утв. Приказом Росстандарта
от 25.12.2024 N 2000-ст)
(см. текст в предыдущей редакции)
а - пример разметки участка дороги со специальной полосой
для маршрутных транспортных средств без разделительной
полосы; б - пример разметки участка дороги со специальной
полосой для маршрутных транспортных средств
с разделительной полосой
Рисунок В.11 - Пример разметки участка дороги
со специальной полосой для маршрутных транспортных средств

Рисунок В.12 - Пример нанесения разметки 1.16.1 - 1.16.3
(в ред. Изменения N 1, утв. Приказом Росстандарта
от 25.12.2024 N 2000-ст)
(см. текст в предыдущей редакции)
а - пример нанесения разметки в местах организованной
парковки транспортных средств на проезжей части
и прилегающей территории; б - пример нанесения разметки
в местах организованной парковки транспортных средств
с устройством велополосы
Рисунок В.13 - Пример нанесения разметки в местах
организованной парковки транспортных средств

Рисунок В.14 - Пример нанесения разметки в местах остановки
маршрутных транспортных средств

Рисунок В.15 - Пример нанесения разметки 1.17.1 и 1.17.2

Рисунок В.16 - Пример нанесения разметки на участке съезда
с автомагистрали

Рисунок В.17 - Примеры нанесения разметки 1.9
(в ред. Изменения N 1, утв. Приказом Росстандарта
от 25.12.2024 N 2000-ст)
(см. текст в предыдущей редакции)
Рисунок В.18 - Примеры разметки участка дороги на подъезде
к железнодорожному переезду
(в ред. Изменения N 1, утв. Приказом Росстандарта
от 25.12.2024 N 2000-ст)
(см. текст в предыдущей редакции)
Рисунок В.19 - Пример нанесения диагонального пешеходного
перехода
(в ред. Изменения N 1, утв. Приказом Росстандарта
от 25.12.2024 N 2000-ст)
(см. текст в предыдущей редакции)
Рисунок В.20 - Пример размещения светофоров и нанесение
разметки на регулируемом переходе
(в ред. Изменения N 1, утв. Приказом Росстандарта
от 25.12.2024 N 2000-ст)
(см. текст в предыдущей редакции)
Рисунок В.21 - Пример нанесения разметки 1.25

Рисунок В.22 - Пример нанесения разметки 2.1 и 2.2

Рисунок В.23 - Пример нанесения разметки 2.1.1, 2.1.3 и 2.7

Рисунок В.24 - Пример нанесения разметки 2.3 - 2.7
(в ред. Изменения N 1, утв. Приказом Росстандарта
от 25.12.2024 N 2000-ст)
(см. текст в предыдущей редакции)
Рисунок В.25 - Примеры установки светофоров различных типов
и исполнений
(в ред. Изменения N 1, утв. Приказом Росстандарта
от 25.12.2024 N 2000-ст)
(см. текст в предыдущей редакции)
а - к - места установки светофоров по 7.4.1
Рисунок В.26 - Места установки светофоров
а - прогиб; б - рабочая ширина дорожного ограждения
1 - проезжая часть; 2 - укрепительная полоса;
3 - недеформированное ограждение; 4 - деформированное
ограждение; 5 - транспортное средство
Рисунок В.27 - Смещение дорожного ограждения
(в ред. Изменения N 1, утв. Приказом Росстандарта
от 25.12.2024 N 2000-ст)
(см. текст в предыдущей редакции)
1 - проезжая часть; 2 - укрепительная полоса;
3 - недеформированное барьерное ограждение;
4 - деформированное барьерное ограждение; 5 - парапетное
ограждение; 6 - основание ограждения; 7 - массивная опора;
8 - плита мостового сооружения; 9 - тросовое ограждение;
10 - линия разметки 1.2; 11 - ось проезжей части
Рисунок В.28 - Примеры установки дорожных ограждений
(в ред. Изменения N 1, утв. Приказом Росстандарта
от 25.12.2024 N 2000-ст)
(см. текст в предыдущей редакции)
1 - проезжая часть; 2 - бордюрный камень;
3 - недеформированное ограждение; 4 - деформированное
ограждение; 5 - подземные инженерные сети; 6 - тротуар;
7 - массивная опора; 8 - бровка земляного полотна или край
подпорной стены; 9 - газон; 10 - полоса между тротуаром
и бровкой земляного полотна
Рисунок В.29 - Примеры установки дорожных ограждений
1 - барьерное ограждение; 2 - парапетное ограждение;
3 - изгиб балки ограждения; 4 - стойка ограждения;
5 - отгон ограждения; 6 - понижение ограждения на начальном
и конечном участках; 7 - бровка земляного полотна;
8 - основание; 9 - ось разделительной полосы;
10 - сближение рядов ограждения с осью
разделительной полосы
Рисунок В.30 - Примеры устройства начальных и концевых
элементов дорожных ограждений
(введено Изменением N 1, утв. Приказом Росстандарта
от 25.12.2024 N 2000-ст)

- Гражданский кодекс (ГК РФ)
- Жилищный кодекс (ЖК РФ)
- Налоговый кодекс (НК РФ)
- Трудовой кодекс (ТК РФ)
- Уголовный кодекс (УК РФ)
- Бюджетный кодекс (БК РФ)
- Арбитражный процессуальный кодекс
- Конституция РФ
- Земельный кодекс (ЗК РФ)
- Лесной кодекс (ЛК РФ)
- Семейный кодекс (СК РФ)
- Уголовно-исполнительный кодекс
- Уголовно-процессуальный кодекс
- Производственный календарь на 2025 год
- МРОТ 2026
- ФЗ «О банкротстве»
- О защите прав потребителей (ЗОЗПП)
- Об исполнительном производстве
- О персональных данных
- О налогах на имущество физических лиц
- О средствах массовой информации
- Производственный календарь на 2026 год
- Федеральный закон "О полиции" N 3-ФЗ
- Расходы организации ПБУ 10/99
- Минимальный размер оплаты труда (МРОТ)
- Календарь бухгалтера на 2026 год
- Частичная мобилизация: обзор новостей
- Постановление Правительства РФ N 1875























