6. Наконечник и "ершик"
6.1. Электрический наконечник оканчивается "ершиком" (рис. 11), который должен отвечать следующим условиям:
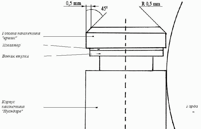
- "ершик" должен быть цилиндрической формы. Его передняя поверхность плоская и перпендикулярна оси. У края он представляет либо закругление радиусом в 0,5 мм, либо фаску в 0,5 мм под углом 45°;
- диаметр буфера "ершика" - 8,0 мм с допуском + 0,05 мм. Диаметр основания не может быть менее 7,7 мм;
- венчик втулки "ершика" так же, как и вся изоляционная прокладка, должны быть достаточно удалены по отношению к буферу (рекомендуется на 0,3 - 0,5 мм по диаметру) для того, чтобы нельзя было вызвать сигнал только при скольжении наконечника под давлением по выпуклой поверхности гарды.

Рис. 11. Наконечник и "ершик" шпаги.
6.2. Давление, которое необходимо оказать на "ершик" для того, чтобы вызвать ток в цепи шпаги и включить, таким образом сигналы аппарата, должно быть более 750 граммов, т.е. этот вес должен выталкиваться пружиной наконечника.
6.3. Вес, используемый для проверки шпаг участников на поле боя, представляет собой цилиндр из металла, имеющий на одном своем торце отверстие, параллельное бортам. Это отверстие, куда вставляется конец клинка, должно быть снабжено изолирующей трубкой для того, чтобы металлическая часть этого веса не вступала бы в контакт с массой шпаги и не давала бы, таким образом ошибочных результатов в ходе контроля. Этот вес в 750 гр., предоставляемый организационным комитетом, может иметь допуск +/- 3 гр. (а именно, 747 гр. - 753 гр.).
6.4. Ход "ершика", необходимый для замыкания электрической цепи шпаги, вызывающей срабатывание ламп электрофиксатора, так называемый "ход зажигания", должен быть более 1,0 мм. Дальнейший ход "ершика" должен быть менее 0,5 мм (правило столь же обязательное, как и предыдущее, касающееся хода зажигания).
6.5. Для того, чтобы можно было осуществить контроль на поле боя, общий ход должен быть более 1,5 мм.
6.6. Запрещено регулировать ход зажигания уже собранного на оружии наконечника, используя для этого винт или другое внешнее приспособление.
6.7. Внешний винт или подобное приспособление разрешаются только для монтажа наконечника.
6.8. Головка винта или приспособления ни в коем случае не должны выходить за плоскую переднюю поверхность корпуса наконечника. А гнездо винта на этой плоской поверхности не должно быть более 2,0 мм по диаметру.
6.9. "Ершик" должен удерживаться в наконечнике по крайней мере в двух точках, находящихся на равном расстоянии, или посредством другой системы, принятой Технической комиссией.
6.10. Когда происходит укол, электрический контакт должен быть установлен.
- Гражданский кодекс (ГК РФ)
- Жилищный кодекс (ЖК РФ)
- Налоговый кодекс (НК РФ)
- Трудовой кодекс (ТК РФ)
- Уголовный кодекс (УК РФ)
- Бюджетный кодекс (БК РФ)
- Арбитражный процессуальный кодекс
- Конституция РФ
- Земельный кодекс (ЗК РФ)
- Лесной кодекс (ЛК РФ)
- Семейный кодекс (СК РФ)
- Уголовно-исполнительный кодекс
- Уголовно-процессуальный кодекс
- Производственный календарь на 2025 год
- МРОТ 2026
- ФЗ «О банкротстве»
- О защите прав потребителей (ЗОЗПП)
- Об исполнительном производстве
- О персональных данных
- О налогах на имущество физических лиц
- О средствах массовой информации
- Производственный календарь на 2026 год
- Федеральный закон "О полиции" N 3-ФЗ
- Расходы организации ПБУ 10/99
- Минимальный размер оплаты труда (МРОТ)
- Календарь бухгалтера на 2026 год
- Частичная мобилизация: обзор новостей
- Постановление Правительства РФ N 1875