Приложение 7

к Правилам МТ

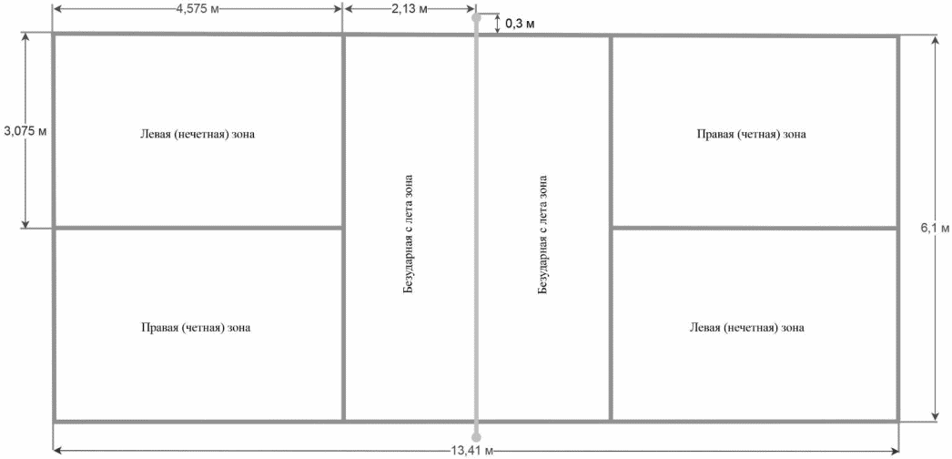
ПЛАН КОРТА МТ

Рисунок 7

Рисунок 7

Примечание: Все измерения производятся до внешнего края линий.