2.1. Размещение и крепление непакетированных круглых лесоматериалов длиной 3,0 м и более в полувагонах.
2.1.1. Круглые лесоматериалы в штабеле размещают комлями в противоположные стороны приблизительно в равных количествах: в прямоугольной части штабеля - поштучно или пачками, в "шапке" штабеля - поштучно.
2.1.2. Изготовление подкладок и прокладок, установку и скрепление ограждающих стоек, формирование штабелей осуществляют в соответствии с положениями пункта 1 настоящей главы. Каждый штабель в зависимости от его длины ограждают: при длине до 3,5 м включительно - двумя парами стоек; от 3,5 до 5,5 м включительно - тремя парами стоек; более 5,5 м - четырьмя парами стоек. При размещении в середине вагона штабеля длиной до 4,5 м включительно его ограждают двумя парами стоек. При погрузке лесоматериалов ниже верхнего обвязочного бруса полувагона боковые стойки допускается не устанавливать.
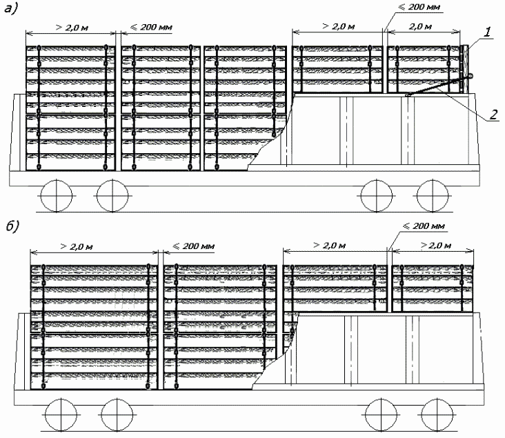
2.1.3. При размещении лесоматериалов несколькими штабелями каждый штабель, расположенный в середине полувагона, размещают с опорой на две подкладки. Крайние штабели размещают:
- в пределах основного габарита погрузки - с опорой на подкладку и утолщенную подкладку (рисунки 3б, 4а, 6а) или на подкладку и торцевой порожек (рисунки 3а, 5а, 7а);
- в пределах зонального габарита погрузки - с опорой на утолщенную подкладку (рисунки 4б, 6б) или на торцевой порожек (рисунки 5б, 7б).
Подкладки устанавливают на расстоянии 500 - 800 мм от концов штабеля.
Допускается разделять прямоугольную часть штабеля по высоте прокладками.
Удлиненные прокладки должны опираться не менее чем на 2 - 3 бревна
(сортимента), расположенные в средней части яруса, и на бревна (сортименты), прилегающие к ограждающим стойкам. Крайние бревна (сортименты) в ярусе, размещенном на удлиненных прокладках, должны прилегать к стойкам.
При размещении лесоматериалов в полувагоне с открытыми дверями наружные концы крайних штабелей укладывают на торцевые порожки полувагона; в этом случае утолщенные подкладки и прокладки не применяют.
Рисунок 3 - Размещение и крепление круглых лесоматериалов
в пределах основного габарита погрузки четырьмя штабелями:
а) в полувагоне с открытыми дверями;
б) в пределах кузова полувагона
1 - увязка из проволоки или шестизвенная стяжка;
2 - удлиненная прокладка; 3 - стойка; 4 - стяжка;
5 - подкладка; 6 - средняя увязка "шапки";
7 - утолщенная подкладка
Рисунок 4 - Размещение и крепление круглых лесоматериалов
тремя штабелями в пределах длины кузова полувагона:
а) в пределах основного габарита погрузки;
б) в пределах зонального габарита погрузки
1 - увязка из проволоки или шестизвенная стяжка;
2 - удлиненная прокладка; 3 - стойка; 4 - стяжка;
5 - подкладка; 6 - средняя увязка "шапки";
7 - утолщенная подкладка
Рисунок 5 - Размещение и крепление круглых лесоматериалов
тремя штабелями в полувагоне с открытыми дверями:
а) в пределах основного габарита погрузки;
б) в пределах зонального габарита погрузки
1 - увязка из проволоки или шестизвенная стяжка;
2 - удлиненная прокладка; 3 - стойка; 4 - стяжка;
5 - подкладка; 6 - средняя увязка "шапки"
Рисунок 6 - Размещение и крепление круглых лесоматериалов
двумя штабелями в пределах длины кузова полувагона:
а) в пределах основного габарита погрузки;
б) в пределах зонального габарита погрузки
1 - увязка из проволоки или шестизвенная стяжка;
2 - удлиненная прокладка; 3 - стойка; 4 - стяжка;
5 - подкладка; 6 - средняя увязка "шапки";
7 - утолщенная подкладка
Рисунок 7 - Размещение и крепление круглых лесоматериалов
двумя штабелями в полувагоне с открытыми дверями:
а) в пределах основного габарита погрузки;
б) в пределах зонального габарита погрузки
1 - увязка из проволоки или шестизвенная стяжка;
2 - удлиненная прокладка; 3 - стойка; 4 - стяжка;
5 - подкладка; 6 - средняя увязка "шапки"
2.1.4. Лесоматериалы длиной от 10,0 до 12,0 м включительно размещают одним штабелем с использованием основного или зонального габарита погрузки. Стойки устанавливают во все лесные скобы, расположенные в пределах длины штабеля, за исключением скоб, находящихся на расстоянии менее 500 мм от его торцов (рисунок 8). Штабель размещают с опорой на четыре подкладки. "Шапку" штабеля формируют на четырех удлиненных прокладках и скрепляют тремя средними увязками.
Рисунок 8 - Размещение и крепление круглых
лесоматериалов одним штабелем
1 - увязка из проволоки или шестизвенная стяжка;
2 - удлиненная прокладка; 3 - стойка; 4 - стяжка;
5 - подкладка; 6 - средняя увязка "шапки"
2.1.5. После погрузки лесоматериалов в прямоугольной части штабеля производят скрепление противоположных боковых стоек стяжками на уровне погрузки в соответствии с таблицей 1.
2.1.6. Формирование "шапки" производят следующим порядком (рисунок 9). На круглые лесоматериалы верхнего яруса прямоугольной части штабеля на расстоянии 500 - 800 мм от его концов укладывают две удлиненные прокладки.
Рисунок 9 - "Шапка", сформированная:
а) в пределах основного габарита погрузки;
б) в пределах зонального габарита погрузки
1 - стойка; 2 - удлиненная прокладка; 3 - увязка
из проволоки или шестизвенная стяжка
На удлиненных прокладках на расстоянии не менее 50 мм от их торцов должны быть выполнены зарубки глубиной 10 - 15 мм.
Скрепление лесоматериалов в "шапке" производят увязками из проволоки диаметром 6 мм в две нити или шестизвенными стяжками (рисунок 2б).
Увязки из проволоки закрепляют за выступающие концы удлиненных прокладок, при этом должны быть выполнены два оборота проволоки вокруг прокладки по зарубкам. Лесоматериалы в "шапке" с использованием шестизвенных стяжек увязывают следующим образом. Большое ушко стяжки заводят на зарубки удлиненной прокладки и фиксируют на ней двумя гвоздями длиной не менее 70 мм или проволокой диаметром не менее 5 мм. Малое ушко закрепляют к другому концу прокладки стяжкой из проволоки диаметром 6 мм в две нити, при этом должно быть выполнено не менее двух оборотов проволоки вокруг прокладки.
Посередине между удлиненными прокладками (рисунки 3 - 8) "шапку" дополнительно скрепляют средней увязкой (увязками) из проволоки диаметром 6 мм в две нити.
При формировании "шапки" должны соблюдаться положения пункта 1.3 настоящей главы, а также следующие дополнительные условия:
- толщина круглых лесоматериалов в "шапке" при погрузке с использованием зонального габарита погрузки должна быть не более 300 мм;
- укладка круглых лесоматериалов в первом ярусе "шапки" между стойками должна быть без зазоров между бревнами и стойками. Возвышение примыкающих к стойкам круглых лесоматериалов над стойками не должно превышать 1/4 толщины этих круглых лесоматериалов;
- круглые лесоматериалы каждого яруса размещают во впадинах между соседними круглыми лесоматериалами нижележащего яруса;
- крайние сортименты (бревна) ярусов "шапки" подбирают таким образом, чтобы толщина вышележащих сортиментов (бревен) не превышала толщины нижележащих;
- при размещении круглых лесоматериалов в пределах основного габарита погрузки угол откосов "шапки" (угол наклона к горизонту общей касательной к любым двум соседним сортиментам (бревнам)) должен быть не более 50°.
2.1.7. При погрузке круглых лесоматериалов в полувагоны с открытыми или закрытыми дверями в зависимости от применяемых при выгрузке технологий и механизмов допускается формировать "шапку" без удлиненных прокладок (рисунок 10) с соблюдением требований пунктов 2.1.1 - 2.1.3, 2.1.5, 2.1.6 настоящей главы к размещению и формированию штабелей, за исключением случаев погрузки одним штабелем.
1 - боковая стойка; 2 - стяжка; 3 - увязка "шапки"
При формировании штабелей без удлиненных прокладок скрепление боковых стоек четырехзвенными стяжками и увязка "шапки" шестизвенными стяжками не допускается. Скрепление стоек производится стяжками из проволоки. Скрепление "шапки" производится тремя увязками из проволоки диаметром 6 мм в две нити, при этом две крайние увязки располагают на расстоянии 500 - 800 мм от концов "шапки", третью увязку - посередине ее длины.
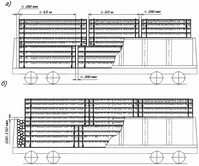
2.1.8. Свежеокоренные лесоматериалы и лесоматериалы с невысохшим покрытием (пропиткой) перевозят в полувагонах с закрытыми дверями с размещением несколькими штабелями. Формирование и размещение штабелей в полувагоне производят в пределах прямоугольной части основного габарита погрузки (до высоты 4000 мм от УГР) в соответствии с положениями пунктов 2.1.1 - 2.1.3 настоящей главы.
Для ограждения прямоугольных частей штабелей, расположенных выше торцевых дверей (стен) полувагона, применяют торцевые щиты (рисунок 11).
а) на двух стойках; б) на трех стойках
1 - стойка; 2 - доска; 3 - перекладина;
4 - связь; 5 - увязка
Щит изготавливают из стоек, аналогичных боковым стойкам, и досок сечением не менее 40 x 150 мм или горбыля толщиной не менее 50 мм и длиной, равной внутренней ширине полувагона.
Доски (поз. 2) закрепляют к стойкам (поз. 1) со стороны груза гвоздями длиной не менее 120 мм по два гвоздя в каждое соединение. Допускается взамен досок использовать жерди толщиной 60 - 80 мм. Зазоры между досками (жердями) должны быть не более половины их ширины (толщины). Высота h (рисунок 11) от пола полувагона до нижней доски щита должна быть меньше высоты верхнего обвязочного бруса полувагона на 100 - 150 мм. На расстоянии 100 - 150 мм от верха стоек к ним со стороны, противоположной доскам, закрепляют перекладину (поз. 3) из круглого лесоматериала толщиной 100 - 130 мм и длиной, превышающей длину досок на 75 - 100 мм с каждой стороны. Перекладину закрепляют гвоздями длиной 150 - 200 мм по два в каждое соединение и увязками из проволоки диаметром не менее 5 мм в две нити. На перекладине на расстоянии 50 - 75 мм от ее концов выполняют зарубки глубиной 15 - 20 мм для закрепления растяжек. В нижней части стойки скрепляют связью (поз. 4) из доски аналогично доскам щита.
Круглые элементы щита в местах соединения друг с другом должны быть затесаны для плотного прилегания.
Собранный щит закрепляют в полувагоне (рисунок 12) двумя растяжками (поз. 2) из проволоки диаметром 6 мм в две нити за концы перекладины щита и за верхние увязочные устройства полувагона (рисунок 12а) или досками (поз. 6) сечением не менее 30 x 100 мм, которые закрепляют к крайним стойкам щита и ближайшим боковым стойкам, ограждающим груз (рисунок 12б), гвоздями длиной не менее 100 мм по три гвоздя в каждое соединение.
Рисунок 12 - Установка торцевых щитов в полувагоне:
а) крепление щита растяжками; б) крепление щита досками;
в) установка щита при наличии зазора
1 - щит; 2 - растяжка; 3 - стойка; 4 - стяжка;
5 - подкладка; 6 - доска
Если суммарная длина штабелей меньше внутренней длины полувагона, один из торцевых щитов устанавливают вплотную к торцевым дверям (стене), второй - вплотную к торцу последнего штабеля; зазор между этим щитом и торцевыми дверями (стеной) полувагона заполняют лесоматериалами, располагаемыми горизонтально поперек полувагона до уровня ниже верхнего обвязочного бруса полувагона на 100 - 150 мм (рисунок 12в). При погрузке лесоматериалов ниже уровня верхнего обвязочного бруса полувагона торцевые щиты не устанавливают, зазор между штабелем и дверями (стеной) полувагона заполняют лесоматериалами, располагаемыми горизонтально поперек полувагона до уровня ниже верхнего обвязочного бруса на 100 - 150 мм.
2.1.9. Допускается размещение круглых лесоматериалов длиной не менее 3,0 м в пределах прямоугольной части основного габарита погрузки (без "шапки"), а также лесоматериалов в пределах прямоугольной части зонального габарита погрузки (без "шапки") в полувагонах в соответствии с положениями пунктов 2.1.1 - 2.1.4 настоящей главы (рисунки 3 - 8). Лесоматериалы размещают ниже верхних торцов стоек не менее чем на 150 мм (рисунок 13). Несколько верхних ярусов сортиментов высотой не менее 600 мм скрепляют увязками из проволоки диаметром 6 мм в две нити:
- при длине лесоматериалов до 4,0 м включительно - двумя увязками;
- при длине лесоматериалов более 4,0 м - тремя увязками.
Противоположные боковые стойки скрепляют стяжками в соответствии с таблицей 1 таким образом, чтобы расстояние от стяжки до поверхности груза составляло не менее 50 мм.
1 - стойка; 2 - увязка; 3 - стяжка
2.2. Размещение и крепление непакетированных круглых лесоматериалов длиной менее 3,0 м в полувагонах.
2.2.1. Непакетированные круглые лесоматериалы длиной менее 3,0 м размещают в полувагонах в пределах основного габарита погрузки.
2.2.2. Размещение круглых лесоматериалов длиной от 1,8 до 3,0 м производят с применением торцевых щитов (рисунок 14).
1 - крайняя стойка; 2 - средняя стойка; 3 - доска;
4 - связь; 5 - перекладина; 6 - увязка
Щит изготавливают из четырех стоек толщиной не менее 100 мм в верхнем отрубе и досок сечением не менее 40 x 150 мм (горбыля толщиной не менее 50 мм). Длина средних стоек должна быть не более 3700 мм, длина крайних стоек - равной высоте боковых стоек. Размеры досок, связей, толщина перекладин и способ их скрепления аналогичны изложенному в пункте 2.1.8 настоящей главы.
Очертание верхней части щита должно иметь форму равносторонней трапеции в соответствии с рисунком 14.
Высота h (рисунок 14) от пола полувагона до нижней доски щита должна быть меньше высоты верхнего обвязочного бруса полувагона на 100 - 150 мм.
Собранный щит устанавливают и закрепляют в соответствии с положениями пункта 2.1.8 настоящей главы.
Формирование и крепление штабелей выполняют в соответствии с положениями пунктов 2.1.1 - 2.1.3, 2.1.5, 2.1.6 настоящей главы. При этом должны соблюдаться следующие особенности (рисунок 15):
- подкладки устанавливают на расстоянии 300 - 500 мм от концов штабеля;
- удлиненные прокладки "шапок" двух соседних штабелей в каждом торце полувагона должны находиться по отношению к ближайшим боковым стойкам со стороны середины полувагона;
- соседние удлиненные прокладки двух соседних штабелей в каждом торце полувагона должны быть скреплены между собой увязкой из проволоки диаметром 6 мм в четыре нити.
1 - торцевой щит; 2 - утолщенная подкладка; 3 - подкладка;
4 - стойка; 5 - увязка из проволоки или шестизвенная стяжка;
6 - средняя увязка "шапки"; 7 - удлиненная прокладка;
8 - растяжка; 9 - стяжка; 10 - увязка удлиненных прокладок;
11 - лесоматериалы, уложенные поперек полувагона
Если суммарная длина штабелей меньше внутренней длины полувагона, один из торцевых щитов устанавливают вплотную к торцевым дверям (стене), второй - вплотную к торцу последнего штабеля; зазор между этим щитом и торцевыми дверями (стеной) полувагона заполняют лесоматериалами, располагаемыми горизонтально поперек полувагона до уровня ниже верхнего обвязочного бруса полувагона на 100 - 150 мм.
Допускается штабели лесоматериалов длиной свыше 2,5 м до 3,0 м формировать без установки удлиненных прокладок под "шапку" при соблюдении требований пункта 2.1.7 настоящей главы.
2.2.3. Размещение лесоматериалов длиной свыше 2,5 м до 2,8 м включительно с применением торцевых щитов и устройством ограждения боковых стен полувагона грузом (рисунок 16) производят следующим порядком.
1 - торцевой щит; 2 - удлиненная прокладка;
3 - лесоматериалы ограждения боковых стен; 4 - прокладка;
5 - увязка из проволоки или шестизвенная стяжка; 6 - средняя
увязка "шапки"; 7 - подкладка; 8 - растяжка; 9 - утолщенная
прокладка; 10 - лесоматериалы, уложенные поперек полувагона
Лесоматериалы для ограждения боковых стен устанавливают вертикально в один ряд вплотную друг к другу. Лесоматериалы, установленные у лесных скоб, закрепляют к ним увязками из проволоки диаметром 6 мм в две нити. В местах предполагаемого размещения удлиненных прокладок ограждение не устанавливают.
Торцевые щиты устанавливают и закрепляют в соответствии с положениями пункта 2.2.2 настоящей главы.
Лесоматериалы размещают в полувагоне несколькими штабелями по длине. Формирование штабелей выполняют в соответствии с положениями пунктов 2.1.1, 2.1.3, 2.1.6 настоящей главы. Прямоугольную часть штабеля разделяют по высоте на две части прокладками. В штабелях, расположенных в торцах полувагона, со стороны дверей укладывают утолщенные прокладки.
Если суммарная длина штабелей меньше внутренней длины полувагона, один из торцевых щитов устанавливают вплотную к дверям, второй - вплотную к торцу последнего штабеля; зазор между этим щитом и торцевыми дверями (стеной) полувагона заполняют лесоматериалами, располагаемыми горизонтально поперек полувагона до уровня ниже верхнего обвязочного бруса полувагона на 100 - 150 мм.
2.2.4. Размещение лесоматериалов длиной свыше 1,0 м до 2,0 м включительно производят в несколько штабелей по длине вагона встык без использования подкладок и прокладок. По всему периметру полувагона устанавливают ограждение из груза (рисунок 17).
1 - круглый лесоматериал ограждения; 2 - скрепляющая доска;
L - длина круглых лесоматериалов
Сортименты, используемые для устройства ограждения, устанавливают таким образом, чтобы возвышение их над верхним обвязочным брусом полувагона составляло не более 0,4 их длины при условии соблюдения основного габарита погрузки; ограждение устанавливают после размещения лесоматериалов до соответствующей высоты от уровня пола полувагона. Сортименты ограждения дверей (торцевых стен) скрепляют друг с другом доской (горбылем) толщиной не менее 30 мм и длиной 2,9 - 3,0 м. Доску (горбыль) устанавливают "на ребро" с внутренней стороны ограждения с опорой на верхний обвязочный брус полувагона и закрепляют к крайним и двум средним лесоматериалам ограждения гвоздями длиной не менее 100 мм по два в каждое соединение.
Лесоматериалы укладывают горизонтально до уровня ниже верхней кромки ограждения не менее чем на 50 мм. Зазор между торцевым ограждением и погруженными лесоматериалами заполняют круглыми лесоматериалами, располагаемыми горизонтально поперек вагона ниже верхней кромки ограждения на 50 - 100 мм.
Допускается выполнять ограждение из досок (горбыля) толщиной не менее 30 мм. При этом груз ограждают восемью парами боковых стоек и шестью торцевыми стойками (рисунок 18). Скрепление стоек не устанавливают.
1 - стойка; 2 - доска ограждения; 3 - увязка
Доски (горбыль) ограждения закрепляют гвоздями длиной не менее 100 мм с внутренней стороны стоек по два гвоздя в каждое соединение. Длина досок (горбыля), прибиваемых к торцевым стойкам, должна быть не менее ширины полувагона. Крайние торцевые и боковые стойки скрепляют между собой проволокой диаметром 6 мм в две нити.
2.2.5. При размещении лесоматериалов длиной 1,0 м по всему периметру полувагона устанавливают два ряда ограждения груза (рисунок 19).
1 - первый ряд ограждения; 2 - второй ряд ограждения;
3 - доска скрепления второго торцевого ряда ограждения
Размещение лесоматериалов производят следующим порядком. Лесоматериалы размещают штабелями вдоль полувагона до высоты на 0,6 м ниже уровня верхнего обвязочного бруса полувагона без подкладок и прокладок. Затем на размещенные горизонтально круглые лесоматериалы устанавливают по периметру полувагона вплотную к стенам и дверям сплошной первый ряд ограждения из круглых лесоматериалов (груза) одинаковой толщины. Сортименты, используемые для устройства ограждения, устанавливают таким образом, чтобы возвышение их над верхним обвязочным брусом полувагона составляло не более 0,4 их длины. После установки первого ряда ограждения лесоматериалы укладывают горизонтально вплотную к ограждению на высоту 400 мм. Затем на размещенные горизонтально круглые лесоматериалы вплотную к первому ряду ограждения устанавливают второй сплошной вертикальный ряд ограждения таким образом, чтобы возвышение его кромки над кромкой первого ряда составляло не более 400 мм. Сортименты второго ряда торцевого ограждения скрепляют между собой доской (горбылем) толщиной не менее 30 мм и длиной, равной ширине второго ряда. Доску (горбыль) устанавливают с внутренней стороны ограждения "на ребро" с опорой на погруженные лесоматериалы и закрепляют к крайним и двум средним лесоматериалам гвоздями длиной не менее 100 мм по два в каждое соединение. После установки второго ряда ограждения лесоматериалы укладывают горизонтально вдоль вагона до уровня ниже верхней кромки второго ряда ограждения не менее чем на 50 мм. Зазор между торцевым ограждением и погруженными лесоматериалами заполняют лесоматериалами, располагаемыми горизонтально поперек вагона ниже уровня ограждения на 50 - 100 мм.
2.3. Допускается размещать в одном полувагоне круглые лесоматериалы длиной 3,0 м и более совместно с лесоматериалами длиной менее 3,0 м (рисунок 20).
а) в полувагоне с открытыми дверями;
б) в пределах длины кузова
1 - увязка из проволоки или шестизвенная стяжка;
2 - удлиненная прокладка; 3 - стойка; 4 - стяжка;
5 - утолщенная подкладка; 6 - средняя увязка "шапки"
Под крайние штабели со стороны торцов вагона укладывают утолщенные подкладки: при размещении с открытыми дверями - вплотную к торцевым порожкам полувагона, при размещении в пределах длины кузова - на расстоянии от концов штабеля 500 - 800 мм. Штабели формируют из трех частей по высоте. До высоты стен полувагона в торцевых частях размещают штабели длиной 3,0 м и более; между ними в средней части полувагона размещают штабели длиной менее 3,0 м. Выход лесоматериалов нижних штабелей за концевую балку полувагона допускается не более 200 мм. Затем до высоты прямоугольной части соответствующего габарита погрузки размещают штабели длиной 3,0 м и более таким образом, чтобы они перекрывали стыки нижележащих штабелей. Далее размещают штабели шапки из лесоматериалов длиной 3,0 м и более. Формирование штабелей и установку средств крепления лесоматериалов производят в соответствии с положениями пункта 2.1 настоящей главы. Не допускается выход по длине верхних штабелей за торцы нижних штабелей. Крайние стойки изготавливают высотой, превышающей высоту ограждаемого штабеля не менее чем на 150 мм.
2.4. Размещение и крепление пакетированных круглых лесоматериалов длиной до 8,0 м включительно.
2.4.1. Перевозка пакетов длиной менее 1,5 м, а также пакетов свежеокоренных или с невысохшим покрытием (пропиткой) лесоматериалов независимо от длины допускается только в полувагонах с закрытыми дверями в пределах основного габарита погрузки с установкой торцевых щитов.
Размещение и крепление пакетов лесоматериалов в пределах зонального габарита погрузки допускается только в полувагонах с внутренней высотой кузова не менее 2060 мм.
2.4.2. Пакеты из круглых лесоматериалов формируют с использованием многооборотных полужестких стропов (ГОСТ 14110) типа ПС-04 грузоподъемностью 3000 кг и типа ПС-05 грузоподъемностью 7500 кг.
2.4.3. Пакеты из круглых лесоматериалов, размещаемые в полувагонах, должны иметь параметры, приведенные в таблице 2.
|
Короткомерные круглые и колотые лесоматериалы (рудничная стойка, пропсы, балансы, дрова и др.) |
------ 2700 |
------ 1750 |
|||
|
------ 2700 |
------ 1750 |
||||
1. Значения ширины (B) и высоты (H) приведены для пакетов, находящихся в пакетоформирующем устройстве.
2. Значения ширины и высоты пакетов приведены: в числителе - при размещении в пределах основного габарита погрузки, в знаменателе - зонального габарита погрузки.
3. Значения высоты (H) приведены для пакетов прямоугольного очертания.
4. Пакеты шириной 2500 мм предназначены для размещения в дверном проеме полувагонов.
Пакеты из круглых лесоматериалов, предназначенные для размещения на платформах, должны иметь длину 3,0 - 8,0 м, ширину 2700 мм и высоту не более 1750 мм.
При погрузке в пределах основного габарита погрузки для размещения в нижнем ярусе формируют пакеты прямоугольного очертания (рисунок 21а), для размещения в верхнем ярусе - пакеты, имеющие верхнюю часть в форме трапеции (рисунок 21б), при этом их высота (H1) определяется размерами звеньев замыкающей стяжки стропа. При погрузке в пределах зонального габарита для размещения в обоих ярусах формируют пакеты прямоугольного очертания (рисунок 21а).
1 - грузовая тяга; 2 - цепной замыкающий конец;
3 - проволочная увязка; 4 - петлевой замок;
5 - замыкающая стяжка
2.4.4. Пакеты из круглых лесоматериалов длиной от 1 до 6,5 м включительно массой не более 15 т увязывают двумя стропами в соответствии с таблицей 2. Стропы размещают на расстоянии друг от друга не менее половины длины пакета на равном удалении от торцов пакета, но не менее 300 - 500 мм от торцов.
Пакеты лесоматериалов длиной свыше 6,5 м и пакеты массой более 15 т увязывают четырьмя стропами ПС-05. Стропы размещают парами на равном удалении от торцов пакета. Расстояние между стропами в паре должно быть 250 - 300 мм; расстояние между внутренними стропами пар - 3000 - 3500 мм (рисунок 22).
Замыкание стропов осуществляют, пропуская свободный конец цепи в петлевой замок с последующей фиксацией цепи увязкой из проволоки диаметром не менее 4 мм, концы которой скручивают между собой не менее трех раз. Стропы на пакете должны быть плотно затянуты (рисунок 23).
1 - петлевой замок; 2 - цепной замыкающий конец;
3 - проволочная увязка
2.4.5. Допускается формирование пакетов из круглых лесоматериалов длиной менее 1,0 м стыкованием по длине. В таких пакетах по периметру поперечного сечения должны быть уложены круглые лесоматериалы длиной, равной суммарной длине уложенных в пакет лесоматериалов. Выход отдельных круглых лесоматериалов за торцы пакета не допускается.
2.4.6. Пакеты лесоматериалов в полувагоне размещают несколькими штабелями по его длине без применения стоек, подкладок и прокладок. Штабель формируют из двух пакетов по высоте.
2.4.7. Пакеты из круглых лесоматериалов длиной 3,0 - 8,0 м на платформе (рисунок 24) размещают в пределах основного габарита погрузки в два яруса по высоте без подкладок и прокладок.
1 - стойка; 2 - стяжка
Штабели ограждают стойками, устанавливаемыми во все боковые стоечные скобы по длине погрузки. После размещения пакетов первого яруса на платформе каждую пару противоположных боковых стоек скрепляют стяжкой из проволоки диаметром 6 мм в четыре нити или четырехзвенной стяжкой.
Допускается размещать на одной платформе пакеты из круглых лесоматериалов различной длины при условии, что суммарная длина пакетов не превышает длины пола платформы. В этом случае пакеты из круглых лесоматериалов размещают по длине платформы таким образом, чтобы стык нижних пакетов перекрывался одним из верхних пакетов. Суммарная длина верхних пакетов должна быть не более суммарной длины нижних пакетов.
2.4.8. Пакеты из лесоматериалов длиной от 1,5 до 2,0 м включительно перевозят только в полувагонах с торцевыми стенами или закрытыми дверями с установкой торцевых щитов. Пакеты размещают с использованием основного или зонального габарита погрузки несколькими штабелями по длине (рисунки 25, 26).
1 - торцевой щит; 2 - растяжка
1 - торцевой щит; 2 - растяжка
Щиты изготавливают в соответствии с положениями пункта 2.2.2 настоящей главы. При погрузке в пределах зонального габарита крайние стойки щита должны иметь длину не более 3260 мм. Щиты устанавливают и закрепляют в полувагоне растяжками из проволоки диаметром 6 мм в две нити за верхние увязочные устройства полувагона. Пакеты размещают вплотную к торцевым щитам и друг к другу.
Если суммарная длина штабелей меньше внутренней длины полувагона, один из торцевых щитов устанавливают вплотную к дверям, второй - вплотную к торцу последнего штабеля; зазор между этим щитом и дверями полувагона заполняют лесоматериалами, располагаемыми горизонтально поперек вагона ниже уровня верхнего обвязочного бруса полувагона на 100 - 150 мм (рисунок 26) или пакетом соответствующих размеров.
Допускается размещать в полувагоне штабели различной длины. Штабели меньшей длины размещают в средней части полувагона между более длинными штабелями.
2.4.9. Пакеты лесоматериалов длиной менее 1,5 м размещают в полувагонах только в пределах основного габарита погрузки в соответствии с положениями пункта 2.4.8 настоящей главы.
2.4.10. Пакеты лесоматериалов длиной свыше 2,0 м в полувагоне размещают с использованием основного или зонального габарита погрузки без установки ограждающих торцевых щитов (рисунки 27 - 29).
Зазоры между штабелями, а также между штабелями и дверями (торцевыми стенами) полувагона допускаются не более 200 мм.
Допускается в середине полувагона размещать один штабель длиной менее остальных, но не менее 1,5 м.
Допускается один штабель длиной менее остальных, но не менее 2,0 м, размещать в торце полувагона (рисунок 28). При этом штабель длиной 2,0 м ограждают торцевым щитом (рисунок 28а), при длине этого штабеля более 2,0 м торцевой щит не устанавливают (рисунок 28б).
1 - торцевой щит; 2 - растяжка
Если длина пакетов не обеспечивает плотное (или с зазорами не более 200 мм) размещение штабелей по длине полувагона, штабели размещают вплотную к одному торцу полувагона и друг к другу, зазор между штабелем и дверями (стеной) с противоположной стороны заполняют непакетированными лесоматериалами, располагаемыми горизонтально до уровня на 100 - 150 мм ниже верхнего обвязочного бруса полувагона или пакетом лесоматериалов соответствующих размеров (рисунок 29). При этом должны соблюдаться положения настоящего пункта по размещению пакета меньшей длины.
Допускается перевозить пакеты лесоматериалов (за исключением свежеокоренных или с невысохшим покрытием (пропиткой)) длиной не менее 3,0 м в полувагонах с открытыми торцевыми дверями, при этом выход груза за пределы концевой балки полувагона не должен превышать 400 мм.
Допускается перевозить в одном полувагоне пакеты круглых лесоматериалов различной длины, но не менее 3,0 м, с соблюдением требований настоящего пункта в части допускаемых зазоров между пакетами, пакетами и торцевыми дверями (стенами) вагона. В этом случае пакеты размещают таким образом, чтобы пакеты верхнего яруса перекрывали стыки пакетов нижнего яруса (рисунок 30).
2.4.11. Пакеты из свежеокоренных или с невысохшим покрытием (пропиткой) лесоматериалов независимо от длины размещают в полувагонах в соответствии с положениями пункта 2.4.8 настоящей главы в пределах основного габарита погрузки.
- Гражданский кодекс (ГК РФ)
- Жилищный кодекс (ЖК РФ)
- Налоговый кодекс (НК РФ)
- Трудовой кодекс (ТК РФ)
- Уголовный кодекс (УК РФ)
- Бюджетный кодекс (БК РФ)
- Арбитражный процессуальный кодекс
- Конституция РФ
- Земельный кодекс (ЗК РФ)
- Лесной кодекс (ЛК РФ)
- Семейный кодекс (СК РФ)
- Уголовно-исполнительный кодекс
- Уголовно-процессуальный кодекс
- Производственный календарь на 2025 год
- МРОТ 2025
- ФЗ «О банкротстве»
- О защите прав потребителей (ЗОЗПП)
- Об исполнительном производстве
- О персональных данных
- О налогах на имущество физических лиц
- О средствах массовой информации
- Производственный календарь на 2026 год
- Федеральный закон "О полиции" N 3-ФЗ
- Расходы организации ПБУ 10/99
- Минимальный размер оплаты труда (МРОТ)
- Календарь бухгалтера на 2025 год
- Частичная мобилизация: обзор новостей
- Постановление Правительства РФ N 1875



























