Часть VII. Метод испытания по оценке стойкости к прогоранию термо/звукоизоляционных материалов
Настоящий метод испытаний предназначен для оценки характеристик стойкости к прогоранию термо/звукоизоляционных материалов самолета при воздействии открытого пламени высокой интенсивности.
"Время прогорания" означает время, в секундах, за которое пламя горелки проходит сквозь испытываемый образец, и/или время, требуемое для того, чтоб тепловой поток с внутренней стороны образца достиг значения 2,27 Вт/см2 на расстоянии 305 мм (12 дюймов) от передней поверхности стрингеров фермы крепления испытываемого образца изоляционного покрытия, в зависимости от того, что произойдет скорее. Время прогорания измеряется с внутренней стороны каждого образца изоляционного покрытия.
"Образец изоляционного покрытия" относится к одному из двух образцов, расположенных с любой стороны испытательного стенда, под углом 30° к вертикали.
"Комплект образцов" относится к двум образцам изоляционного покрытия. Оба образца должны представлять одну и ту же конструкцию и те же материалы изоляционного покрытия в пропорции, соответствующей размеру образца.
(1) Компоновка испытательного стенда показана на рис. 1 и 2, при этом должна обеспечиваться возможность отвода горелки от испытываемого образца для ее прогрева.
(2) Испытательная горелка. Испытательная горелка должна представлять собой модифицированную горелку пистолетного типа, например такую, как модель Park DPL 3400. Характеристики пламени сильно зависят от настройки горелки. Такие параметры, как давление топлива, глубина установки форсунки, глубина установки статора и расход воздуха на входе, должны быть правильно отрегулированы для достижения правильной конфигурации пламени.
(i) Форсунка. Форсунка должна поддерживать давление топлива таким, чтобы обеспечивался его номинальный расход, равный 0,378 л/мин. Форсунка типа Monarch обеспечивает требуемую форму распыления топлива в виде полого конуса с углом 80° при вершине, рассчитана на номинальный расход топлива 0,378 л/мин при давлении 7 кгс/см2 (0,69 МПа).
(ii) Топливопровод. Топливопровод должен быть отрегулирован так, чтобы топливная форсунка находилась на глубине 8 мм (0.3125 дюйма) от торцевой плоскости воздуховодной трубы.
(iii) Внутренний статор. Внутренний статор, расположенный в воздуховодной трубе, должен располагаться на глубине 95 мм (3,75 дюйма) от наконечника топливной форсунки. Статор также должен быть расположен таким образом, чтобы встроенные воспламенители располагались под углом, который находится посередине между положениями стрелок часов, соответствующих 10 и 11 часам, при виде на воздуховодную трубу. Незначительные отклонения от угла воспламенения допустимы, если требования к температуре и тепловому потоку соответствуют требованиям пункта VII (e) настоящего Приложения.
(iv) Вентилятор подачи воздуха. Центробежный нагнетающий вентилятор, используемый для прокачки воздуха через горелку, должен иметь диаметр 133 мм (5,25 дюйма) и ширину 89 мм (3,5 дюйма).
(v) Конус горелки. В конце воздуховодной трубы должен быть установлен расширительный конус горелки длиной 305 +/- 3 мм (12 +/- 0.125 дюйма) с овальным выходным сечением высотой 152 +/- 3 мм (6 +/- 0.125 дюймов) и шириной 280 +/- 3 мм (11 +/- 0.125 дюймов) (см. рис. 3).
(vi) Топливо. Следует использовать топливо JP-8, Jet A, или эквивалентный сорт топлива и обеспечивать его расход, равный 0,378 +/- 0,0126 л/мин. Использование эквивалентного сорта топлива допускается если номинальные значения расхода топлива, температуры и теплового потока соответствуют требованиям п. VII (e) настоящего Приложения.
(vii) Регулятор давления топлива. Должен быть предусмотрен регулятор давления топлива, настроенный на подачу топлива с номинальным расходом 0,378 л/мин. Для форсунки с углом распыления 80° номинальное значение расхода топлива 0,378 +/- 0,0126 л/мин обеспечивается при его подаче под рабочим давлением 7 кгс/см2 (0,69 МПа).
Рис. 1. Ферма для размещения испытываемых образцов
на испытательном стенде по оценке прогорания
Рис. 2. Схема стенда для испытаний по оценке прогорания.
(3) Калибровочный стенд и оборудование.
(i) Для измерения теплового потока и температуры необходимо спроектировать индивидуальные калибровочные стенды, которые должны содержать калориметр и "гребенку" термопар. Калибровочные стенды должны быть расположены так, чтобы они позволяли производить без особых затруднений перемещение горелки из положения на испытательном стенде в положение измерения либо теплового потока, либо температуры.
(ii) Калориметр. Должен быть предусмотрен калориметр с полным измерением удельного теплового потока (Gordon Gage) из фольги с диапазоном измерений 0 - 22,7 Вт/см2 и точностью отображения показаний до +/- 3%. Метод калибровки теплового потока должен соответствовать требованиям подпункту (b)(7) Части VI Приложения F.
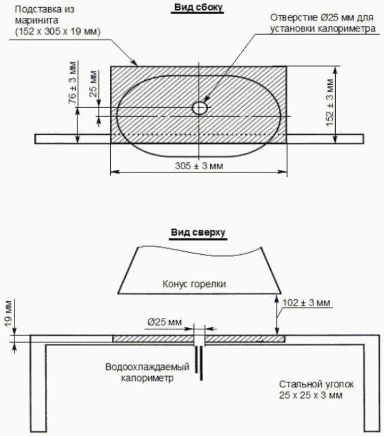
Рис. 4. Расположение калориметра относительно конуса горелки
(iii) Установка калориметра. Калориметр устанавливается в толстом изоляционном блоке размерами (152 +/- 3) x (305 +/- 3) мм (6 на 12 +/- 0.125 дюймов) толщиной 19 +/- 3 мм (0.75 +/- 0.125 дюймов), который устанавливается на стенде калибровки теплового потока на время калибровки (рис. 4). Необходимо проверять изоляционный блок для выявления повреждений и при необходимости заменять его. Следует отрегулировать установку так, чтобы обеспечить параллельность поверхности калориметра и плоскости выходного конуса испытательной горелки.
(iv) Термопары. Для калибровки предусмотреть семь термопар типа K (Хромель-Алюмель) размером 3,2 мм (1/8 дюйма) с керамическим изолятором в металлическом корпусе, с основными соединительными проводами сечением 0,205 мм2. Термопары прикрепить к кронштейну из стального уголка, чтобы сформировать "гребенку" из термопар для их установки на калибровочный стенд на время калибровки горелки (рис. 5).
Рис. 5. Расположение "гребенки" термопар относительно
конуса горелки
(v) Измеритель скорости воздуха. Для калибровки скорости воздуха, поступающего в горелку, необходимо использовать измеритель скорости воздуха лопастного типа. Измеритель Omega Engineering Model HH30A или его эквивалент являются приемлемыми. Следует предусмотреть подходящий переходник для присоединения измерительного прибора к входу горелки так, чтобы предотвратить поступление воздуха в горелку каким-либо иным способом кроме, как только через измерительный прибор, так как это может привести к получению ошибочно низких данных. Что бы предотвратить повреждение измерителя скорости воздуха от попадания сажи необходимо использовать гибкий трубопровод шириной 102 мм (4 дюйма) и длиной 6,1 м (20 футов) для подачи чистого воздуха на вход горелки. Дополнительный воздушный отсек, постоянно установленный перед входом в горелку, может эффективно разместить измеритель скорости воздуха и обеспечить монтажное отверстие для гибкого впускного трубопровода.
(4) Монтажная ферма для испытываемого образца. Для испытываемых образцов необходимо изготовить монтажную ферму из стали толщиной 3,2 мм (1/8 дюйма), как это показано на рис. 1, за исключением центрального вертикального шпангоута, который должен иметь толщину 6,4 мм (1/4 дюйма), чтобы минимизировать деформации. Продольные (горизонтальные) стрингеры монтажной рамы должны быть привинчены болтами к ее несущим (вертикальным) шпангоутам так, чтобы удлинение продольных стрингеров не привело к деформации всей конструкции. Монтажная ферма должна использоваться для установки двух испытываемых образцов изоляционного покрытия, как показано на рис. 2.
(5) Тыльные калориметры. Необходимо установить два калориметра для измерения полного теплового потока (Gordon) за испытываемыми образцами изоляционного покрытия с задней (холодной) стороны монтажной фермы, как показано на рис. 6. Калориметры должны располагаться в плоскости, в которой лежит ось конуса горелки, на расстоянии 102 мм (4 дюйма) от вертикальной оси фермы.
(i) Калориметры должны представлять собой калориметры для полного измерения удельного теплового потока (Gordon Gage) из фольги с диапазоном измерений 0 - 5,7 Ватт/см2 и точностью отображения показаний до +/- 3%. Метод калибровки теплового потока должен соответствовать требованиям подпункта (b)(7) Части VI Приложения F.
Рис. 6. Расположение тыльных калориметров относительно фермы
размещения испытываемых образцов
(6) Контрольно-измерительные приборы. Необходимо предусмотреть регистрирующий потенциометр или другой приемлемый калиброванный прибор с подходящим диапазоном измерения и возможностью регистрации выходных показаний калориметра и термопар.
(7) Регистратор времени. Следует предусмотреть секундомер или другой прибор с точностью до +/- 1% для измерения времени воздействия пламени горелки и определения момента прогорания испытываемого образца.
(8) Испытательная камера. Чтобы снизить или исключить возможность изменений условий испытаний из-за движения воздуха, они должны проводиться в испытательной камере. Испытательная камера должна иметь площадь пола, как минимум, 305 на 305 см (10 на 10 футов).
(i) Вентиляция. Испытательная камера должна быть оборудована вытяжной вентиляцией для удаления продуктов горения, выделяющихся во время испытаний.
(1) Подготовка образца. Для испытания необходимо подготовить, как минимум, три комплекта образцов одинаковой конструкции и конфигурации.
(2) Испытываемый образец изоляционного покрытия.
(i) Для изоляционных материалов ватинового типа, таких, как стекловолокно, образец покрытия в окончательном виде должен иметь ширину 813 мм и длину 914 мм (32 дюйма на 36 дюймов) без термосваренных пленочных кромок.
(ii) Готовые испытательные образцы из твердых и других неуказанных в n.(i) типов изоляционных материалов должны помещаться в испытательную установку таким образом, чтобы воспроизводить фактическую установку в процессе эксплуатации.
(3) Конструкция. Каждый испытываемый образец должен быть изготовлен из основных компонентов термо/звуковой изоляции (т.е., собственно изоляции, огнезащитного материала (если он применяется) и влагонепроницаемой пленки) с использованием технологии сборочных процессов (с типовыми швами и т.п.).
(i) Огнезащитный материал. Если изоляционное покрытие спроектировано с использованием огнезащитного материала, то он должен быть расположен так, чтобы соответствовал установке покрытия на самолете. Например, если этот материал будет находиться с внешней стороны изоляции, внутри влагонепроницаемой пленки, то он должен быть расположен таким же образом в испытываемом образце.
(ii) Изоляционный материал. Для покрытий, в которых используется более одного вида изоляции (состав, плотность и т.д.), должны быть сконструированы наборы образцов, отражающие используемую комбинацию изоляции. Однако, если в нескольких типах покрытий используются аналогичные сочетания изоляционных материалов, то нет необходимости испытывать каждое из этих сочетаний, если эти разные сочетания можно поставить в один ряд.
(iii) Влагонепроницаемая пленка. Если в серийной конструкции покрытия применяется несколько видов влагонепроницаемых пленок, то необходимо провести отдельные испытания для каждой комбинации. Например, если полиамидная пленка используется совместно с изоляцией, чтобы повысить ее стойкость к прогоранию, то необходимо также проверить эту же изоляцию при ее использовании в сочетании с поливинилфтористой пленкой.
(iv) Установка на испытательной ферме. Испытываемые образцы покрытия должны крепиться к испытательной ферме при помощи 12 стальных пружинных зажимов, как показано на рис. 7. Зажимы используются для фиксации образца покрытия на боковых и центральном вертикальных шпангоутах (по 4 зажима на элемент). Поверхности зажима должны иметь размеры 25 на 51 мм (1 дюйм на 2 дюйма). Верхний и нижний зажимы устанавливаются на расстоянии 152 мм (6 дюймов) от верхней и нижней частей испытательной фермы соответственно. Между верхним и нижним зажимами на расстоянии 203 мм (8 дюймов) устанавливаются промежуточные зажимы.
(Примечание: Установка изоляционных материалов, которые не могут быть размещены в соответствии с рис. 7, производится способом, утвержденным сертифицирующим органом).
(v) Кондиционирование. Перед испытанием необходимо выдержать испытываемые образцы при температуре 21 +/- 5 °C (70° +/- 5 °F) и относительной влажности 55 +/- 10% в течение, как минимум, 24 ч.
Рис. 7. Установка испытываемых образцов
на испытательной ферме
(1) Необходимо выровнять и центрировать ферму, чтобы обеспечить правильное положение калориметра и/или "гребенки" термопар относительно конуса горелки.
(2) Необходимо включить вытяжную вентиляцию. Нельзя включать нагнетающий вентилятор горелки. Следует измерить поток воздуха в испытательной камере с помощью лопастного анемометра или эквивалентного измерительного прибора. Вертикальная скорость воздуха непосредственно за верхней частью верхнего испытываемого образца изоляционного покрытия должна составлять 0,51 +/- 0,25 м/с (100 +/- 50 футов/мин). Горизонтальная скорость воздуха в этой точке должна быть менее 0,25 м/с (50 футов/мин).
(3) При отсутствии калиброванного расходомера можно измерить расход топлива при помощи градуированной цилиндрической емкости соответствующего размера. Для этого следует включить топливный насос горелки, убедившись, что система ее поджига выключена, собрать топливо при помощи пластиковой или резиновой трубки в градуированный цилиндр в течение 2 минут и определить расход топлива в л/мин. Расход топлива должен составлять 0,378 +/- 0,0126 л/мин.
(1) Необходимо установить горелку перед калориметром так, чтобы она была центрирована, а вертикальная плоскость конуса горелки находился на расстоянии 102 +/- 3 мм (4 +/- 0.125 дюймов) от лицевой поверхности калориметра. При этом необходимо убедиться, что горизонтальная ось конуса горелки смещена на 25,4 мм (1 дюйм) вниз от горизонтальной оси калориметра (рис. 8). Не нарушая положения калориметра, поверните горелку к "гребенке" термопар так, чтобы средняя термопара (номер 4 из 7) была центрирована относительно конуса горелки.
Необходимо также обеспечить смещение горизонтальной оси конуса горелки вниз на 25,4 мм (1 дюйм) от горизонтальной оси концов термопар. Чтобы гарантировать правильное выравнивание конуса горелки относительно калориметра и "гребенки" термопар следует снова проверить указанные размеры путем поворота горелки в каждую позицию. (Примечание: Для быстрого позиционирования испытательной горелки во время процедуры калибровки в системе ее установки необходимо предусмотреть "фиксаторы", которые обеспечивают правильное центрирование конуса горелки относительно как калориметра, так и "гребенки" термопар).
Рис. 8. Информация о горелке и процедуре ее калибрования
(2) Поместите измеритель скорости воздуха в адаптер или воздушную камеру и убедитесь, что отсутствуют зазоры, через которые воздух может поступать, минуя устройство для измерения скорости воздуха. Затем следует включить двигатель вентилятора, убедившись, что топливный соленоид и воспламенители выключены. Необходимо отрегулировать скорость подачи воздуха до 10,92 м/с (2150 футов/мин), после чего выключить двигатель вентилятора. (Примечание: Можно использовать измеритель скорости воздуха, обеспечивающий эквивалентный расчетный расход воздуха, равный 2,29 м3/мин (80.80 футов3/мин)). (Примечание: Измеритель скорости воздуха Omega HH30 имеет диаметр 66,7 мм (2.625 дюйма). Чтобы рассчитать расход всасываемого воздуха, умножьте площадь поперечного сечения 0,0035 м2 (0.03758 футов2) на скорость воздуха 10,92 м/с (2150 футов/мин) и получится 2,29 м3/мин (80.80 футов3/мин)).
(3) Поверните горелку из испытательного положения в положение прогрева. Перед зажиганием горелки следует убедиться, что поверхность калориметра очищена от остатков сажи, а через калориметр протекает вода. Необходимо проверить и очистить конус горелки от любых признаков скопления продуктов горения, сажи и т.д. Накопление сажи внутри конуса горелки может повлиять на характеристики пламени и вызвать трудности при калибровке. Так как конус горелки со временем может деформироваться, необходимо периодически проверять его размеры.
(4) Пока горелка повернута в положение прогрева, необходимо включить двигатель вентилятора подачи воздуха, воспламенители и подачу топлива и зажечь горелку. Следует подождать 2 мин для ее прогрева. После этого необходимо переместить горелку в позицию калибровки и подождать 1 мин для стабилизации калориметра, а затем регистрировать тепловой поток каждую секунду в течение 30 с. После выключения следует повернуть горелку из этого положения и дать ей возможность охладиться. Рассчитайте среднее значение теплового потока за этот 30-секундный период. Среднее значение теплового потока должно составлять 18,2 +/- 0,9 Ватт/см2.
(5) Установите горелку перед "гребенкой" термопар. Проверив правильность их взаимного положения поверните горелку в позицию нагрева, включите двигатель вентилятора, воспламенители и подачу топлива и зажгите горелку. Подождите 2 мин, пока она нагреется. После этого переместите горелку в позицию калибровки и подождите 1 мин для стабилизации термопар, а затем регистрируйте температуру каждой из 7 термопар каждую секунду в течение 30 с. После выключения поверните горелку из этого положения и дайте ей возможность охладиться. Рассчитайте и запишите среднее значение температуры каждой термопары за этот 30-секундный период. Среднее значение температуры каждой из 7 термопар должно составлять 1038 +/- 56 °C (1900 +/- 100 °F).
(6) Если значения теплового потока или температуры не находятся в требуемом диапазоне, отрегулируйте скорость подаваемого в горелку воздуха и повторите процедуры, описанные выше в подпунктах (4) и (5), чтобы получить правильные значения. Убедитесь, что скорость входного воздуха находится в пределах 10,92 +/- 0,25 м/с (2150 +/- 50) фут/мин).
(7) Перед каждым испытанием необходимо производить калибровку до тех пор, пока не будет обеспечено соответствие предписанным нормативам. После этого можно выполнить несколько испытаний с калибровкой, проведенной до и после серии испытаний.
(1) Закрепить два испытываемых образца изоляционного покрытия на испытательной ферме. Изоляционные покрытия должны фиксироваться на вертикальных шпангоутах фермы испытательного стенда при помощи пружинных зажимов, расположенных, как показано на рис. 7 (в соответствии с критериями подпункта (c)(3)(iv) данной Части VII настоящего Приложения).
(2) Обеспечить установку торцевой плоскости конуса горелки на расстоянии 102 +/- 3 мм (4 +/- 0.125 дюйма) от внешней поверхности горизонтальных стрингеров фермы фиксации испытываемого образца, при этом расположение торцевой плоскости конуса горелки и поверхности горизонтальных стрингеров фермы будет располагаться под углом 30° к вертикали.
(3) При готовности к началу испытаний необходимо переместить горелку из положения испытаний в положение прогрева так, чтобы ее пламя преждевременно не коснулось образцов. Затем необходимо включить подачу топлива и зажечь горелку и дать ей возможность стабилизироваться в течение 2 мин.
(4) Для начала испытания необходимо повернуть горелку в положение испытания и одновременно включить регистратор времени.
(5) Испытываемые образцы должны подвергаться воздействию пламени горелки в течение 4 мин, после чего горелка выключается. Сразу же следует повернуть горелку из положения испытания.
(6) Необходимо определить время прогорания (если оно происходит) или момент времени, в который значение теплового потока на задней поверхности изоляционного покрытия превысит 2,27 Ватт/см2.
(1) Идентифицируйте и опишите испытываемый образец.
(2) Укажите количество испытываемых образцов изоляционного покрытия.
(3) Укажите время прогорания (если оно происходит) и максимальное значение теплового потока на задней поверхности испытываемого образца изоляционного покрытия, а также момент времени, в который оно было зафиксировано.
(1) Ни один из двух испытываемых образцов изоляционного покрытия не должен допускать горение или прогорания в течение 4 мин.
(2) Ни один из двух испытываемых образцов изоляционного покрытия не должен допускать проникновение теплового потока более 2,27 Вт/см2 в точку на "холодной" стороне образцов, которая находится на расстоянии 305 мм (12 дюймов) от лицевой поверхности испытательного стенда.
- Гражданский кодекс (ГК РФ)
- Жилищный кодекс (ЖК РФ)
- Налоговый кодекс (НК РФ)
- Трудовой кодекс (ТК РФ)
- Уголовный кодекс (УК РФ)
- Бюджетный кодекс (БК РФ)
- Арбитражный процессуальный кодекс
- Конституция РФ
- Земельный кодекс (ЗК РФ)
- Лесной кодекс (ЛК РФ)
- Семейный кодекс (СК РФ)
- Уголовно-исполнительный кодекс
- Уголовно-процессуальный кодекс
- Производственный календарь на 2025 год
- МРОТ 2025
- ФЗ «О банкротстве»
- О защите прав потребителей (ЗОЗПП)
- Об исполнительном производстве
- О персональных данных
- О налогах на имущество физических лиц
- О средствах массовой информации
- Производственный календарь на 2026 год
- Федеральный закон "О полиции" N 3-ФЗ
- Расходы организации ПБУ 10/99
- Минимальный размер оплаты труда (МРОТ)
- Календарь бухгалтера на 2025 год
- Частичная мобилизация: обзор новостей
- Постановление Правительства РФ N 1875







