Часть III. Метод испытания с целью оценки способности облицовки грузовых отсеков ограничивать распространение пламени
МЕТОД ИСПЫТАНИЯ С ЦЕЛЬЮ ОЦЕНКИ СПОСОБНОСТИ ОБЛИЦОВКИ
ГРУЗОВЫХ ОТСЕКОВ ОГРАНИЧИВАТЬ РАСПРОСТРАНЕНИЕ ПЛАМЕНИ
(1) Должны быть испытаны, как минимум, 3 образца облицовочных панелей стенок или потолка грузового отсека.
(2) Каждый испытываемый образец должен полностью соответствовать облицовочной панели стенок или потолка грузового отсека, включая любые особенности конструкции, такие, как соединения, узлы крепления осветительной арматуры и т.п., дефект которых может повлиять на способность облицовки безопасно ограничивать распространение пламени.
(3) Не должно быть зафиксировано проникновения пламени через любой из образцов в течение 5 мин после подведения источника пламени, а максимальная температура, измеренная на расстоянии 100 мм (4 дюйма) над верхней поверхностью испытываемого в горизонтальном положении образца, не должна превышать 204 °C (400 °F).
(b) Краткое описание метода. Данный метод представляет процедуру лабораторных испытаний с целью оценки способности облицовочных материалов грузовых отсеков противостоять проникновению пламени горелки при горении дизельного топлива ГОСТ 305-82 с расходом 7,6 л/ч (2 галлона/ч) или эквивалентного топлива. Облицовочные панели потолка и стенок можно испытывать раздельно, если вместо недостающей панели использовать перегородку. Любой образец, прошедший испытание в качестве облицовочной панели потолка, можно использовать как облицовочную панель стенки.
(1) Предназначенный для испытаний образец должен иметь размеры (406 +/- 3) x (610 +/- 3) мм ((16 +/- 18) x (24 +/- 18) дюйма).
(2) Перед испытаниями в течение как минимум 24 ч образцы должны быть выдержаны при температуре (21 +/- 2) °C ((70 +/- 5) °F) и относительной влажности (55 +/- 5)%.
(d) Аппаратура для испытаний. Аппаратура для испытаний, показанная на рис. 3 части II и рис. 1 - 3 части III настоящего Приложения, должна включать в себя компоненты, описанные в данном пункте. Второстепенные детали аппаратуры могут изменяться в зависимости от типа применяемой горелки.
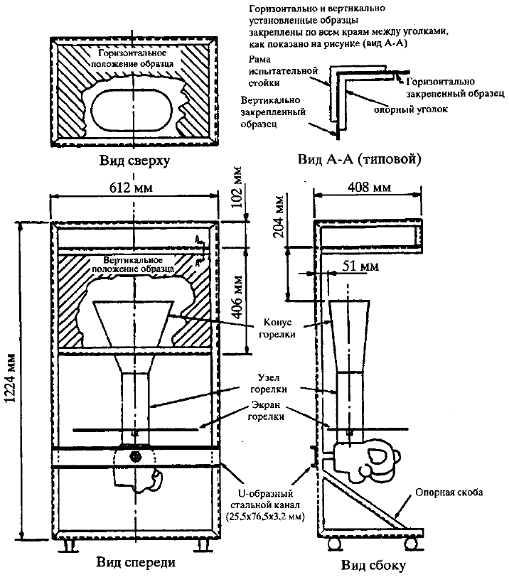
(1) Монтажная стойка для образцов. Монтажная стойка для испытываемых образцов состоит из стальных уголков, как показано на рис. 1 части III настоящего Приложения.
(2) Испытательная горелка. Используемая при испытаниях горелка должна:
(i) быть модифицированной горелкой пистолетного типа;
(ii) использовать соответствующую форсунку и поддерживать давление топлива, необходимое для обеспечения его расхода 7,6 л/ч (2 галлона/ч). Например, форсунка с углом распыления 80° и номинальным расходом 8,5 л/ч (2,25 галлона/ч) при давлении 6 кгс/см2 (85 фунтов на кв. дюйм) обеспечит расход 7,7 л/ч (2,03 галлона/ч);
(iii) иметь удлинитель горелки длиной 305 мм (12 дюймов), установленный на конце подающей трубки, с отверстием высотой 152 мм (6 дюймов) и шириной 280 мм (11 дюймов), как показано на рис. 3 части II настоящего Приложения;
(iv) иметь регулятор давления топлива в горелке, отрегулированный на номинальный расход топлива, равный 7,6 л/ч (2 галлона/ч) дизельного топлива ГОСТ 305-82 или эквивалентного топлива.
(i) в испытаниях должен использоваться одобренный калориметр с диапазоном измерений 0 - 17,0 Вт/см2. Калориметр должен быть смонтирован на изоляционной подставке размером 152 x 305 мм (6 на 12 дюймов) и толщиной 19 мм (3/4 дюйма), закрепленной на стальном угловом кронштейне для внесения в испытательную установку во время калибрования горелки, как показано на рис. 2 части III настоящего Приложения;
(ii) необходимо контролировать состояние изоляционной подставки и при необходимости регулировать ее, с тем чтобы лицевая сторона калориметра была параллельной выходной плоскости конуса испытательной горелки.
(4) Термопары. При испытании должны использоваться 7 термопар, заземленных, одобренного типа. Эти термопары должны быть прикреплены к стальному угловому кронштейну, образуя гребенку термопар, для введения в испытательную установку во время калибрования горелки, как показано на рис. 3 части III настоящего Приложения.
(5) Компоновка аппаратуры. Испытательная горелка должна быть установлена на соответствующей стойке так, чтобы выходное отверстие конуса горелки находилось на расстоянии 200 мм (8 дюймов) от облицовочной панели потолка и 50 мм (2 дюйма) от облицовочной панели стенки. Стойка горелки должна позволять поворачивать горелку в сторону от испытываемого образца в периоды прогрева.
(6) Приборы. Для измерения и записи выходных данных калориметра и термопар должен использоваться регистрирующий потенциометр или другой одобренный прибор с соответствующим диапазоном измерений.
(7) Регистратор времени. Для измерения времени воздействия пламени и времени проникновения пламени (если это имеет место) необходимо использовать секундомер или другой прибор.
(e) Подготовка аппаратуры. Перед калиброванием все оборудование должно быть включено и стабилизировано и должна быть отрегулирована подача топлива в горелку, как указано в подпункте (d)(2) части III настоящего Приложения.
(f) Калибрование. Для обеспечения надлежащей тепловой мощности горелки необходимо выполнить следующую проверку:
(1) Снять удлинитель горелки с конца подающей трубки. Включить воздухозаборник горелки без подачи топлива или включения воспламенителей (запальных свечей). Измерить скорость потока воздуха, используя тепловой проволочный анемометр, помещенный в центре подающей трубки поперек отверстия. Отрегулировать гаситель (заслонку) так, чтобы скорость потока воздуха находилась в диапазоне 7,9 - 9,1 м/с (от 1550 до 1800 футов/мин). Если выходное отверстие подающей трубки закрыто щитком, его следует перед измерением снять. Вновь установить удлинительный конус подающей трубки.
(2) Ввести калориметр в испытательную установку, как показано на рис. 2, на расстояние 200 мм от выходного отверстия конуса горелки для имитации положения образца при испытаниях в горизонтальном положении.
(3) Включить горелку, дать ей возможность проработать 2 мин для прогрева и отрегулировать заслонку до получения на калориметре показания (9,1 +/- 0,6) Вт/см2.
(4) Заменить калориметр гребенкой термопар (см. рис. 3).
(5) Включить горелку и обеспечить показания каждой из 7 термопар (927 +/- 38) °C ((1700 +/- 100) °F) для гарантии достижения установившегося режима. Если температура выходит за пределы этого диапазона, необходимо повторить процессы, указанные в подпунктах (2) - (5) данного пункта, до получения требуемых показаний.
(6) Выключить горелку и снять гребенку термопар.
(7) Повторить изложенные в подпункте (1) данного пункта процедуры для подтверждения, что параметры горелки находятся в требуемом диапазоне.
(1) Установить термопару того же типа, который использовался для калибрования, на расстоянии 102 мм (4 дюйма) над "горизонтальным" испытываемым образцом (потолок). Центр термопары должен быть над конусом горелки.
(2) Установить испытываемый образец на испытательную стойку, как показано на рис. 1 части III данного Приложения, в горизонтальном или вертикальном положении. Установить изоляционный материал в другом положении.
(3) Установить горелку так, чтобы пламя не "ударяло" об образец, включить горелку и дать ей возможность проработать в течение 2 мин. Повернуть горелку так, чтобы пламя падало на образец, и одновременно включить регистратор времени.
(4) Выдержать образец под воздействием пламени в течение 5 мин и затем выключить горелку. Испытание может быть закончено раньше, если наблюдается проникновение пламени через образец.
(5) При испытаниях облицовочных панелей потолка зарегистрировать максимальную температуру, измеренную на расстоянии 100 мм над образцом.
(6) Зарегистрировать интервал времени, в течение которого произойдет проникновение пламени через образец (если это будет иметь место).
(h) Отчет по испытаниям. Отчет по результатам испытаний должен включать следующее:
(1) Полное описание испытанных материалов, в том числе указание типа, изготовителя, толщины и других имеющих значение данных.
(2) Результаты наблюдения за испытываемыми образцами во время воздействия пламени, такие, как расслоение, воспламенение смолы, дымовыделение и т.п. с указанием времени возникновения этих явлений.
(3) Время проникновения пламени (если это имеет место) для каждого из 3 испытанных образцов.
(4) Ориентация панели (потолок или стена).
Рис. 1. Аппаратура для испытания горизонтально и вертикально
закрепленных образцов
- Гражданский кодекс (ГК РФ)
- Жилищный кодекс (ЖК РФ)
- Налоговый кодекс (НК РФ)
- Трудовой кодекс (ТК РФ)
- Уголовный кодекс (УК РФ)
- Бюджетный кодекс (БК РФ)
- Арбитражный процессуальный кодекс
- Конституция РФ
- Земельный кодекс (ЗК РФ)
- Лесной кодекс (ЛК РФ)
- Семейный кодекс (СК РФ)
- Уголовно-исполнительный кодекс
- Уголовно-процессуальный кодекс
- Производственный календарь на 2025 год
- МРОТ 2025
- ФЗ «О банкротстве»
- О защите прав потребителей (ЗОЗПП)
- Об исполнительном производстве
- О персональных данных
- О налогах на имущество физических лиц
- О средствах массовой информации
- Производственный календарь на 2026 год
- Федеральный закон "О полиции" N 3-ФЗ
- Расходы организации ПБУ 10/99
- Минимальный размер оплаты труда (МРОТ)
- Календарь бухгалтера на 2025 год
- Частичная мобилизация: обзор новостей
- Постановление Правительства РФ N 1875


