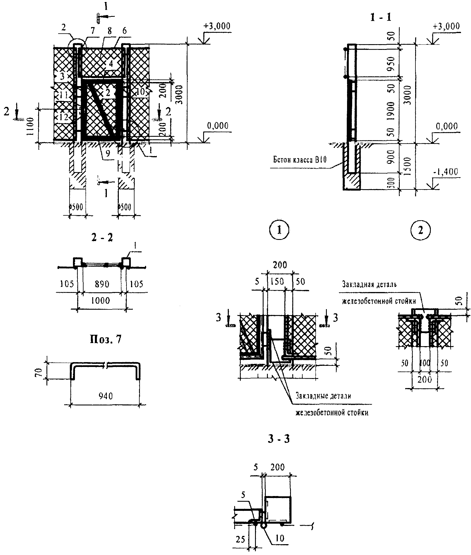
Таблица 5.2.9 - Перечень материалов и изделий, предназначенных для изготовления калитки в ограждении из металлической сетки высотой 3,0 м на железобетонных стойках
Таблица 5.2.9 - Перечень материалов и изделий,
предназначенных для изготовления калитки в ограждении
из металлической сетки высотой 3,0 м
на железобетонных стойках
1 - стойка железобетонная; 2, 3, 4 - уголок;
5, 6 - сталь круглая; 7 - изделие крепежное; 8, 9 - сетка
металлическая; 10 - петля; 11 - ручка; 12 - замок
Рисунок 5.2.9 - Калитка в ограждении из металлической
сетки высотой 3,0 м на железобетонных стойках
Калитка в ограждении из металлической сетки высотой 3,0 м на металлических стойках (рисунок 5.2.10) состоит из опор и полотна. Каркас полотна состоит из обвязки и диагонального раскоса и выполняется из металлического уголка 50 x 50 x 5 мм, по периметру каркаса приваривается металлическая сетка. Полотно калитки навешивается на опоры с помощью петель. В качестве опор применяются металлические трубы 70 x 70 x 4 мм. Калитка оборудуется замковым устройством. Перечень материалов и изделий, предназначенных для изготовления калитки в ограждении из металлической сетки высотой 3,0 м на металлических стойках, приведен в таблице 5.2.10.
- Гражданский кодекс (ГК РФ)
- Жилищный кодекс (ЖК РФ)
- Налоговый кодекс (НК РФ)
- Трудовой кодекс (ТК РФ)
- Уголовный кодекс (УК РФ)
- Бюджетный кодекс (БК РФ)
- Арбитражный процессуальный кодекс
- Конституция РФ
- Земельный кодекс (ЗК РФ)
- Лесной кодекс (ЛК РФ)
- Семейный кодекс (СК РФ)
- Уголовно-исполнительный кодекс
- Уголовно-процессуальный кодекс
- Производственный календарь на 2025 год
- МРОТ 2026
- ФЗ «О банкротстве»
- О защите прав потребителей (ЗОЗПП)
- Об исполнительном производстве
- О персональных данных
- О налогах на имущество физических лиц
- О средствах массовой информации
- Производственный календарь на 2026 год
- Федеральный закон "О полиции" N 3-ФЗ
- Расходы организации ПБУ 10/99
- Минимальный размер оплаты труда (МРОТ)
- Календарь бухгалтера на 2026 год
- Частичная мобилизация: обзор новостей
- Постановление Правительства РФ N 1875
