IV. Оборудование инженерно-техническими средствами охраны и надзора постоянных объектов исправительных колоний, воспитательных колоний, лечебных исправительных и лечебно-профилактических учреждений
IV. Оборудование инженерно-техническими средствами
охраны и надзора постоянных объектов исправительных колоний,
воспитательных колоний, лечебных исправительных
и лечебно-профилактических учреждений
(в ред. Приказа Минюста России от 17.06.2013 N 94)
(см. текст в предыдущей редакции)
29. Оборудование инженерно-техническими средствами охраны запретной зоны объектов
1) К постоянным объектам, подлежащим оборудованию ИТСО, относятся жилые и смежные с ними производственные зоны, производственные объекты с продолжительностью работы на них осужденных свыше двух лет.
По месту дислокации постоянные объекты подразделяются на городские и внегородские.
2) К городским относятся объекты, которые расположены в черте города, рабочего поселка, поселка городского типа, станицы.
Объекты учреждений, расположенные вблизи железнодорожных и автомобильных магистралей, станций, пристаней и крупных промышленных предприятий, также относятся к городским объектам.
Вариант размещения ИТСО на постоянном объекте показан на рисунках 4.1, 4.2. Условные графические обозначения ИТСО приведены в приложении 9.
Рисунок 4.1 - Размещение ТСОН на постоянном
объекте учреждения
Рисунок 4.2 - Размещение ИСОН на постоянном
объекте учреждения
3) К ИТСО в запретной зоне объекта относятся:
- экранное ограждение рубежа обнаружения;
- противопобеговые заграждения;
- противотаранные заграждения;
- противоперебросовые заграждения;
- наблюдательные вышки (площадки), постовые грибы и будки;
- тропы нарядов и специалистов ИТО;
- предупредительные, разграничительные и контрольные знаки;
(в ред. Приказа Минюста России от 17.06.2013 N 94)
(см. текст в предыдущей редакции)
(в ред. Приказа Минюста России от 17.06.2013 N 94)
(см. текст в предыдущей редакции)
(в ред. Приказа Минюста России от 17.06.2013 N 94)
(см. текст в предыдущей редакции)
(абзац введен Приказом Минюста России от 17.06.2013 N 94)
4) ИТСО в запретной зоне объекта располагаются следующим образом (рисунок 4.3):
а) на линии охраны - основное ограждение, наблюдательные вышки (площадки), противотаранные заграждения, охранные извещатели, осветительные линии и приборы охранного освещения, видеокамеры;
(в ред. Приказа Минюста России от 17.06.2013 N 94)
(см. текст в предыдущей редакции)
б) во внутренней запретной зоне на расстоянии от основного ограждения:
- от 0 до 3,0 м - внутренняя КСП, средства обнаружения;
- 3,0 м - экранное ограждение рубежа обнаружения;
- от 3,0 до 5,0 м - внутренняя тропа наряда;
- 5,0 м - ограждение внутренней запретной зоны;
в) во внешней запретной зоне на расстоянии от основного ограждения:
- 0,5 м - противоподкопные охранные извещатели;
(в ред. Приказа Минюста России от 17.06.2013 N 94)
(см. текст в предыдущей редакции)
- от 1,0 до 2,0 м - тропа специалистов ИТО;
- 7,5 м - противопобеговое заграждение;
- от 9,5 до 12,5 м - внешняя КСП;
- от 12,5 до 15,0 м - внешняя тропа наряда;
- 15,0 м - ограждение внешней запретной зоны, противоперебросовое заграждение.
1 - ограждение внутренней запретной зоны;
2 - предупредительный знак; 3 - внутренняя тропа
наряда; 4 - экранное ограждение рубежа обнаружения;
5 - противопобеговый козырек; 6 - контрольно-следовая
полоса; 7, 12 - рубеж обнаружения, 8 - охранное освещение;
9 - емкостной козырек; 10 - основное ограждение;
11 - подземное усиление, 13 - противоподкопный охранный
извещатель; 14 - тропа специалистов ИТО; 15 - 15 метровая
полоса местности, прилегающая к ограждению внутренней
запретной зоны; 16 - вызывное устройство СТС; 17 - внешняя
тропа наряда; 18 - ограждение внешней запретной зоны;
19 - противопобеговое заграждение; 20 - предупредительное
ограждение, h* - высота подвеса светильников
(определяется проектом)
(в ред. Приказа Минюста России от 17.06.2013 N 94)
(см. текст в предыдущей редакции)
Рисунок 4.3 - Элементы ИТСО в запретной зоне постоянного
объекта учреждения (поперечный разрез)
5) Основное ограждение представляет собой забор сплошного заполнения с противопобеговым козырьком и подземным усилением.
6) К основному ограждению с внутренней стороны объекта примыкает внутренняя запретная зона шириной 5,0 м, а с наружной стороны - внешняя запретная зона шириной 15,0 м.
7) Внешняя запретная зона городского объекта ограждается забором сплошного заполнения, а внегородского объекта - забором из колючей проволоки (армированной колючей ленты) или забором из металлической сетки высотой не менее 3,0 м.
Фасадная сторона внегородского объекта ограждается забором сплошного заполнения высотой не менее 3,0 м.
На стойках ограждения внешней запретной зоны с внешней стороны объекта через каждые 50 м устанавливаются предупредительные знаки.
8) Элементы ИТСО в запретной зоне объекта, условия расположения которого не позволяют оборудовать его запретной зоной установленного размера, представлены на рисунке 4.4.
1 - ограждение внутренней запретной зоны;
2 - предупредительный знак; 3,8 - рубеж обнаружения;
4 - внутренняя тропа наряда, 5 - контрольно-следовая
полоса, 6 - экранное ограждение рубежа обнаружения;
7 - противопобеговый козырек; 9 - основное ограждение;
10 - подземное усиление, 11 - внешняя тропа наряда;
12 - противоподкопный охранный извещатель;
13 - противопобеговое заграждение; 14 - ограждение внешней
запретной зоны; 15 - предупредительное ограждение;
16 - охранное освещение; h* - высота подвеса светильников
(определяется проектом), m* - полоса местности, прилегающая
к ограждению внутренней запретной зоны (менее 15 м)
(в ред. Приказа Минюста России от 17.06.2013 N 94)
(см. текст в предыдущей редакции)
Рисунок 4.4 - Элементы ИТСО в запретной зоне,
менее установленной нормы (поперечный разрез)
9) Внутренняя запретная зона ограждается забором из колючей проволоки (армированной колючей ленты) или металлической сетки высотой не менее 3,0 м, по верху ограждения устанавливается противопобеговый козырек из спирали армированной колючей ленты (далее - АКЛ). На стойках ограждения внутренней запретной зоны со стороны территории объекта через каждые 25 м устанавливаются предупредительные знаки.
10) В ограждениях запретных зон объекта (в местах примыкания к зданиям КПП и к ограждениям контрольных площадок) устраиваются калитки для прохода на тропы нарядов и ворота (калитки) для проезда (прохода) на КСП. Калитки для прохода на тропу специалистов ИТО устраиваются в противопобеговых заграждениях (в местах их примыкания к зданию КПП).
Все ворота оборудуются запорными и замковыми (калитки - замковыми) устройствами и блокируются охранными извещателями.
(в ред. Приказа Минюста России от 17.06.2013 N 94)
(см. текст в предыдущей редакции)
11) На периметре учреждения (объекта) организуются три непрерывных рубежа обнаружения.
12) "Нулевой" рубеж обнаружения создается в пятнадцатиметровой полосе, прилегающей к ограждению внутренней запретной зоны объекта, в соответствии с пп. 19, 20 п. 29 настоящего Наставления.
13) Первый рубеж обнаружения создается во внутренней запретной зоне вдоль основного ограждения радиоволновыми, проводноволновыми охранными извещателями, установленными на КСП, или их комбинацией. Высота и ширина рубежа обнаружения формируется не менее 1,5 x 1,5 м при высоте возможных неконтролируемых зон не более 0,2 м. К рубежу обнаружения относятся охранные извещатели, расположенные на инженерных коммуникациях, пересекающих запретную зону.
(в ред. Приказа Минюста России от 17.06.2013 N 94)
(см. текст в предыдущей редакции)
14) Второй рубеж обнаружения создается по верху основного ограждения. Рубеж обнаружения создается, как правило, вибрационными или трибоэлектрическими охранными извещателями по козырьку из задерживающей спирали, а также емкостными, радиоволновыми или оптико-электронными охранными извещателями при условии, что козырек из задерживающей спирали не попадает в их зону обнаружения. При создании первого и второго рубежей обнаружения используются охранные извещатели различного физического принципа действия. Высота рубежа обнаружения над основным ограждением составляет не менее 0,7 м. Деревянное полотно основного ограждения дополнительно блокируется вибрационными, трибоэлектрическими охранными извещателями или электроконтактными охранными извещателями обрывного типа.
(пп. 14 в ред. Приказа Минюста России от 17.06.2013 N 94)
(см. текст в предыдущей редакции)
15) Перед основным ограждением во внешней запретной зоне на наиболее уязвимых участках периметра учреждения устанавливаются противоподкопные охранные извещатели. Глубина рубежа обнаружения создается не менее 3,0 м, ширина - до 10,0 м.
(в ред. Приказа Минюста России от 17.06.2013 N 94)
(см. текст в предыдущей редакции)
16) На наиболее уязвимых в побеговом отношении участках в соответствии с решением комиссии во внешней запретной зоне может быть организован дополнительный рубеж обнаружения, в том числе с применением видеокамер с детекцией движения.
(в ред. Приказа Минюста России от 17.06.2013 N 94)
(см. текст в предыдущей редакции)
17) На КПП и контрольной площадке создается не менее двух рубежей обнаружения.
Первый рубеж обнаружения на КПП создается по окнам или обводу здания и дверям, крыше здания применением ИТСОН, установленными со стороны учреждения. К первому рубежу обнаружения относятся также ТСОН, применяемые для блокировки внутренних ворот и территории контрольной площадки (шлюза).
Второй рубеж обнаружения на КПП создается по окнам или обводу здания и дверям, крыше здания применением ИТСОН, установленными с внешней стороны. Ко второму рубежу обнаружения относятся охранные извещатели блокировки помещений КПП, а также ТСОН, применяемые для блокировки въездных ворот контрольной площадки (шлюза) и ТСОН, установленные на ограждении площадки для построения караула.
(в ред. Приказа Минюста России от 17.06.2013 N 94)
(см. текст в предыдущей редакции)
18) К ограждению внутренней запретной зоны со стороны объекта прилегает пятнадцатиметровая полоса, на которой запрещается располагать какие-либо строения, сооружения и конструкции кроме противотаранных заграждений на тараноопасных участках (на расстоянии не ближе 5,0 м от ограждения внутренней запретной зоны).
19) Пятнадцатиметровая полоса, прилегающая к ограждению внутренней запретной зоны, оборудуется следующим образом:
- по границе пятнадцатиметровой полосы - предупредительное ограждение из металлической сетки, колючей проволоки (колючей ленты) высотой не менее 2,0 м с предупредительными знаками;
- вдоль ограждения внутренней запретной зоны - контрольно-следовая полоса шириной не менее 3,0 м;
- на КСП вдоль ограждения внутренней запретной зоны - дополнительный (нулевой) рубеж обнаружения, образованный, как правило, радиолучевыми охранными извещателями.
(в ред. Приказа Минюста России от 17.06.2013 N 94)
(см. текст в предыдущей редакции)
Для дистанционного наблюдения за пятнадцатиметровой полосой, прилегающей к ограждению внутренней запретной зоны, применяются видеокамеры.
(в ред. Приказа Минюста России от 17.06.2013 N 94)
(см. текст в предыдущей редакции)
В пятнадцатиметровой полосе, прилегающей к ограждению внутренней запретной зоны, устраивается отдельное освещение. Осветительные установки могут выполняться как на отдельно стоящих опорах, так и с размещением на крышах близкорасположенных зданий.
Данный вариант оборудования пятнадцатиметровой полосы, прилегающей к ограждению внутренней запретной зоны, обязателен для вновь строящихся и реконструируемых объектов, проектирование которых начато после вступления в силу настоящего Наставления.
При невозможности оборудования пятнадцатиметровой полосы, прилегающей к ограждению внутренней запретной зоны, дополнительный рубеж обнаружения устраивается по полотну или верху ограждения внутренней запретной зоны.
20) Для прохода (проезда) на пятнадцатиметровую полосу, прилегающую к ограждению внутренней запретной зоны, в ограждении контрольной площадки устраиваются калитки (ворота), которые оборудуются замковыми устройствами и блокируются охранными извещателями.
(в ред. Приказа Минюста России от 17.06.2013 N 94)
(см. текст в предыдущей редакции)
Сигналы от охранных извещателей, установленных в пятнадцатиметровой полосе и на ограждении внутренней запретной зоны, выводятся на ПУТСО и пульт оперативного дежурного (далее - ОД).
(в ред. Приказа Минюста России от 17.06.2013 N 94)
(см. текст в предыдущей редакции)
21) Противопобеговые заграждения устанавливаются во внешней запретной зоне не ближе 5,0 м от основного ограждения.
Для усиления наиболее вероятных участков совершения побегов могут применяться переносные противопобеговые заграждения.
22) Оборудование инженерных коммуникаций противопобеговыми заграждениями производится в соответствии с пп. 6 - 9 п. 18 настоящего Наставления.
23) Противоперебросовые заграждения устанавливаются по линии ограждения внешней запретной зоны. При невозможности установки противоперебросовых заграждений на линии ограждения внешней запретной зоны, они устанавливаются на линии основного ограждения или ограждения внутренней запретной зоны в соответствии с пп. 11 п. 18 настоящего Наставления.
24) Светильники охранного освещения крепятся к стойкам основного ограждения на кронштейнах со стороны внутренней и внешней запретных зон. Высота подвеса светильников выбирается такой, чтобы обеспечивалось освещение верхнего среза основного ограждения при исключении ослепляющего воздействия на часовых, находящихся на наблюдательных вышках.
На внегородских объектах допускается крепление светильников на отдельно стоящих опорах.
В необходимых случаях во внешней запретной зоне могут устанавливаться прожекторы.
25) Наблюдательные вышки и площадки оборудуются в соответствии с пп. 2 - 6 п. 19 настоящего Наставления.
26) Тропы для передвижения лиц караула и инспекторов дежурной смены оборудуются в соответствии с пп. 8, 9 п. 19 настоящего Наставления.
27) Вызывные устройства СТС устанавливаются на отдельных стойках вдоль внешней тропы наряда, на наблюдательных вышках (площадках) и вблизи шарнирно-откидных наблюдательных площадок. Они подключаются к отдельной линии или к соответствующим линиям связи.
28) КСП во внешней и внутренней запретных зонах устраиваются шириной не менее 3,0 м в соответствии с пп. 11 п. 19 настоящего Наставления.
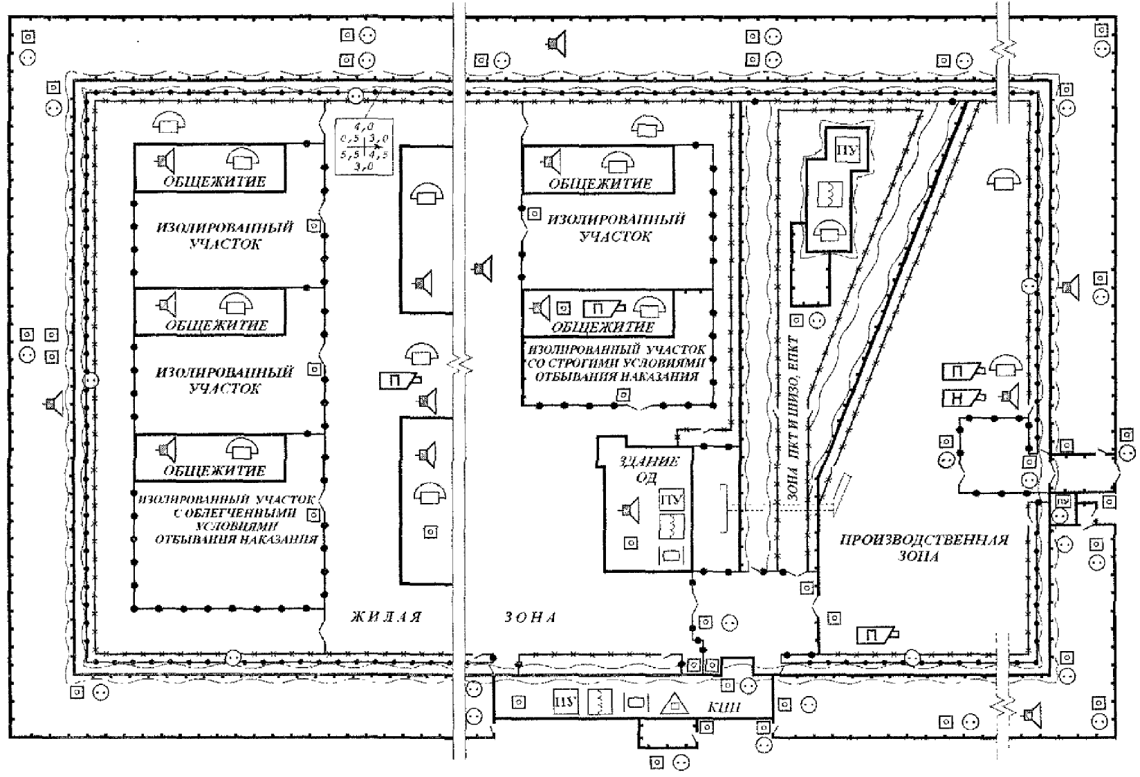
30. Оборудование инженерно-техническими средствами надзора жилой зоны объектов
1) Территория учреждения УИС, как правило, разделяется на две изолированные зоны: жилую и производственную. Производственный объект, отделенный от жилой зоны просматриваемым коридором, является смежным производственным объектом (производственной зоной). Варианты расположений просматриваемых коридоров на внутренней территории постоянного объекта представлены на рисунках 4.5 - 4.7.
Рисунок 4.5 - Расположение просматриваемых коридоров
на внутренней территории постоянного объекта. Вариант 1
Рисунок 4.6 - Расположение просматриваемых коридоров
на внутренней территории постоянного объекта. Вариант 2
Рисунок 4.7 - Расположение просматриваемых коридоров
на внутренней территории постоянного объекта. Вариант 3
2) Просматриваемый коридор образуется двумя параллельными ограждениями, отстоящими друг от друга на расстоянии 7,0 - 9,0 м. С обеих сторон просматриваемого коридора устраиваются запретные зоны (рисунки 4.8, 4.9).
1 - ограждение запретной зоны (оно же ограждение
просматриваемого коридора со стороны ПКТ и ШИЗО),
2 - предупредительный знак; 3 - контрольно-следовая
полоса, 4 - рубеж обнаружения; 5 - охранное освещение;
6 - противопобеговый козырек; 7 - ограждение
просматриваемого коридора; 8 - ограждение запретной
зоны просматриваемого коридора
Рисунок 4.8 - Элементы ИТСОН в просматриваемом коридоре
между жилой (производственной) зоной и ПКТ и ШИЗО
1 - ограждение запретных зон просматриваемого коридора;
2 - предупредительный знак; 3, 9 - контрольно-следовая
полоса; 4 - ограждение просматриваемого коридора
сплошного заполнения (железобетонное); 5 - противопобеговый
козырек; 6 - охранное освещение; 7 - рубеж обнаружения;
8 - ограждение просматриваемого коридора сплошного
заполнения (деревянное) с полотном, заблокированным
охранными извещателями
(в ред. Приказа Минюста России от 17.06.2013 N 94)
(см. текст в предыдущей редакции)
Рисунок 4.9 - Элементы ИТСОН в просматриваемом коридоре
между жилой зоной и смежным с ней производственным
объектом учреждения
3) Территории просматриваемых коридоров и их запретных зон очищаются от посторонних предметов и растительности. Размещение каких-либо строений на этих территориях запрещается.
4) Жилые, коммунально-бытовые, производственные здания и другие постройки располагаются не ближе 15,0 м от ограждения внутренней запретной зоны объекта. Окна зданий, обращенные в сторону запретной зоны объекта, в необходимых случаях оборудуются металлическими решетками, а стекла окрашиваются. Жилые и коммунально-бытовые объекты оборудуются видеокамерами. Все выходы на крыши, имеющиеся в зданиях и сооружениях, оборудуются люками или дверьми и блокируются точечными охранными извещателями с выводом сигнала "Тревога" в помещение ОД и на ПУТСО.
(в ред. Приказа Минюста России от 17.06.2013 N 94)
(см. текст в предыдущей редакции)
5) На территории жилой зоны учреждения УИС устраивается предупредительное ограждение и оборудуются ИТОН изолированные участки с различными условиями отбывания наказания.
6) Ограждения изолированных участков устраиваются в соответствии с пп. 20 п. 17 настоящего Наставления.
В ограждениях изолированных участков устраиваются распашные ворота и калитки, которые блокируются точечными охранными извещателями с выводом сигнала "Тревога" в помещение ОД и оборудуются: электромеханическими замками, переговорными устройствами, видеокамерами.
(в ред. Приказа Минюста России от 17.06.2013 N 94)
(см. текст в предыдущей редакции)
7) На территории воспитательной колонии (далее - ВК), имеющей изолированный участок общего режима, предусматриваются также следующие элементы ИТОН (рисунок 4.10):
- ограждения просматриваемого коридора из забора сплошного заполнения (кирпичной, железобетонной, деревянной или смешанной конструкции) высотой не менее 3,0 м (при деревянном исполнении прогоны ограждения находятся со стороны ВК) и забора из колючей проволоки (сетки "Рабица") высотой не менее 3,0 м;
(в ред. Приказа Минюста России от 17.06.2013 N 94)
(см. текст в предыдущей редакции)
- ограждения запретных зон из колючей проволоки (сетки "Рабица") высотой не менее 2,0 м;
- КПП, оборудованный ССОИ и стационарным металлообнаружителем;
(в ред. Приказа Минюста России от 17.06.2013 N 94)
(см. текст в предыдущей редакции)
- противопобеговые козырьки на ограждениях просматриваемого коридора;
(в ред. Приказа Минюста России от 17.06.2013 N 94)
(см. текст в предыдущей редакции)
- трибоэлектрические или вибрационные охранные извещатели на ограждении из колючей проволоки (сетки "Рабица");
(в ред. Приказа Минюста России от 17.06.2013 N 94)
(см. текст в предыдущей редакции)
- радиоволновые охранные извещатели.
(в ред. Приказа Минюста России от 17.06.2013 N 94)
(см. текст в предыдущей редакции)
1 - ограждение запретных зон просматриваемого
коридора (выполненное из колючей проволоки (сетки
"Рабица") высотой 2 метра), 2 - предупредительный
знак, 3 - контрольно-следовая полоса, 4 - ограждение
просматриваемого коридора из сетки "Рабица" высотой
3 метра, заблокированное охранным извещателем,
5 - противопобеговый козырек, 6 - охранное освещение,
7 - рубеж обнаружения, 8 - ограждение просматриваемого
коридора сплошного заполнения (железобетонного, кирпичного,
деревянного исполнения) высотой 3 метра. При деревянном
исполнении поперечные крепления полотна находятся
со стороны воспитательной колонии; 9 - тропа наряда
(в ред. Приказа Минюста России от 17.06.2013 N 94)
(см. текст в предыдущей редакции)
Рисунок 4.10 - Элементы ИТСОН в просматриваемом коридоре
между воспитательной колонией и изолированным
участком общего режима
ТСОН создаются не менее двух непрерывных рубежей обнаружения.
(в ред. Приказа Минюста России от 17.06.2013 N 94)
(см. текст в предыдущей редакции)
8) Оборудование изолированного участка со строгими условиями отбывания наказания осуществляется применительно к требованиям, предъявляемым к общежитиям учреждений УИС. При этом в нем обеспечивается повышенная изоляция осужденных от остальной территории исправительной колонии. Территория участка со строгими условиями отбывания наказания выгораживается просматриваемыми коридорами.
Здание общежития со строгими условиями содержания осужденных оборудуется наружными дверьми усиленной конструкции со смотровым глазком с поворотной крышкой и электромеханическим замковым устройством. В дополнение к наружным дверям усиленной конструкции с внутренней стороны устанавливаются решетчатые двери.
Территория изолированного участка со строгими условиями отбывания наказания, как правило, просматривается с наблюдательных вышек.
Изолированный участок со строгими условиями отбывания наказания оборудуется видеокамерами с передачей изображения в помещение ОД.
(в ред. Приказа Минюста России от 17.06.2013 N 94)
(см. текст в предыдущей редакции)
Место несения службы инспектора дежурной смены по изолированному участку со строгими условиями отбывания наказания оборудуется абонентским устройством прямой связи с ОД и вызывным устройством СТС.
9) Освещение дорог, проходов между зданиями на территории объекта УИС и мест построения осужденных осуществляется светильниками, установленными на отдельно стоящих опорах. Входы в здания освещаются, как правило, настенными светильниками.
10) Питание светильников осуществляется от источников, не связанных с осветительными установками охранного освещения.
11) Окна и двери аптеки и магазина блокируются охранными извещателями, сигналы от которых передаются в помещение ОД (ПУТСНК).
(пп. 11 в ред. Приказа Минюста России от 17.06.2013 N 94)
(см. текст в предыдущей редакции)
12) Вызывные вызывные устройства СТС на внутренней территории объекта устанавливаются в зданиях медицинской части, школы, магазина, служебных помещениях администрации и во всех местах работы женщин.
(в ред. Приказа Минюста России от 17.06.2013 N 94)
(см. текст в предыдущей редакции)
13) В женских исправительных колониях (далее - ИК) дома ребенка размещаются за жилой зоной для осужденных или выгораживаются из жилой зоны. Дома ребенка, как правило, размещаются в одном здании.
Дома ребенка, расположенные вне объекта охраны, оборудуются как временные объекты УИС.
14) Помещения карантинного отделения оборудуются дверями усиленной конструкции, видеокамерами с выводом изображения на видеоконтрольные устройства ОД (ПУТСН).
(пп. 14 введен Приказом Минюста России от 17.06.2013 N 94)
31. Оборудование инженерно-техническими средствами надзора производственной зоны объектов
1) При смежном расположении жилой и производственной зон въезд в производственную зону осуществляется через транспортный шлюз административного здания и контрольную площадку. При раздельном размещении жилой и производственной зон, последняя оборудуется индивидуальным транспортным шлюзом, контрольной площадкой и КПП.
2) При суммарной площади смежно расположенных жилой и производственной зон более 5,0 га производственная зона оборудуется дополнительным открытым транспортным шлюзом, контрольной площадкой для проверки и досмотра автомобильного (железнодорожного) транспорта и КПП.
3) При размещении производственной зоны отдельно от жилой, оборудуется выводной коридор для конвоирования осужденных к месту работ.
32. Оборудование инженерно-техническими средствами надзора помещения камерного типа, единого помещения камерного типа, штрафного изолятора, дисциплинарного изолятора, помещений, функционирующих в режиме следственного изолятора, транзитно-пересыльного пункта, одиночных камер в исправительных колониях особого режима
(в ред. Приказа Минюста России от 17.06.2013 N 94)
(см. текст в предыдущей редакции)
1) Здание ПКТ, ЕПКТ, ШИЗО, ДИЗО, ПФРСИ, ТПП размещается в изолированной зоне учреждения УИС и отделяется от других участков просматриваемым коридором. Тип здания выбирается в зависимости от режима содержания осужденных в учреждении УИС и его наполнения. Как правило, здание ПКТ, ЕПКТ, ШИЗО, ДИЗО, ПФРСИ, ТПП строится в кирпичном исполнении.
(пп. 1 в ред. Приказа Минюста России от 17.06.2013 N 94)
(см. текст в предыдущей редакции)
2) В здании предусматриваются:
- комнаты младших инспекторов дежурной смены (на каждом этаже здания);
- помещение для обыска осужденных;
- кабинет для оперативных работников и начальников отрядов;
- комната для приема осужденных администрацией и медперсоналом;
- камеры на 2 - 6 человек (для ЕПКТ - на 2 - 4 человека) с общей вместимостью 8% от наполнения учреждения;
- рабочие камеры от 4 до 12 рабочих мест.
3) В комнате младшего инспектора дежурной смены устанавливаются:
- соответствующее АРМ (при условии оборудования ИСБ);
- технические средства ССОИ для приема сигнала тревоги от охранных извещателей;
- видеомониторы для отображения видеоинформации от видеокамер, установленных в здании;
- абонентские устройства оперативной связи;
- техническое средство управления электромеханическими замками;
- переговорное устройство для осуществления двусторонней связи "комната дежурного - камера";
(пп. 3 в ред. Приказа Минюста России от 17.06.2013 N 94)
(см. текст в предыдущей редакции)
4) В коридоре ПКТ, ЕПКТ, ШИЗО, ДИЗО, ПФРСИ, ТПП, одиночных камерах в ИК особого режима устанавливается металлическая решетка (от пола до потолка) с дверью, отделяющая камеры от остальных помещений.
(в ред. Приказа Минюста России от 17.06.2013 N 94)
(см. текст в предыдущей редакции)
В коридорах ПКТ, ЕПКТ, ШИЗО, ДИЗО, ПФРСИ, ТПП, одиночных камерах в ИК особого режима устанавливаются ключеулавливатели, два из которых находятся у решеток, отделяющих коридор от остальных помещений, а остальные - у дверей каждой камеры.
(в ред. Приказа Минюста России от 17.06.2013 N 94)
(см. текст в предыдущей редакции)
5) Камеры ПКТ, ЕПКТ, ШИЗО, ДИЗО, ПФРСИ, ТПП, одиночные камеры в ИК особого режима оборудуются двойными дверьми в соответствии с пп. 5, 6 п. 20 настоящего Наставления.
(в ред. Приказа Минюста России от 17.06.2013 N 94)
(см. текст в предыдущей редакции)
6) Наружные двери камер кроме обычных запоров оборудуются механическими или электромеханическими замками специального типа.
7) Разблокировка электромеханических замков, установленных на камерных дверях при камерном содержании осужденных, осуществляется из помещения младшего инспектора дежурной смены только при получении подтверждении от ОД.
(пп. 7 в ред. Приказа Минюста России от 17.06.2013 N 94)
(см. текст в предыдущей редакции)
8) Окна в камерах ПКТ, ЕПКТ, ШИЗО, ДИЗО, ПФРСИ, ТПП, одиночных камерах в ИК особого режима с двойными оконными переплетами оборудуются форточкой, открывающейся вовнутрь. С внешней стороны устанавливаются металлические сварные решетки. Со стороны камер окна отгораживаются решеткой, исключающей доступ к стеклу.
(в ред. Приказа Минюста России от 17.06.2013 N 94)
(см. текст в предыдущей редакции)
В зданиях IV и V степени огнестойкости оконные решетки устанавливаются навесные, открывающиеся снаружи.
9) Провода электропитания светильников, шлейфы сигнализации и кабель, транслирующий видеосигнал, в камерах ПКТ, ЕПКТ, ШИЗО, ДИЗО, ПФРСИ, ТПП, одиночных камерах в ИК особого режима прокладываются скрыто, под слоем штукатурки, в металлических трубах. Светильники общего и дежурного освещения устанавливаются в нишах и ограждаются со стороны камер решетками. Выключатели размещаются у дверей каждой камеры в коридоре.
(пп. 9 в ред. Приказа Минюста России от 17.06.2013 N 94)
(см. текст в предыдущей редакции)
Приказом Минюста России от 17.06.2013 N 94 в подпунктах 8 - 10 слова "ПКТ и ШИЗО, ЕПКТ, одиночных камерах в исправительных колониях особого режима, камерах ДИЗО" заменены словами "ПКТ, ЕПКТ, ШИЗО, ДИЗО, ПФРСИ, ТПП, одиночных камерах в ИК особого режима".
10) ПКТ и ШИЗО, ЕПКТ, одиночные камеры в исправительных колониях особого режима оборудуются откидными койками, закрываемыми в дневное время на замок, тумбами или скамейками для сидения (по числу содержащихся лиц) и столом, наглухо прикрепленными к полу. Конструктивное исполнение запорных устройств коек приведено в приложении 4.
11) В камерах ПКТ, ЕПКТ, ШИЗО, ДИЗО, ПФРСИ, ТПП, одиночных камерах в ИК особого режима на стене у двери устанавливается переговорное устройство для осуществления двусторонней связи. В комнатах младших инспекторов дежурной смены, помещении ОД учреждения УИС и заместителя начальника учреждения УИС по безопасности и оперативной работе располагаются пульты системы двусторонней связи.
(пп. 11 в ред. Приказа Минюста России от 17.06.2013 N 94)
(см. текст в предыдущей редакции)
12) Вызывные устройства СТС устанавливаются в коридорах ПКТ, ЕПКТ, ШИЗО, ДИЗО, ПФРСИ, ТПП, одиночных камерах в ИК особого режима (не менее двух на коридор), в комнате младшего инспектора дежурной смены и на наблюдательной вышке (эстакаде) прогулочных дворов. Сигналы тревоги от них передаются в помещение ОД учреждения УИС.
(в ред. Приказа Минюста России от 17.06.2013 N 94)
(см. текст в предыдущей редакции)
Внутри камер и у калитки для входа на территорию ПКТ, ЕПКТ, ШИЗО, ДИЗО, ПФРСИ, ТПП, одиночных камерах в ИК особого режима устанавливаются кнопки для вызова инспектора дежурной смены. Сигналы от этих кнопок поступают на приемные аппараты, установленные в комнате инспектора дежурной смены и коридоре.
(в ред. Приказа Минюста России от 17.06.2013 N 94)
(см. текст в предыдущей редакции)
13) Все двери и окна, чердачное перекрытие и крыши зданий ПКТ, ЕПКТ, ШИЗО, ДИЗО, ПФРСИ, ТПП, одиночных камер в ИК особого режима оборудуются охранными извещателями. Соединительные линии от охранных извещателей внутри здания выполняются скрытой проводкой.
Камерные помещения ПФРСИ и ТПП оборудуются видеокамерами в антивандальном исполнении.
В комнате обыска или в коридоре зданий ПКТ, ЕПКТ, ШИЗО, ДИЗО, ПФРСИ, ТПП, одиночных камер в ИК особого режима устанавливаются приборы обнаружения запрещенных предметов.
(пп. 13 в ред. Приказа Минюста России от 17.06.2013 N 94)
(см. текст в предыдущей редакции)
14) К зданию ПКТ, ЕПКТ, ШИЗО, ДИЗО, ПФРСИ, ТПП примыкают прогулочные дворы. Ограждение прогулочных дворов и перегородки между ними выполняются кирпичными толщиной не менее 38 см или железобетонными высотой не менее 3,0 м. По верху прогулочных дворов крепится металлическая рама, к которой приваривается металлическая решетка с ячейками не более 170 x 170 мм. Сверху на решетку укладывается и закрепляется металлическая сетка с ячейками не более 50 x 50 мм.
(в ред. Приказа Минюста России от 17.06.2013 N 94)
(см. текст в предыдущей редакции)
В середине каждого прогулочного двора устанавливается скамейка, которая надежно крепится к полу. Над прогулочными дворами, вдоль стен, противоположных помосту для младшего инспектора, устраиваются облегченные навесы для укрытия от атмосферных осадков шириной до 1,2 м.
Двери прогулочных дворов устраиваются по типу камерных, но без форточек.
15) Для наблюдения за осужденными устанавливается наблюдательная вышка (эстакада).
16) В зданиях ПКТ и ШИЗО, ЕПКТ, ДИЗО для обеспечения установленного режима и исключения несанкционированных действий осужденных создается рубеж обнаружения комбинацией охранных извещателей и устройств контроля доступа, снаружи и внутри помещений устанавливаются СТС.
(в ред. Приказа Минюста России от 17.06.2013 N 94)
(см. текст в предыдущей редакции)
Сигналы от охранных извещателей, видеокамер, расположенных в просматриваемых коридорах, в здании ПКТ, ЕПКТ, ШИЗО, ДИЗО, ПФРСИ, ТПП, одиночных камерах в ИК особого режима и других режимных помещениях на внутренней территории объекта передаются на устройство ССОИ в помещении часового-оператора ПУТСО и в здание ОД.
(в ред. Приказа Минюста России от 17.06.2013 N 94)
(см. текст в предыдущей редакции)
33. Оборудование инженерно-техническими средствами надзора просматриваемых коридоров
1) Просматриваемые коридоры устраиваются и огораживаются в соответствии с пп. 21 п. 17, пп. 2, 3 п. 30 настоящего Наставления.
Торцевые стороны просматриваемого коридора вплотную примыкают к ограждению внутренней запретной зоны (контрольной площадки) объекта.
Со стороны ПКТ, ЕПКТ, ШИЗО, ДИЗО, ПФРСИ, ТПП ограждение коридора одновременно является ограждением запретной зоны.
(в ред. Приказа Минюста России от 17.06.2013 N 94)
(см. текст в предыдущей редакции)
2) Просматриваемый коридор между территорией ПКТ, ЕПКТ, ШИЗО, ДИЗО, ПФРСИ, ТПП и территорией жилой (производственной) зоны выгораживается со стороны жилой (производственной) зоны забором сплошного заполнения, а со стороны ПКТ, ЕПКТ, ШИЗО, ДИЗО, ПФРСИ, ТПП - забором из колючей проволоки (армированной колючей ленты), который одновременно является ограждением запретной зоны. Запретная зона коридора (шириной 2,0 м) выгораживается только со стороны жилой (производственной) зоны. КСП шириной 2,0 м устраивается у каждого ограждения запретной зоны.
(в ред. Приказа Минюста России от 17.06.2013 N 94)
(см. текст в предыдущей редакции)
3) Калитки в ограждениях запретных зон просматриваемых коридоров оборудуются запорными устройствами, а калитки в ограждениях просматриваемых коридоров - замковыми устройствами и охранными извещателями с выводом сигнала тревоги в помещение ОД учреждения.
(в ред. Приказа Минюста России от 17.06.2013 N 94)
(см. текст в предыдущей редакции)
4) Предупредительные знаки крепятся к стойкам ограждений запретных зон коридора через каждые 25 м на высоте 1,65 м от земли.
5) В темное время суток территория просматриваемого коридора и его запретных зон освещается. Светильники просматриваемых коридоров устанавливаются на стойках забора сплошного заполнения и жестко крепятся на кронштейнах к стойкам этих ограждений.
Для увеличения освещенности запретных зон применяются прожекторы.
6) В просматриваемом коридоре создается один непрерывный рубеж обнаружения, как правило, радиолучевыми, антенно-проводными или инфракрасными охранными извещателями. Высота и ширина рубежа обнаружения формируется не менее 1,5 x 0,2 м. В случае, если ограждения просматриваемого коридора деревянной конструкции, его полотно блокируется охранными извещателями или сигнализаторами.
(в ред. Приказа Минюста России от 17.06.2013 N 94)
(см. текст в предыдущей редакции)
Для наблюдения за просматриваемым коридором у основного ограждения устанавливаются дополнительные наблюдательные вышки.
34. Оборудование инженерно-техническими средствами надзора зданий оперативного дежурного
1) Здание ОД строится на стыке смежных жилой и производственной зон и примыкает к контрольной площадке. Оно используется для размещения в нем дежурной смены учреждения и пропуска осужденных из одной изолированной зоны в другую.
Окна первого этажа здания оборудуются металлическими решетками и блокируются охранными извещателями. Входные двери здания выполняются усиленной конструкции со смотровым глазком (или видеокамерой) и электромеханическим замком.
(в ред. Приказа Минюста России от 17.06.2013 N 94)
(см. текст в предыдущей редакции)
2) В помещениях ОД (ПУТСН) устанавливаются:
- соответствующее АРМ (при условии оборудования ИСБ);
- устройства ССОИ от охранных извещателей и СТС, установленных на территории объекта УИС;
- устройство громкоговорящей связи;
- видеоконтрольные устройства системы охранного телевидения внутренней территории объекта УИС;
- устройство представления информации (мнемосхемы, световое табло);
- аппаратурой телефонной связи;
- СТС для подачи сигнала "Тревога" в караульное помещение;
- станционное устройство системы дистанционного разрешения на открывание дверей камер ПКТ, ЕПКТ, ШИЗО, ДИЗО, ПФРСИ, ТПП, одиночных камер в ИК особого режима;
- радиостанции (стационарная и носимая);
- пульт системы связи "камера - младший инспектор дежурной смены - ОД";
- абонентское устройство для прямой связи с НК;
- аппараты управления освещением внутренней территории объекта УИС;
- видеокамера с выводом изображения на видеоконтрольное устройство в помещении заместителя начальника учреждения по безопасности и оперативной работе.
Помещение оператора СОТ оборудуется:
- соответствующим АРМ (при условии оборудования ИСБ);
- аппаратурой управления громкоговорящей связью;
- аппаратурой связи (телефоном, радиостанцией);
- аппаратурой для распечатки видеоинформации на бумажном носителе (принтер);
- телефоном прямой связи с ПУТСО, дежурной частью территориального органа ФСИН России;
- абонентским громкоговорителем для контроля переговоров сотрудников караула и дежурной смены;
- концетратором для приема сигналов о срабатывании ТСОН;
- СТС с выводом на пульт ОД (один на каждого оператора);
- видеокамерой с выводом изображения на видеоконтрольное устройство в помещении ОД.
(пп. 2 в ред. Приказа Минюста России от 17.06.2013 N 94)
(см. текст в предыдущей редакции)
3) Все инспектора дежурной смены обеспечиваются радиостанциями для связи с ОД. При необходимости в местах несения службы инспекторами дежурной смены устанавливаются вызывные устройства СТС.
4) Для пропуска осужденных из одной изолированной зоны в другую в здании ОД (рядом с ним) устраивается внутренний КПП. В состав помещений КПП входят: помещения для обыска осужденных, санпропускник с раздевалками, душевыми и санузлами, помещение нарядчика.
КПП оборудуется приборами для обнаружения запрещенных предметов. При необходимости для прохода осужденных из одной зоны в другую может устраиваться подземный освещаемый коридор.
5) При отсутствии здания ОД дежурная часть учреждения и инспектора дежурной смены размещаются в здании основного КПП или в других помещениях на внутренней территории объекта. В этом случае обыск осужденных производится в специально выделенных помещениях.
- Гражданский кодекс (ГК РФ)
- Жилищный кодекс (ЖК РФ)
- Налоговый кодекс (НК РФ)
- Трудовой кодекс (ТК РФ)
- Уголовный кодекс (УК РФ)
- Бюджетный кодекс (БК РФ)
- Арбитражный процессуальный кодекс
- Конституция РФ
- Земельный кодекс (ЗК РФ)
- Лесной кодекс (ЛК РФ)
- Семейный кодекс (СК РФ)
- Уголовно-исполнительный кодекс
- Уголовно-процессуальный кодекс
- Производственный календарь на 2025 год
- МРОТ 2026
- ФЗ «О банкротстве»
- О защите прав потребителей (ЗОЗПП)
- Об исполнительном производстве
- О персональных данных
- О налогах на имущество физических лиц
- О средствах массовой информации
- Производственный календарь на 2026 год
- Федеральный закон "О полиции" N 3-ФЗ
- Расходы организации ПБУ 10/99
- Минимальный размер оплаты труда (МРОТ)
- Календарь бухгалтера на 2026 год
- Частичная мобилизация: обзор новостей
- Постановление Правительства РФ N 1875









