3. Размещение и крепление грузов в крытых вагонах универсального назначения

3. Размещение и крепление грузов в крытых вагонах

универсального назначения

3.1. Размещение и крепление непакетированных грузов в таре ящичного типа (деревянные, полимерные ящики, коробки из гофрированного или плоского склеенного картона, ящичные поддоны и др., далее - ящики), а также порожних ящиков и пакетов порожних ящиков, грузов, сформированных в пакеты (далее - пакеты), кроме цветных металлов.

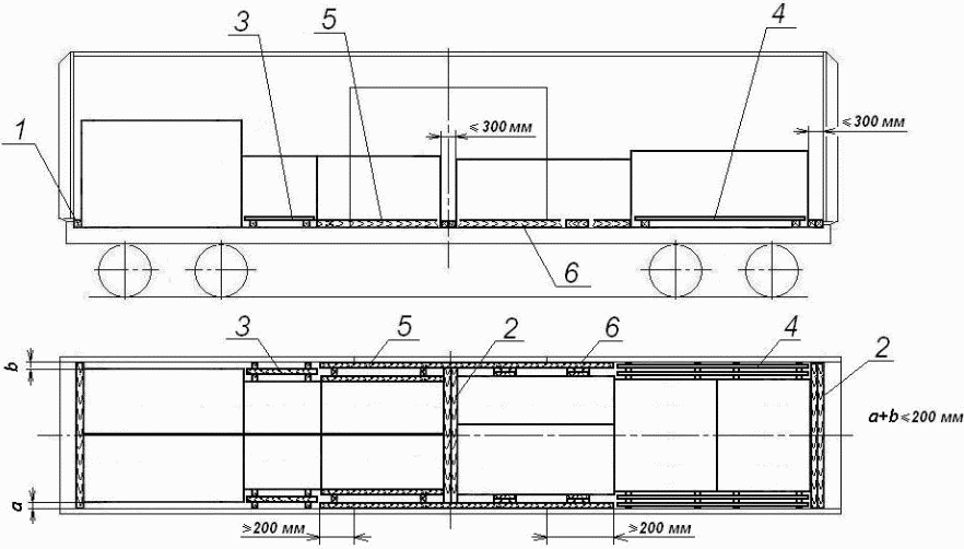
3.1.1. Ящики размещают несколькими ярусами по высоте по всей длине и ширине вагона (рисунок 13). Количество ярусов груза в вагоне определяют, исходя из механических свойств тары.

Рисунок 1080

Рисунок 13 - Примеры размещения непакетированных грузов

в таре ящичного типа

1 - доска ограждения дверей

Ящики размещают двумя штабелями от торцевых стен к междверному пространству вплотную к торцевым стенам вагона и друг к другу в один или несколько ярусов по высоте.

В каждом ярусе ящики размещают таким образом, чтобы зазоры между ящиками и продольными стенами вагона были минимальными (рисунок 13а).

Для обеспечения минимальных зазоров между ящиками в продольном и поперечном направлениях в ярусах допускается комбинировать расположение ящиков длинной стороной вдоль и поперек вагона (рисунок 13б), если такое расположение допускается по условиям прочности ящиков.

Допускается размещать в одном вагоне ящики различных размеров. В этом случае в каждом ярусе штабеля размещают ящики одной высоты (рисунок 13в).

Допускается укладывать между ярусами прокладочные материалы.

Допускается в торцевых частях вагона размещать ящики двумя равными по ширине штабелями вплотную к боковым стенам (рисунок 13г). В этом случае при необходимости боковые стены ограждают прокладочными материалами.

Ограждение дверей производят с учетом положений пункта 1.9 настоящей главы.

Если зазор между штабелями в середине вагона не превышает 200 мм, крепление ящиков в продольном направлении не производят.

Крепление в поперечном направлении не производят, если суммарный зазор между ящиками и боковыми стенами (при размещении штабеля симметрично относительно продольной плоскости симметрии вагона) или зазор между ящиками посередине вагона (при размещении их вплотную к боковым стенам) не превышает 200 мм.

При размещении бутылок с жидкостями, упакованных в обрешетки, между ярусами укладывают прокладочные материалы, а при наличии зазоров между штабелями в продольном направлении, зазоров между штабелями и боковыми стенами вагона независимо от величины зазоров устанавливают крепление.

3.1.2. Пакеты размещают в вагоне двумя штабелями от торцевых стен к междверному пространству вплотную к торцевым стенам вагона и друг к другу в один или несколько ярусов по высоте (рисунок 14).

Если суммарный зазор по ширине вагона между пакетами, пакетами и боковыми стенами, не превышает 200 мм, пакеты размещают вплотную друг к другу симметрично продольной плоскости симметрии вагона (рисунок 14а).

Если суммарный зазор составляет 200 - 400 мм, пакеты размещают следующим образом: в рядах у торцевых стен пакеты устанавливают вплотную к боковым стенам вагона, во вторых от торцевых стен рядах пакеты размещают вплотную друг к другу. Далее ряды чередуют (рисунок 14б). При таком размещении допускается крепление пакетов в поперечном направлении не производить.

Для уменьшения зазоров по длине вагона один или несколько рядов пакетов размещают длинной стороной вдоль вагона (рисунок 14в).

Допускается размещать в вагоне пакеты различной высоты (рисунок 14г).

Если зазор между штабелями в середине вагона не превышает 200 мм, допускается не производить крепление пакетов в продольном направлении.

Рисунок 1081

Рисунок 14 - Примеры размещения пакетов

1 - доска ограждения дверей

3.1.3. Если при размещении ящиков, пакетов в одном или нескольких ярусах зазоры вдоль или (и) поперек вагона превышают величины, указанные в пунктах 3.1.1 и 3.1.2 настоящей главы, ящики, пакеты закрепляют от смещения в продольном или (и) поперечном направлениях (рисунки 15, 17, 18).

3.1.4. Крепление ящиков, пакетов в продольном направлении производят распорными рамами (рисунки 15а, 15б, 15д, 15е, 15ж), распорными конструкциями (рисунки 15в, 15г, 15и, 15к) или пневмооболочками (рисунок 17).

Длина распорных брусков распорных рам или распорных конструкций не должна превышать 2500 мм - для брусков, закрепленных к деревянному полу (не менее двух гвоздей на каждые 0,5 м длины бруска), 1700 мм - для брусков, не закрепленных к полу. Для крепления ящиков, пакетов неполного верхнего яруса допускается использовать ящики, пакеты нижележащего яруса, которые устанавливают на подкладки, прокладки (рисунки 15д, 15л), или ящики, пакеты большей высоты (рисунок 15е). Возможность такого крепления определяется по условиям прочности ящиков, пакетов и средств пакетирования.

Рисунок 1082

Рисунок 15 - Примеры крепления ящиков, пакетов

в продольном направлении

1 - распорная рама; 2 - распорная конструкция;

3 - подкладка; 4 - накладка-распорка

Если в одном из поперечных рядов в междверном пространстве размещают меньшее количество пакетов, чем в соседних, в зазор устанавливают: при одноярусном размещении - распорную раму (рисунок 15л), при двухъярусном размещении - распорную раму в нижнем ярусе и накладку-распорку в верхнем ярусе (рисунок 15м).

Распорные рамы (рисунок 16а) выполняют из упорных досок сечением не менее 40 x 100 мм длиной не менее ширины яруса и распорных брусков. Распорные конструкции (рисунки 16б, 16в) выполняют из стоек и опорных брусков сечением не менее 40 x 100 мм, упорных досок сечением не менее 40 x 100 мм, а также распорных брусков. Упорные доски и распорные бруски в распорных конструкциях устанавливают напротив каждого закрепляемого яруса.

Рисунок 1083

Рисунок 16 - Распорная рама, распорная конструкция

1 - упорная доска; 2 - распорный брусок; 3 - стойка;

4 - брусок; 5 - накладка; 6 - доска; 7, 8 - опорные бруски

Упорные доски скрепляют с распорными брусками гвоздями диаметром не менее 5 мм, остальные элементы - гвоздями диаметром не менее 4 мм, не менее двух в каждое соединение. Если толщина упорных досок составляет более 80 мм, допускается скреплять их с распорными брусками строительными скобами из прутка диаметром 8 мм.

Количество распорных брусков каждой распорной рамы и распорной конструкции для крепления в продольном направлении определяют по таблице 1 в зависимости от их сечения и массы закрепляемой группы ящиков, пакетов в каждом неполном ярусе. Если крепление производят в соответствии со схемами, приведенными на рисунке 15д, 15е, в расчет принимается суммарная масса группы ящиков, пакетов двух верхних ярусов. Если масса групп ящиков верхних ярусов не одинакова, в расчет принимается масса более тяжелой группы ящиков, пакетов.

Таблица 1

Сечение распорного бруска, мм

Количество распорных брусков в зависимости от массы группы ящиков, пакетов в каждом неполном ярусе

до 5 т вкл.

свыше 5 т до 10 т вкл.

свыше 10 т до 15 т вкл.

50 x 100

3

5

7

80 x 100

2

3

5

100 x 100

2

3

4

Примечания:

1. При применении брусков, имеющих сечение, отличающееся от приведенных в таблице, количество брусков определяют как для брусков с ближайшими меньшими размерами сечения.

2. Количество распорных брусков определяют в зависимости от массы более тяжелой группы ящиков, пакетов.

В распорных рамах с двумя распорными брусками их располагают на расстоянии от концов упорной доски, равном приблизительно 1/4 длины упорной доски, в остальных случаях - на равном расстоянии от концов упорной доски и между распорными брусками.

Между ящиками и упорными досками допускается устанавливать прокладочный материал.

3.1.5. Крепление ящиков, пакетов в продольном направлении с использованием пневмооболочек (рисунок 17) производят в следующем порядке.

Пневмоболочки помещают в зазор между штабелями (группами) ящиков, пакетов на высоте от пола вагона 100 - 200 мм и заполняют воздухом до рабочего давления в соответствии с инструкцией изготовителя. Размеры пневмооболочек подбирают таким образом, чтобы после установки контактная поверхность пневмооболочек перекрывала не менее половины площади каждого ящика и не менее 3/4 площади каждого пакета. При величине зазора более того, который может быть заполнен одной пневмооболочкой, в зазор устанавливают две пневмооболочки (рисунок 17б), или ящики, пакеты размещают тремя штабелями таким образом, чтобы зазоры были одинаковыми (рисунок 17в). Если поверхности ящиков, пакетов имеют острые углы или выступающие части, которые могут повредить пневмооболочки, между ними и пневмооболочками устанавливают прокладочный материал.

Подбор пневмооболочек и варианта их установки производят в зависимости от величины зазора между штабелями (группами) ящиков, пакетов, массы и высоты каждого штабеля (группы), несущей способности конкретного типа и размера пневмооболочки. Под несущей способностью пневмооболочки понимается величина допускаемой нагрузки при конкретной величине заполняемого зазора. Суммарная несущая способность установленных пневмооболочек в зависимости от массы закрепляемого штабеля (группы) ящиков, пакетов должна быть не менее приведенной в таблице 2.

Рисунок 1084

Рисунок 17 - Примеры крепления ящиков, пакетов в продольном

направлении с использованием пневмооболочек

1 - пневмооболочка; 2 - распорная рама; 3 - подкладка

Таблица 2

Масса штабеля (группы) ящиков, пакетов, т

Необходимая суммарная несущая способность пневмооболочек, т

Масса штабеля (группы) ящиков, пакетов, т

Необходимая суммарная несущая способность пневмооболочек, т

до 15 вкл.

10

свыше 25 до 30 вкл.

20

свыше 15 до 20 вкл.

15

свыше 30 до 35 вкл.

24

свыше 20 до 25 вкл.

18

При установке в одной плоскости поперек вагона нескольких пневмооболочек их суммарная несущая способность равна сумме несущих способностей всех пневмооболочек.

При установке двух одинаковых пневмооболочек по длине штабеля вдоль вагона (рисунки 17б, 17в, 17и) их несущая способность равна несущей способности одной пневмооболочки. При установке двух различных пневмооболочек их несущая способность принимается по меньшему значению.

Если части штабеля, закрепляемые пневмооболочками, имеют разную массу, а также при размещении в соответствии с рисунком 17в, пневмооболочки подбирают по массе более тяжелой части штабеля.

3.1.6. Крепление ящиков, пакетов в поперечном направлении производят распорными щитами, пневмооболочками (рисунок 18).

При размещении ящиков плотными штабелями в середине вагона в зазоры между штабелями и боковыми стенами устанавливают распорные щиты по всей длине штабеля до дверного проема (рисунок 18а). Щиты изготавливают из стоек и горизонтальных упорных досок толщиной не менее 40 мм. Расстояние между стойками должно быть не более 1500 мм.

При размещении пакетов устанавливают аналогичные распорные щиты по длине трех крайних поперечных рядов (рисунок 18к); стойки щита располагают приблизительно посередине пакета. Размеры сечения стоек и горизонтальных досок подбирают таким образом, чтобы после установки щита зазор между щитом и ящиками, пакетами не превышал 50 мм. Горизонтальные доски располагают приблизительно на высоте середины ярусов: при размещении двумя ярусами - каждого из ярусов, при размещении ящиков тремя или четырьмя ярусами - верхних двух; при большем количестве ярусов - верхних трех ярусов. Допускается выполнять распорные щиты составными (с количеством стоек не менее двух) и устанавливать их вплотную друг к другу. Доски щита скрепляют со стойками гвоздями длиной не менее 80 мм по два в каждое соединение. Распорные щиты устанавливают стойками к боковой стене вагона.

При размещении в один ярус - ящики, пакеты крепят упорными брусками высотой не менее 50 мм, каждый из которых прибивают к полу вагона гвоздями диаметром не менее 5 мм - не менее чем двумя на каждый метр длины бруска.

При размещении ящиков, пакетов двумя равными по ширине штабелями вплотную к боковым стенам распорные щиты устанавливают в зазор в середине вагона (рисунок 18б).

В штабелях с количеством ярусов четыре и более допускается размещать ящики, пакеты в нижних ярусах попеременно вплотную друг к другу в середине вагона и с раздвижкой к боковым стенам с равными зазорами между ящиками, пакетами (рисунок 18в, 18г). При этом зазоры между ящиками и боковыми стенами вагона должны быть не более % ширины (длины) ящика, пакета. В двух верхних ярусах ящики, пакеты размещают вплотную друг к другу и закрепляют распорными щитами.

Крепление ящиков, пакетов в поперечном направлении с использованием пневмооболочек производят порядком, аналогичным креплению в продольном направлении. При размещении ящиков пневмооболочки устанавливают на равном расстоянии друг от друга по всей длине штабеля от торцевых стен до дверного проема (рисунки 18д, 18е, 18ж, 18и); при размещении пакетов - таким образом, чтобы пневмооболочки перекрывали не менее трех крайних рядов пакетов в торцах вагона (рисунок 18л).

Суммарная несущая способность пневмооболочек для крепления в поперечном направлении штабеля (группы) ящиков, пакетов должна быть не менее приведенной в таблице 3.

Таблица 3

Масса штабеля (группы) ящиков, пакетов, т

Необходимая суммарная несущая способность пневмооболочек, т

Масса штабеля (группы) ящиков, пакетов, т

Необходимая суммарная несущая способность пневмооболочек, т

до 10 вкл.

3,3

свыше 20 до 25 вкл.

8,5

свыше 10 до 15 вкл.

6,5

свыше 25 до 30 вкл.

10,0

свыше 15 до 20 вкл.

7,0

свыше 30 до 35 вкл.

12,0

Рисунок 1085

Рисунок 18 - Примеры крепления ящиков, пакетов

в поперечном направлении:

а, б, в, г, д, е, ж, и - крепление ящиков; к, л - крепление

пакетов 1 - стойка; 2 - упорная доска; 3 - пневмооболочка

Допускается заполнять зазор между ящиками, пакетами и боковыми стенами вагона твердыми прокладочными материалами необходимой толщины, а также использовать эти материалы совместно с распорными щитами.

3.2. Размещение и крепление бочек и барабанов.

3.2.1. Бочки, барабаны размещают в вагонах в вертикальном положении пробками (крышками) вверх в один или несколько ярусов по высоте (рисунок 19).

В каждом ярусе бочки, барабаны располагают вплотную к торцевым стенам и друг к другу рядами или в шахматном порядке по всей длине вагона. В междверном пространстве бочки, барабаны размещают продольными рядами вплотную друг к другу. Если в торцевых частях вагона бочки, барабаны размещены в шахматном порядке (рисунки 19а, 19в, 19г, 19д, 19е), между ними и бочками, барабанами, размещенными в междверном пространстве, устанавливают листы фанеры толщиной не менее 6 мм или щиты в соответствии с пунктом 1.7 настоящей главы.

Допускается размещать в одном вагоне бочки, барабаны различных типов и размеров при условии соблюдения положений пункта 1.4 настоящей главы. В пределах каждого яруса, кроме верхнего, размещают бочки, барабаны одинаковой высоты.

При размещении бочек, барабанов с металлическими днищами несколькими ярусами (за исключением случаев, когда днище и верхняя часть выполнены для взаимной фиксации бочек при штабелировании) между ярусами укладывают продольные деревянные прокладки из досок сечением не менее 25 x 100 мм или листовой прокладочный материал, которые располагают таким образом, чтобы обеспечивалась устойчивость каждой бочки, барабана. При размещении порожних бочек, барабанов допускается не укладывать прокладочный материал между ярусами.

При неполном верхнем ярусе бочки, барабаны размещают группами в торцах вагона и закрепляют от смещения в продольном направлении распорными конструкциями (рисунок 19в), пневмооболочками (рисунки 19г, 19д, 19е). Распорные конструкции выполняют в соответствии с положениями пункта 3.1.4 настоящей главы. Упорные доски, распорные бруски распорных конструкций располагают по высоте не менее половины высоты бочек, барабанов, распорные бруски располагают напротив каждой бочки в поперечном ряду.

3.2.2. Крепление бочек, барабанов пневмооболочками производят в соответствии с положениями пункта 3.1.5 настоящей главы. Количество, размеры и расположение (вертикальное или горизонтальное) пневмооболочек определяют в зависимости от массы закрепляемого штабеля, размеров бочек, барабанов таким образом, чтобы пневооболочки перекрывали всю ширину штабеля и не менее половины высоты каждого яруса. Для предотвращения повреждения пневмооболочек при необходимости между ними и бочками, барабанами устанавливают прокладочные материалы.

3.2.3. Если при размещении бочек, барабанов в междверном пространстве несколькими ярусами зазор между ними и стойками дверного проема превышает 250 мм, бочки закрепляют в поперечном направлении распорными щитами (рисунок 19б), при необходимости - совместно с прокладочными материалами. При этом доски ограждения дверей не устанавливаются. Распорные щиты изготавливают в соответствии с положениями пункта 3.1.6 настоящей главы. Допускается не производить крепление бочек, барабанов в междверном пространстве в поперечном направлении, если в каждом поперечном ряду бочки, барабаны скреплены между собой не менее чем по две.

Рисунок 1086

Рисунок 19 - Примеры размещения и крепления грузов

в бочках, барабанах

1 - прокладочный материал; 2 - доска ограждения дверей;

3 - щит; 4 - распорный щит; 5 - распорная конструкция;

6 - пневмооболочка

3.3. Размещение и крепление рулонов бумаги и картона.

3.3.1. Рулоны бумаги и картона (далее - рулоны) размещают в вагоне симметрично относительно продольной плоскости симметрии с установкой на торец в один или несколько ярусов по высоте. В каждом ярусе рулоны размещают вплотную к торцевым стенам и друг к другу двумя или тремя рядами по ширине вагона или в шахматном порядке (рисунок 20). При размещении в шахматном порядке у торцевых стен располагают по два рулона.

Рулоны различных размеров допускается размещать в одном вагоне при соблюдении положений пункта 1.4 настоящей главы.

При необходимости торцевые и боковые стены вагона ограждают прокладочными материалами, а пол вагона застилают.

Ограждение дверей производят в соответствии с положениями пункта 1.9 настоящей главы. При необходимости доски ограждения закрывают упаковочным материалом.

При размещении рулонов в вагоне тремя и более ярусами по высоте допускается в междверном пространстве в верхнем ярусе размещать не более двух рулонов одним продольным рядом без зазоров между ними (рисунок 20г). Если рулоны верхнего яруса в междверном пространстве расположены не по всей ширине вагона, допускается доски ограждения дверей в этом ярусе не устанавливать.

Допускается размещать в междверном пространстве один или несколько рулонов, установленных на поддоны, если это обусловлено технологией погрузки.

3.3.2. Если зазор между штабелями рулонов в середине вагона не превышает 200 мм, их крепление в продольном направлении допускается не производить. При большей величине зазоров их заполняют прокладочными материалами, распорными рамами или конструкциями, щитами, пневмооболочками.

При неполном верхнем ярусе рулоны размещают группами в торцах вагона и закрепляют от смещения в продольном направлении распорными щитами, распорными рамами, распорными конструкциями, пневмооболочками, устанавливаемыми в зазоры в междверном пространстве (рисунок 21).

Распорные щиты, распорные рамы, распорные конструкции выполняют в соответствии с положениями пунктов 3.1.4, 3.1.6 настоящей главы. Упорные доски, распорные бруски распорных конструкций, распорных щитов располагают по высоте не менее 1/4 высоты закрепляемых рулонов, распорные бруски располагают напротив каждого рулона в поперечном ряду. Для обеспечения необходимой высоты расположения упорных досок допускается распорную раму устанавливать на подкладки (например, поддон для пакетирования грузов, подставка из пиломатериалов) (рисунок 21в).

Если крепление рулонов производят пневмооболочками, в междверном пространстве между группами рулонов должно быть не более двух зазоров по длине вагона.

Крепление рулонов в продольном направлении пневмооболочками (рисунок 21е, 21ж) производят, если зазоры между рулонами превышают 100 мм. Подбор пневмооболочек для крепления рулонов и их установку производят в соответствии с положениями пункта 3.1.5 настоящей главы. При размещении в верхнем ярусе меньшего количества рулонов, чем в нижнем, рулоны верхнего яруса закрепляют распорной рамой (рисунки 21в, 21ж).

3.3.3. Если при размещении рулонов двумя продольными рядами зазоры между рулонами и боковыми стенами превышают 100 мм, рулоны крепят от смещения в поперечном направлении распорными щитами (рисунок 22а) или пневмооболочками (рисунок 22б) в соответствии с пунктом 3.1.6 настоящей главы. Пневмооболочки устанавливают напротив каждого поперечного ряда рулонов, за исключением рулонов, размещенных в междверном пространстве.

Допускается заполнять зазор между рулонами и боковыми стенами вагона прокладочными материалами необходимой толщины, а также использовать эти материалы совместно с распорными щитами.

Рисунок 1087

Рисунок 20 - Примеры размещения рулонов бумаги и картона

1 - доска ограждения дверей

Рисунок 1088

Рисунок 21 - Примеры крепления рулонов

в продольном направлении

1 - распорный щит; 2 - распорная рама; 3 - распорная

конструкция; 4 - подкладка; 5 - пневмооболочка

Рисунок 1089

Рисунок 22 - Примеры крепления рулонов

в поперечном направлении

1 - распорный щит; 2 - пневмооболочка

3.3.4. Допускается размещать рулоны во втором ярусе на образующую (рисунок 23) симметрично относительно продольной плоскости симметрии вагона. Рулоны, уложенные вплотную к торцевым стенам, подклинивают каждый двумя упорами высотой не менее 120 мм шириной не менее 250 мм, устанавливаемыми враспор между торцевой стеной вагона и рулоном на расстоянии 250 - 300 мм от торцов рулона. Остальные рулоны размещают вплотную друг к другу. В междверном пространстве между рулонами второго яруса устанавливают распорную раму, состоящую из двух распорных брусков сечением не менее 100 x 100 мм, упорных досок сечением не менее 40 x 100 мм, подкосов сечением не менее 100 x 100 мм и соединительных планок сечением не менее 25 x 80 мм. Упорные доски, распорные бруски и подкосы скрепляют между собой гвоздями диаметром не менее 5 мм длиной не менее 150 мм по два в каждое соединение. Соединительные планки прибивают к распорным брускам гвоздями длиной не менее 80 мм.

Допускается закреплять в продольном направлении рулоны, размещаемые на образующую, используя в качестве упоров один или несколько поперечных рядов рулонов, установленных на подкладки (рисунок 23б), а при размещении в одном вагоне рулонов различной высоты - более низких рулонов, установленных на торец в два яруса (рисунок 23в).

Рисунок 1090

Рисунок 23 - Примеры размещения и крепление рулонов

1 - доска ограждения дверей; 2 - упор; 3 - распорный брусок;

4 - упорная доска; 5 - подкос; 6 - соединительная планка;

7 - подставка

3.4. Размещение и крепление цветных металлов (кроме алюминия) в слитках и пакетах.

3.4.1. Слитки, пакеты (слитков, чушек, катодов и др.) цветных металлов размещают в вагонах длиной кузова до 13864 мм с деревянным или дерево-металлическим настилом пола.

Допускается размещать в одном вагоне слитки, пакеты различной массы при соблюдении положений пункта 1.4 настоящей главы.

Слитки, пакеты размещают в вагоне в один ярус по высоте симметрично относительно продольной плоскости симметрии вагона вплотную к торцевым стенам и друг к другу по длине и ширине кузова вагона (рисунки 24, 25).

Рисунок 1091

Рисунок 24 - Примеры размещения и крепления слитков

1 - торцевой щит; 2, 3 - упорные бруски; 4 - брусок

ограждения дверного проема; 5, 6 - распорные рамы;

7 - распорные бруски

Рисунок 1092

Рисунок 25 - Примеры размещения и крепления пакетов

цветных металлов

1 - торцевой щит; 2, 8 - упорные бруски; 3, 5 - распорные

рамы; 4 - брусок ограждения дверного проема; 6, 7,

9 - распорные бруски; 10 - подкладка; 11 - увязка

Торцевые стены вагона ограждают щитами в соответствии с положениями пункта 1.7 настоящей главы. Щит устанавливают стойками к грузу. Высота щита по верхней горизонтальной доске должна быть выше слитков, пакетов на 50 - 60 мм. При размещении пакетов катодов допускается ограждать торцевые стены пакетами, установленными плоскостью к торцевой стене (рисунки 25б, 25в).

Допускается размещать слитки, пакеты на подкладках сечением не менее 40 x 50 мм, расположенных вдоль вагона таким образом, чтобы каждый слиток, пакет опирался на две подкладки.

При размещении слитков, пакетов в торцах вагона двумя группами в зазор в середине вагона свыше 200 мм устанавливают поперечные упорные бруски или распорные рамы (рисунки 24б, 25б, 25в, 25г, 25д). Допускается в середине вагона размещать слитки, пакеты с двумя или тремя зазорами по длине через один или несколько поперечных рядов с установкой в эти зазоры поперечных распорных брусков (рисунки 24б, вид Г, 25б).

3.4.2. Крепление слитков, пакетов в продольном направлении производят упорными брусками, а при размещении двумя группами - распорной рамой.

Упорные бруски сечением не менее 50 x 50 мм длиной не менее общей ширины штабеля устанавливают через каждые три поперечных ряда вплотную к слиткам, пакетам и прибивают к полу гвоздями диаметром не менее 5 мм. Каждый брусок прибивают не менее чем 12 гвоздями.

Распорные рамы изготавливают из упорных брусков сечением не менее 100 x 100 мм, длиной не менее ширины группы слитков, пакетов и распорных брусков такого же сечения, длиной по месту. Упорные и распорные бруски скрепляют между собой строительными скобами из прутка диаметром 6 - 8 мм по одной в каждое соединение или гвоздями длиной не менее 150 мм под углом 45° - по два в каждое соединение.

Количество распорных брусков распорной рамы принимают в зависимости от общей массы группы слитков, пакетов и сечения брусков по таблице 4.

Таблица 4

Количество распорных брусков распорной рамы

в зависимости от массы закрепляемой группы слитков, пакетов

и сечения брусков

Сечение бруска, мм

Масса группы слитков, пакетов, т

свыше 15 до 20 вкл.

свыше 20 до 30 вкл.

свыше 30

100 x 100

4

5

6

100 x 120

3

4

5

100 x 150

3

3

4

120 x 150

2

3

4

150 x 150

2

2

3

160 x 180

2

2

2

200 x 200

2

2

2

Примечания:

1. При применении брусков, имеющих сечение, отличающееся от приведенных в таблице, количество брусков определяют как для брусков с ближайшими меньшими размерами сечения.

2. Количество распорных брусков распорной рамы определяют в зависимости от массы более тяжелой группы слитков, пакетов.

Допускается изготавливать распорную раму из распорных брусков, скрепленных между собой соединительными планками сечением не менее 25 x 100 мм, которые прибивают к брускам гвоздями длиной не менее 100 мм (рисунок 24б, вид Д). При длине распорных брусков до 400 мм устанавливают одну соединительную планку, при большей длине - две. Распорные бруски располагают посередине каждого слитка, пакета.

Длина распорных брусков распорной рамы не должна превышать 1700 мм.

При размещении пакетов, сформированных на салазках, поддонах, высота упорных и распорных брусков должна быть достаточной для обеспечения упора в пакет.

Для обеспечения необходимой высоты расположения упорных, распорных брусков допускается распорную раму устанавливать на подкладки (например, поддон для пакетирования грузов, подставка из пиломатериалов).

3.4.3. Крепление слитков, пакетов в поперечном направлении производят брусками или наборами брусков (рисунки 24, 25) высотой не менее 50 мм необходимой ширины, которые устанавливают в распор между слитками, пакетами и боковыми стенами вагона по всей длине погрузки. Бруски прибивают к полу гвоздями диаметром не менее 5 мм - в каждый не менее двух гвоздей напротив каждого поперечного ряда слитков, пакетов.

Если зазоры между слитками, пакетами и боковыми стенами вагона превышают 200 мм, а также, если упорные бруски оказываются расположенными на металлическом настиле пола, слитки, пакеты закрепляют распорными рамами. Бруски распорной рамы соединяют между собой строительными скобами из прутка диаметром 6 - 8 мм или гвоздями длиной не менее 150 мм под углом 45° по два в каждое соединение.

Допускается крепление слитков, пакетов упорными брусками, установленными вплотную к слиткам, пакетам (рисунок 24а, сечение В). Каждый упорный брусок закрепляют к полу не менее чем четырьмя гвоздями диаметром не менее 5 мм напротив каждого поперечного ряда слитков, пакетов.

Крепление в поперечном направлении слитков, пакетов, размещенных в междверном пространстве, производят следующим порядком. Вплотную к стойкам дверного проема устанавливают упорный брусок сечением не менее 100 x 100 мм и длиной, превышающей ширину дверного проема не менее чем на 300 мм. Брусок прибивают к полу не менее чем четырьмя гвоздями диаметром 5 мм. Между слитками, пакетами и упорным бруском устанавливают наборы продольных брусков или распорные рамы (рисунки 24, 25). Распорную раму изготавливают из упорных и распорных брусков сечением не менее 50 x 100 мм таким образом, чтобы напротив каждого слитка располагались по два распорных бруска. Бруски распорной рамы соединяют между собой строительными скобами из прутка диаметром 6 - 8 мм или гвоздями длиной не менее 150 мм под углом 45° по два в каждое соединение.

Если при размещении пакетов группами с установкой распорной рамы высота пакета за вычетом высоты упорного бруска распорной рамы превышает его размер в направлении вдоль вагона, пакеты двух крайних рядов со стороны распорной рамы скрепляют попарно двумя увязками из проволоки диаметром не менее 4 мм в две нити (рисунок 25д). Допускается увязку пакетов производить стальной упаковочной лентой сечением не менее 1,2 x 30 мм с установкой замков при помощи натяжных приспособлений.

Допускается крепление пакетов пневмооболочками, которые устанавливают напротив каждого поперечного ряда пакетов.

3.5. Размещение проволоки в бунтах.

3.5.1. Бунты проволоки в зависимости от диаметра, высоты и массы размещают в вагоне одним или несколькими ярусами по высоте с расположением на торец (рисунок 26), на образующую, наклонно и с комбинированным расположением (рисунки 27, 28). Допускается размещение в одном вагоне бунтов проволоки различных размеров.

Ограждение дверей вагона производят в соответствии с пунктом 1.9 настоящей главы. Если в междверном пространстве зазоры между бунтами и ограждением дверного проема превышают 250 мм, бунты дополнительно закрепляют от поперечного смещения распорными рамами или наборами упорных и распорных брусков (рисунок 27, вид Б) в соответствии с положениями пункта 3.4 настоящей главы.

3.5.2. При размещении бунтов в соответствии со схемой, приведенной на рисунке 26, бунты размещают на торец одним или двумя ярусами по всей длине площади пола вагона в шахматном порядке.

Рисунок 1093

Рисунок 26 - Пример размещения бунтов на торец

1 - ограждение дверного проема

3.5.3. При размещении бунтов в наклонном положении (рисунок 27) в торцевых частях вагона размещают штабели из нескольких рядов бунтов с наклоном поперек вагона несколькими ярусами по высоте, чередуя направление наклона в соседних рядах. В междверном пространстве бунты размещают продольными рядами с наклоном вдоль вагона несколькими ярусами по высоте, чередуя направление наклона в соседних рядах. Между штабелями устанавливают распорные щиты из досок сечением не менее 40 x 150 мм, состоящие из стоек и горизонтальных досок. Стойки щита располагают со стороны продольно расположенных бунтов по осям каждого продольного ряда.

Рисунок 1094

Рисунок 27 - Пример размещения бунтов в наклонном положении

1 - ограждение дверного проема; 2 - распорный щит;

3 - распорная рама; 4 - упорный брусок; 5 - распорный брусок

3.5.4. При комбинированном размещении бунтов (рисунок 28) в торцевых частях вагона размещают бунты в положении на образующую с расположением их оси вдоль вагона несколькими рядами по ширине в один ярус по высоте. В средней части вагона размещают бунты в положении на торец в шахматном порядке.

Рисунок 1095

Рисунок 28 - Пример комбинированного размещения бунтов

1 - ограждение дверного проема

3.6. Размещение и крепление грузов в мягкой таре.

3.6.1. Грузы в мешках, сетках (далее - мешки), тюках, кипах, мягких контейнерах и др. размещают в вагоне одним штабелем симметрично относительно продольной и поперечной плоскостей симметрии вагона.

3.6.2. Мешки, тюки, кипы размещают в вагоне одним штабелем по всей площади пола несколькими рядами по ширине в несколько ярусов по высоте (рисунок 29).

Рисунок 1096

Рисунок 29 - Пример размещения грузов в мешках

1 - доска ограждения дверного проема

Ограждение дверного проема производят в соответствии с положениями пункта 1.9 настоящей главы. Расстояние между горизонтальными досками ограждения должно быть не более высоты уложенного в междверном пространстве мешка, тюка, кипы.

При неполном верхнем ярусе мешки размещают двумя группами в торцах вагона вплотную к торцевым стенам.

Количество неполных ярусов мешков допускается не более двух. Мешки в первом неполном ярусе заканчивают укладывать, не доходя не менее трех мешков до дверного проема, во втором неполном ярусе - не доходя не менее двух мешков до края нижележащего яруса.

Количество неполных ярусов тюков и кип должно быть не более одного.

3.6.3. Мягкие контейнеры размещают в вагоне одним штабелем по всей площади пола несколькими рядами по ширине в один или два яруса по высоте (рисунок 30).

В нижнем ярусе мягкие контейнеры размещают поперечными или продольными рядами или в шахматном порядке. У торцевых стен размещают поперечный ряд с наибольшим количеством контейнеров.

Мягкие контейнеры в верхнем ярусе размещают аналогично мягким контейнерам нижнего яруса. Допускается в верхнем ярусе размещать меньшее количество контейнеров двумя группами у торцевых стен.

Рисунок 1097

Рисунок 30 - Примеры размещения и увязки мягких контейнеров

* - обозначение контейнеров, размещенных в нижнем ярусе

1 - ограждение дверного проема; 2 - увязка

Ограждение дверного проема вагона производят в соответствии с положениями пункта 1.9 настоящей главы.

Если высота мягких контейнеров больше их диаметра, и верхний ярус заполнен не полностью, несколько контейнеров, расположенных в торцах групп, обращенных к середине вагона, увязывают между собой за стропы увязкой из полимерного троса, ленты и т.п., имеющими прочность на разрыв не менее 200 кг. При этом увязывают не менее чем по два соседних контейнера, расположенных вдоль вагона, а при размещении в шахматном порядке - не менее трех соседних контейнеров.

Варианты увязки приведены на рисунке 30.

3.7. Размещение и крепление отдельных мест груза.

3.7.1. Отдельное место груза - груз (упакованный или неупакованный), имеющий плоскую опорную поверхность, опорную раму, салазки, отдельные опоры, и который не может быть размещен штабелем.

Центр тяжести каждого места груза должен находиться на высоте, обеспечивающей коэффициент запаса устойчивости от опрокидывания вдоль и поперек вагона не менее 1,25. Для выполнения указанного условия допускается объединять несколько мест груза увязками из проволоки, стяжными ремнями, стропами текстильными ленточными или другими способами, обеспечивающими их скрепление между собой.

3.7.2. Отдельные места груза могут быть размещены несколькими рядами по ширине, одной или несколькими группами по длине вагона вплотную друг к другу или вплотную к боковым стенам вагона. Если суммарный зазор по ширине вагона между рядами, рядами и боковыми стенами не превышает 200 мм, допускается не производить крепление отдельных мест груза в поперечном направлении.

Одинаковые по размерам и массе отдельные места груза размещают симметрично относительно продольной и поперечной плоскостей симметрии вагона.

Принципиальные схемы размещения и крепления отдельных мест груза приведены на рисунках 31 - 33.

3.7.3. Для крепления мест груза в продольном направлении используют распорные рамы, упорные и распорные бруски. Допускается использование упорных брусков, составных по высоте не более чем из двух частей, которые изготавливают и крепят к полу в соответствии с положениями пункта 9.23 главы 1 настоящих ТУ. Длина распорных брусков (в том числе в распорных рамах) не должна превышать 1500 мм.

При размещении мест груза непосредственно у торцевой стены вплотную к стене устанавливают "на ребро" упорный брусок сечением не менее 60 x 100 мм и длиной, равной ширине вагона (рисунок 32, 33б). Если между грузом и торцевой стеной устанавливают распорную раму, ее изготавливают с применением упорного бруска, который располагают вплотную к торцевой стене (рисунок 31, 33а).

3.7.4. Распорные рамы изготавливают (рисунки 31а, 33) из упорных и распорных брусков, которые скрепляют между собой строительными скобами из прутка диаметром не менее 6 мм, или из распорных брусков, скрепленных поверху соединительными досками толщиной не менее 25 мм (рисунок 31б), которые прибивают к упорным брускам гвоздями диаметром не менее 4 мм по два в каждое соединение.

Рисунок 1098

Рисунок 31

1 - соединительная доска; 1 - распорный брусок

Рисунок 1099

Рисунок 32

1 - упорный брусок; 2, 6 - набор брусков;

3, 4, 5 - распорная рама

Количество распорных брусков распорной рамы из распорных брусков и соединительных досок в зависимости от массы закрепляемого места груза (группы грузов) и сечения бруска должно быть не менее указанного в таблице 5.

Таблица 5

Сечение бруска, мм

Масса места груза или группы мест груза, т

До 20 вкл.

25

30

35

40

45

50

55

60

65 и более

50 x 100

2

3

4

4

5

5

6

6

6

7

80 x 100

2

2

3

3

3

3

4

4

4

4

100 x 100

2

2

2

2

3

3

3

3

3

4

100 x 120

2

2

2

2

2

2

3

3

3

3

100 x 150

2

2

2

2

2

2

2

2

2

3

120 x 150 и более

2

2

2

2

2

2

2

2

2

2

Примечание. При применении брусков, имеющих сечение, отличающееся от приведенных в таблице, количество брусков определяют как для брусков с ближайшими меньшими размерами сечения.

Количество распорных брусков распорной рамы с поперечными упорными брусками в зависимости от массы закрепляемого места груза (группы грузов) и сечения бруска должно быть не менее указанного в таблице 6.

Таблица 6

Сечение бруска, мм

Масса места груза или группы мест груза, т

5

10

15

20

25

30

35

40

45

50

55

60

65 и более

50 x 100

3

5

7

-

-

-

-

-

-

-

-

-

-

80 x 100

2

3

5

6

8

-

-

-

-

-

-

-

-

100 x 100

2

3

4

5

6

7

8

-

-

-

-

-

-

100 x 120

2

2

3

4

5

6

7

8

8

-

-

-

-

100 x 150

2

2

3

3

4

5

6

6

7

7

8

8

-

120 x 150

2

2

2

3

4

4

5

5

6

6

6

7

7

150 x 150

2

2

2

2

3

4

4

4

5

5

5

6

6

160 x 180

2

2

2

2

2

3

3

3

4

4

4

4

5

200 x 200

2

2

2

2

2

2

3

3

3

3

3

3

3

Примечание. При применении брусков, имеющих сечение, отличающееся от приведенных в таблице, количество брусков определяют как для брусков с ближайшими меньшими размерами сечения.

3.7.5. Крепление каждого отдельного места груза (группы из нескольких мест груза по ширине вагона) в поперечном направлении производят распорными рамами, которые устанавливают в распор между боковыми стенами вагона и грузом с обеих сторон. Рамы изготавливают из двух упорных и не менее чем двух распорных брусков, скрепленных между собой строительными скобами из прутка диаметром не менее 6 мм. Допускается изготавливать рамы из распорных брусков (не менее 2) длиной, равной величине зазора, скрепленных соединительными досками толщиной не менее 25 мм, которые прибивают к распорным брускам гвоздями диаметром не менее 4 мм по два в каждое соединение. Для крепления места груза (группы из нескольких мест груза по ширине вагона) массой до 15 т включительно распорными брусками применяют два бруска сечением, обеспечивающим контакт с грузом не менее 80 x 100 мм, массой более 15 до 25 т включительно - два бруска сечением, обеспечивающим контакт с грузом не менее 100 x 100 мм или три бруска сечением не менее 80 x 100 мм.

Если зазоры между местами (группами мест) груза, между местами (группами мест) груза и стенами вагона не превышают 300 мм, допускается выполнять их крепление (рисунок 32) наборами упорных брусков (поз. 2 и 6), которые скрепляют между собой строительными скобами из прутка диаметром не менее 6 мм.

Крепление груза, расположенного в пределах междверного пространства, в поперечном направлении выполняют распорными рамами или наборами брусков, при этом упорный брусок со стороны дверей должен перекрывать дверной проем не менее чем на 200 мм с каждой стороны (рисунок 32).

3.7.6. Крепление грузов должно быть иметь одинаковую несущую способность в обе стороны. При разной массе групп грузов (рисунок 33) или отдельно стоящих грузов общее для соседних групп количество распорных брусков принимают с учетом массы более тяжелой группы.

Рисунок 1100

Рисунок 33 - Крепление отдельных мест груза в вагонах

с деревянным и деревометаллическим полом

1, 2 - распорная рама; 3, 4 - упорный брусок;

5 - распорный брусок

3.7.7. В вагонах с деревянным и деревометаллическим полом допускается крепить отдельные места (группы мест) груза упорными и распорными брусками, закрепляемыми к полу. Расчет и подбор брусков для крепления производят в соответствии с положениями пункта 2.5.4. главы 5 настоящих ТУ.

3.8. Размещение и крепление непакетированных листовых изделий.

3.8.1. Непакетированные листовые изделия (фанера, шифер, древесностружечные плиты, древесноволокнистые плиты и т.п.), кроме металлических, размещают симметрично относительно продольной плоскости симметрии вагона штабелями вплотную к торцевым стенам. Принципиальные варианты размещения листовых изделий приведены на рисунке 34.

Торцевые стены вагона ограждают щитами, изготовленными в соответствии с требованиями пункта 1.7 настоящей главы. Допускается вместо щита использовать единицы груза (кроме шифера, гипсокартона и т.п.), располагаемые длинной стороной вдоль торцевой стены вагона на всю ее ширину по высоте погрузки.

Штабели листовых изделий устанавливают вплотную друг к другу. Высота штабелей должна быть одинаковой.

3.8.2. Штабели листовых изделий устанавливают вплотную к торцевым стенам и друг к другу. Высота штабелей должна быть одинаковой.

Зазоры между боковыми стенами вагона и штабелями листовых изделий (при величине зазора более 200 мм), зазоры между штабелями заполняют отдельными листами, устанавливаемыми вертикально.

В междверном пространстве листовые изделия размещают длинной стороной вдоль вагона.

3.8.3. Дверные проемы вагона ограждают щитами в соответствии с пунктом 1.9 настоящей главы. Допускается вместо щита использовать единицы груза (кроме шифера, гипсокартона и т.п.).

Рисунок 1101

Рисунок 34

1 - щит ограждения дверей; 2 - торцевой щит

3.9. Размещение и крепление шин и колес (шин с дисками).

3.9.1. Шины и колеса (шины с дисками) (далее - шины) диаметром не более 1400 мм размещают:

- боковинами вдоль вагона;

- боковинами поперек вагона;

- на боковину;

- боковинами вдоль и поперек вагона;

- боковинами вдоль и поперек вагона и (или) на боковину.

Шины размещают по всей ширине кузова вплотную к торцевым стенам и друг к другу, одним или несколькими ярусами по высоте (рисунок 35а - г). В нижнем ярусе размещают максимально возможное количество шин по длине вагона.

Рисунок 1102

Рисунок 35

1 - ограждение дверей (изображено условно); 2 - распорная

конструкция (распорный щит)

В междверном пространстве вагона шины размещают таким образом, чтобы обеспечивалась возможность установки ограждения дверей.

Если зазор между шинами в середине вагона превышает 200 мм, шины закрепляют в продольном направлении распорными щитами или распорными конструкциями (рисунок 36а, б). Допускается закреплять шины пневмооболочками (рисунок 36в) или заполнять зазор шинами, располагаемыми поперек вагона.

Рисунок 1103

Рисунок 36

1 - упорный брусок; 2 - распорный брусок; 3, 4 - стойка;

5 - пневмооболочка; 6 - листовой прокладочный материал

3.9.2. Распорный щит выполняют из стоек сечением не менее 50 x 100 мм и упорных брусков длиной, равной внутренней ширине вагона, сечением не менее 50 x 100 мм.

Упорные бруски щита в каждом ярусе устанавливают на высоте расположения оси шин. Количество и сечение стоек определяют в зависимости от величины зазора между шинами. Стойки скрепляют между собой гвоздями диаметром не менее 5 мм с шагом не более 400 мм по длине стоек. Упорные бруски скрепляют со стойками гвоздями диаметром не менее 4 мм, не менее двух в каждое соединение.

3.9.3. Распорную конструкцию выполняют в соответствии с положениями пункта 3.1.4 настоящей главы.

Упорные и распорные бруски распорной конструкции в каждом ярусе устанавливают на высоте расположения оси шин соответствующего яруса.

Количество распорных брусков распорной конструкции для крепления в продольном направлении определяют по таблице 1 настоящей главы в зависимости от сечения брусков и массы закрепляемой группы шин.

Крепление шин в продольном направлении с использованием пневмооболочек производят в соответствии с положениями пункта 3.1.5 настоящей главы. Между шинами и пневмооболочками устанавливают листовой прокладочный материал (ДСП, фанера толщиной не менее 5 мм, листы из сотового полипропилена и т.п.).

Двери вагона ограждают в соответствии с требованиями пункта 1.9 настоящей главы. При размещении шин в вагонах, переоборудованных из рефрижераторных, ограждение дверей не производится.

Допускается погрузка шин разного диаметра при условии обеспечения требований главы 1 настоящих ТУ в части допускаемых смещений общего центра тяжести груза относительно продольной и поперечной плоскостей симметрии вагона.

3.10. Размещение грузов, перевозимых насыпью и навалом.

3.10.1. В крытых вагонах универсального назначения грузы насыпью и навалом перевозят с использованием дверных заграждений.

При перевозке грузов навалом двери вагона ограждают досками или щитами в соответствии с требованиями пункта 1.9 настоящей главы. При этом расстояние между досками ограждения (щита) должно составлять не более половины наименьшего размера единицы груза, например, при перевозке грузов, у которых минимальный размер одной единицы 30 см, расстояние между досками дверного ограждения должно составлять не более 15 см.

При перевозке грузов насыпью двери вагона ограждают щитами конструкцией, аналогичной конструкции торцевого щита, приведенного на рисунке 2. При этом горизонтальные доски щита должны быть плотно подогнаны друг к другу без зазоров. В качестве горизонтальных досок используется только обрезной пиломатериал.

3.10.2. При перевозке насыпью грузов с размером фракции менее 3 мм дверные ограждения изнутри вагона, пол вагона и стены на высоту погрузки дополнительно закрывают укрывным материалом (например, бумагой, пленкой и т.п.), прикрепленным к стенам и дверным ограждениям и предотвращающим просыпание груза.

При высоте погрузки выше уровня боковых люков вагона люки с внутренней стороны также заделывают укрывным материалом, предотвращающим просыпание груза.

3.10.3. Груз в вагоне размещают равномерно по всей площади пола вагона высотой погрузки не менее чем на 100 мм ниже дверного ограждения (рисунок 37).

Рисунок 1104

Рисунок 37

3.10.4. Груз размером фракции более 3 мм допускается размещать с увеличением высоты штабеля погрузки под углом естественного откоса в сторону торцевых стен. При этом начало подъема должно быть удалено от края дверного ограждения на расстояние не менее 1500 мм (рисунок 38).

Рисунок 1105

Рисунок 38

3.10.5. При загрузке груза через верхние загрузочные люки вагона дополнительное закрепление этих люков изнутри вагона, предусмотренное пунктом 2.1 настоящей главы, не производится.

3.11. Размещение и крепление слитков алюминия, сформированных в пакеты.

3.11.1. Слитки алюминия сформированы в пакеты, скреплены четырьмя увязками из стальной или полиэстеровой упаковочной ленты шириной не менее 16 - 22 мм и имеют габаритные размеры: длина - 700 - 750 мм, ширина - 700 - 750 мм, высота - 435 - 1280 мм. Масса пакета 435 - 1186 кг.

Слитки алюминия, сформированные в пакеты, должны иметь одинаковые габаритные размеры и одинаковую массу в пределах допускаемых отклонений.

3.11.2. Слитки алюминия, сформированные в пакеты, размещают в крытом вагоне в два-три ряда по ширине симметрично продольной плоскости симметрии вагона и в несколько рядов по длине. Количество рядов пакетов по длине зависит от погрузочной длины кузова вагона с учетом возможности установки средств крепления (пневмооболочки) в заполняемые зазоры между группами пакетов в междверном пространстве. В зависимости от массы пакета и грузоподъемности вагона пакеты размещаются в один, два или три яруса, симметрично относительно поперечной плоскости симметрии вагона, с полным или неполным заполнением верхнего яруса пакетами.

Погрузку начинают от торцовых стен вагона, устанавливая пакеты вплотную друг к другу. Принципиальные схемы размещения слитков алюминия, сформированных в пакеты, в крытых вагонах приведены на рисунках 39 - 41.

Рисунок 1106

Рисунок 39 - Размещение слитков алюминия, сформированных

в пакеты, в один ярус

1 - пневмооболочки 100 x 220 см или 85 x 220 см;

2 - пневмооболочки, закрепляющие от поперечных смещений;

3 - увязка

Рисунок 1107

Рисунок 40 - Размещение слитков алюминия, сформированных

в пакеты, в два яруса

1 - пневмооболочки, закрепляющие

пакеты от продольных смещений; 2 - пневмооболочки,

закрепляющие от поперечных смещений; 3 - увязка;

4 - подставка из сотопанелей

Рисунок 1108

Рисунок 41 - Размещение слитков алюминия, сформированных

в пакеты, в три яруса,

1 - пневмооболочки, закрепляющие пакеты

от продольных смещений; 2 - пневмооболочки,

закрепляющие от поперечных смещений; 3 - увязка;

4 - подставка из сотопанелей

3.11.3. Торцовые стены крытого вагона ограждают в соответствии с пунктом 1.7 настоящей главы по высоте и ширине штабеля погрузки. Сотопанели должны быть размещены вертикально в два ряда по ширине вагона симметрично его продольной оси (рисунок 42).

Рисунок 1109

Рисунок 42 - Схема установки сотопанелей для ограждения

торцовых стен крытого вагона

Для обеспечения продольной устойчивости транспортных пакетов второго и третьего яруса ряды пакетов, стоящие в местах перед группами закрепляемых пакетов, устанавливают на опоры, формируемые по высоте из 4-х сотопанелей размером 1200 x 700 x 50 мм. Варианты формирования упоров из пакетов для двух- и трехъярусных схем погрузки приведены на рисунке 43.

Рисунок 1110

Рисунок 43 - Схемы формирования упоров из пакетов

слитков алюминия для двух- и трехъярусных схем погрузки

с использованием сотопанелей:

1 - коврик (мат) противоскольжения, 2 - подставка

из сотопанелей, 3 - увязка

Пакеты слитков алюминия двух ярусов (закрепляемого и нижележащего), стоящие у сформированного упора со стороны торцовых стен вагона скрепляют между собой увязкой. На каждый пакет устанавливают по одной увязке (поз 3. рисунки 39 - 41). Между пакетами слитков алюминия двух ярусов в местах их контакта устанавливают коврики (маты) противоскольжения размером 700 x 100(125) x 3 мм (поз. 1 на рисунке 43).

В междверном пространстве вагона размещают в один ярус по высоте и в три ряда по ширине одной группой 9, 12 или 15 пакетов. Под опоры пакетов устанавливают коврики (маты) противоскольжения размером 700 x 100(125) x 3 мм, по два коврика (мата) под каждый пакет (рисунок 44). Группу, состоящую из 9 пакетов слитков алюминия, увязывают одной увязкой. При размещении 12 или 15 пакетов они должны быть разделены на две. Каждая группа пакетов должна быть увязана одной горизонтальной увязкой.

Рисунок 1111

Рисунок 44 - Схемы размещения и крепления группы слитков

алюминия, сформированных в пакеты, в междверном пространстве

Пневмооболочки устанавливают в заполняемые зазоры между группами пакетов на высоте от пола вагона не менее 50 мм.

Подбор пневмооболочек производят в зависимости от несущей способности пневмооболочек и массы закрепляемых пакетов в соответствии с таблицей 2 настоящей главы.

Величина заполняемого зазора пневмооболочки должна быть не более 150 мм.

При наличии зазора от 50 мм между пакетами основной группой и группой пакетов, размещенных в один ярус, устанавливают одну или две пневмооболочки (рисунки 44а и 44б).

Допускается при величинах заполняемых зазоров менее 50 мм между штабелями пакетов, стоящими в середине вагона, сдвигать пакеты вплотную к одному из штабелей (рисунок 44б) с установкой одной пневмооболочки.

Допускается уменьшение величины заполняемого зазора установкой в него совместно с пневмооболочкой сотопанелей размером 1200 x 700 x 50 мм. (рисунок 45), а также других прокладочных материалов аналогичных размеров.

Между пневмооболочками и пакетами слитков алюминия при их прямом контакте необходимо горизонтально установить прокладки из сотопанелей толщиной не менее 30 мм. В качестве прокладочного материала допускается применение ДСП, ДВП и других аналогичных материалов. Прокладки должны перекрывать всю контактную поверхность пневмооболочки.

Для защиты пневмооболочки от повреждения выступающими элементами вагона и частями груза применяют прокладочные материалы (ДСП, ДВП, фанера, ОСБ-плита, сотопанели и другие аналогичные материалы).

Рисунок 1112

Рисунок 45 - Схема установки прокладок из сотопанелей

в зазоры между пакетами слитков алюминия для уменьшения

величины заполняемого зазора

От поперечного смещения в вагоне пакеты слитков алюминия закрепляют пневмооболочками размером 100 x 220 см, устанавливаемыми в зазоры между боковыми стенками вагона и штабелем пакетов слитков. Подбор пневмооболочек производят в зависимости от несущей способности пневмооболочек и массы закрепляемых пакетов в соответствии с таблицей 3 настоящей главы.

Между пневмооболочками и пакетами слитков алюминия с одной стороны, и пневмооболочки и боковыми стенками вагона с другой устанавливают прокладки из прокладочного материала (ДСП, ДВП, фанера, ОСБ-плита, сотопанели и другие аналогичные материалы).

Во избежание превышения грузоподъемности вагона допускается в междверном пространстве не устанавливать один-два пакета слитков алюминия на продольной оси вагона, не контактирующие с пневмооболочками (рисунок 46а, б).

Рисунок 1113

Рисунок 1114

Рисунок 46 - Местоположение удаляемых из междверного

пространства транспортных пакетов

Освободившееся пространство в штабеле заполняют добором из сотопанелей размером не менее 600 x 700 x 100 мм с установкой их без зазоров между собой и окружающих их пакетов (рисунок 46в).