3. Размещение и крепление рефрижераторных контейнеров с питанием от автономных дизель-генераторных установок
3. Размещение и крепление рефрижераторных контейнеров
с питанием от автономных дизель-генераторных установок
3.1. АДГУ "Прогрессор-01" и АДГУ РКВ-15 предназначены для электропитания рефрижераторных контейнеров.
Основные технические характеристики АДГУ "Прогрессор-01" и АДГУ РКВ-15 приведены в таблице 3.
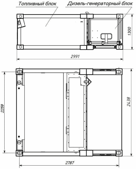
В состав АДГУ "Прогрессор-01" (рисунок 17) входят:
- дизель-генераторный блок с дизель-генератором и системой мониторинга и управления;
- топливный блок с топливными баками;
Блоки АДГУ "Прогрессор-01" соединены между собой болтовыми соединениями и образуют единую конструкцию.
АДГУ РКВ-15 (рисунок 18) функционально и по составу оборудования аналогична АДГУ "Прогрессор-01" и отличается вместимостью топливного бака и конфигурацией несущей металлоконструкции.
В углах опорной рамы АДГУ расположены фитинги для установки на упоры платформы. Габаритные размеры в плане и расположение угловых фитингов АДГУ "Прогрессор-01" и РКВ-15 соответствуют размерам и расположению фитингов контейнера длиной 10 футов.
Съемные захваты предназначены для крепления АДГУ к рефрижераторному контейнеру.
Подключение АДГУ к холодильной установке рефрижераторного контейнера осуществляется при помощи присоединительного кабеля, входящего в состав холодильного агрегата рефрижераторного контейнера. Управление АДГУ осуществляется дистанционно либо непосредственно из дизель-генераторного блока.
3.2. Подключение контейнеров к АДГУ, АДГУ к сети электроснабжения платформы производят в соответствии с технической документацией на контейнеры, АДГУ и платформы. Примеры подключения АДГУ показаны на рисунке 19.
Рисунок 19 - Примеры подключения АДГУ
к сети электроснабжения платформы
а - подключение АДГУ "Прогрессор-01";
б - подключение АДГУ РКВ-15
3.3. Общие требования к размещению и креплению АДГУ на платформе.
АДГУ размещают на платформах совместно с контейнерами.
Суммарная масса брутто контейнеров на платформе с учетом массы АДГУ не должна превышать грузоподъемность платформы.
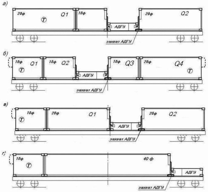
При размещении на платформе контейнеров с питанием от АДГУ, размещенной на этой же платформе, АДГУ устанавливают на четыре упора со стороны холодильного агрегата контейнера и соединяют с контейнером при помощи двух захватов (рисунок 20), для чего:
- вставляют захват фиксаторами в отверстия фитингов АДГУ и контейнера;
- поворачивают оба фиксатора на 90° так, чтобы воротки были в горизонтальном положении;
- закручивают зажимы фиксаторов вручную;
- выравнивают раму АДГУ относительно продольной плоскости симметрии платформы и контейнера, вращая зажимы рычагом;
- ослабляют зажимы до совпадения осей отверстий на зажимах;
- вставляют рычаг в отверстия обоих зажимов и фиксируют его.
а - на платформе без деревянного настила пола;
б - на платформе с деревянным настилом пола
На платформе с деревянным настилом пола при отсутствии сдвоенных упоров допускается установка АДГУ на два упора при условии опирания двумя противоположными фитингами на деревянный настил (рисунок 20б).
При размещении АДГУ между двумя контейнерами крепление ее захватом производят только к одному из контейнеров.
Аналогичным порядком размещают на платформе другие модели автономных дизель-генераторных установок, имеющие размеры в плане, установочные и присоединительные устройства и массу, аналогичные приведенным в пункте 3.1 настоящей главы.
Изображение АДГУ на рисунках показано условно.
Конкретная схема размещения контейнеров и АДГУ подбирается из числа приведенных в настоящем пункте с учетом количества упоров для установки контейнеров, имеющихся на конкретной модели платформы.
На схемах, приведенных в настоящем пункте, символом "T" обозначены контейнеры, перевозимые без подключения к АДГУ.
3.4. На платформе погрузочной длиной 40 футов контейнеры совместно с АДГУ размещают в соответствии со схемами, приведенными на рисунке 21.
Размещение на одной платформе контейнеров с питанием от АДГУ совместно с контейнерами, перевозимыми без подключения к АДГУ (в том числе на платформах с электрооборудованием для централизованного энергоснабжения контейнеров), производят в соответствии со схемами, приведенными на рисунках 21а, 21д и 22.
|
Условия размещения контейнеров совместно с АДГУ на платформе погрузочной длиной 40 футов |
|
|
Таблица 21 Приложения к настоящей главе. |
|
|
Контейнер размещают симметрично относительно поперечной плоскости симметрии платформы. |
|
|
Если контейнер загружен грузом без смещения центра тяжести груза в контейнере, его масса брутто не должна превышать 13 тонн, а со смещением центра тяжести груза - не должна превышать 9 тонн. |
|
|
Контейнер и АДГУ размещают рядом друг с другом симметрично относительно поперечной плоскости симметрии платформы. |
|
|
Таблица 22 Приложения к настоящей главе. |
|
|
Таблица 23 Приложения к настоящей главе. |
3.5. На платформе погрузочной длиной 60 футов контейнеры совместно с АДГУ размещают в соответствии со схемами, приведенными на рисунке 23.
|
Условия размещения контейнеров совместно с АДГУ на платформе погрузочной длиной 60 футов |
|
|
Контейнеры подбирают таким образом, чтобы разность масс брутто каждых двух контейнеров, установленных симметрично относительно поперечной плоскости симметрии платформы, была минимальна, а пара контейнеров с наибольшей разницей масс брутто располагалась в середине платформы. |
|
|
Таблица 24 Приложения к настоящей главе. |
|
|
Таблица 22 Приложения к настоящей главе. |
|
|
Контейнер и АДГУ размещают друг с другом симметрично относительно поперечной плоскости симметрии платформы. |
|
|
Таблица 25 Приложения к настоящей главе. |
|
|
Контейнер размещают симметрично относительно поперечной плоскости симметрии платформы рядом с АДГУ |
|
|
Таблица 26 Приложения к настоящей главе. |
|
|
Таблица 21 Приложения к настоящей главе. |
|
|
Таблица 27 Приложения к настоящей главе. |
|
|
Если контейнер загружен грузом без смещения центра тяжести груза, его масса брутто не должна превышать 19 тонн, а со смещением центра тяжести груза - не должна превышать 16 тонн. |
3.6. Размещение на одной платформе погрузочной длиной 60 футов контейнеров с питанием от АДГУ совместно с контейнерами, перевозимыми без подключения к АДГУ, производят в соответствии со схемами, приведенными на рисунках 23а, 23в, 23д, 23ж, 23и, 23к, 24. При этом допускается замена одного или нескольких контейнеров с питанием от АДГУ контейнерами, перевозимыми без подключения к АДГУ, с соблюдением требований пункта 3.3 (по установке и креплению АДГУ).
|
Условия размещения контейнеров совместно с АДГУ на платформе погрузочной длиной 60 футов |
|
|
Таблица 28 Приложения к настоящей главе. |
|
|
Подбор контейнеров производят расчетным путем с учетом смещения центра тяжести груза в контейнерах и выполнения требований ГОСТ 22235: разница в загрузке тележек не должна превышать 10 т для четырехосных вагонов, а нагрузка, приходящаяся на каждую тележку, должна быть не более половины грузоподъемности вагона. |
|
|
Таблица 29 Приложения к настоящей главе. |
|
|
Таблица 30 Приложения к настоящей главе. |
3.7. На платформе погрузочной длиной 80 футов контейнеры совместно с АДГУ размещают в соответствии со схемами, приведенными на рисунке 25.
|
Условия размещения контейнеров совместно с АДГУ на платформе погрузочной длиной 80 футов |
|
|
Контейнеры подбирают таким образом, чтобы разность масс брутто каждых двух контейнеров, установленных симметрично относительно поперечной плоскости симметрии платформы, была минимальна, а пара контейнеров с наибольшей разницей масс брутто располагалась в середине платформы. |
|
|
Таблица 24 Приложения к настоящей главе. |
|
|
Таблица 22 Приложения к настоящей главе. |
|
|
Подбор контейнеров производят в соответствии с таблицей 31 Приложения к настоящей главе. При этом в середине платформы устанавливают контейнер массой брутто не более 24 тонны. |
|
|
Таблица 25 Приложения к настоящей главе. |
|
|
Подбор контейнеров длиной 20 футов Q1 и Q2 производят в соответствии с таблицей 32 Приложения к настоящей главе при условии, что разность масс брутто контейнеров длиной 10 футов Q3 и Q4, размещенных в середине платформы, не превышает 4 тонны. |
|
|
Таблица 33 Приложения к настоящей главе. |
|
|
Таблица 21 Приложения к настоящей главе. |
|
|
Таблица 27 Приложения к настоящей главе |
|
|
Таблица 34 Приложения к настоящей главе. |
|
|
Если контейнер загружен грузом без смещения центра тяжести груза в контейнере, его масса брутто не должна превышать 19 тонн, а со смещением центра тяжести груза - не должна превышать 16 тонн. |
3.8. Размещение на одной платформе контейнеров с питанием от АДГУ совместно с контейнерами, перевозимыми без подключения к АДГУ, производят в соответствии со схемами, приведенными на рисунках 25а - 25д, 25ж - 25м, 26. При этом допускается замена одного или нескольких контейнеров с питанием от АДГУ контейнерами, перевозимыми без подключения к АДГУ, с соблюдением требований пункта 3.3 (по установке и креплению АДГУ).
|
Условия размещения контейнеров совместно с АДГУ на платформе погрузочной длиной 80 футов |
|
|
Контейнеры подбирают таким образом, чтобы разность масс брутто каждых двух контейнеров, установленных симметрично относительно поперечной плоскости симметрии платформы, была минимальна, а пара контейнеров с наибольшей разницей масс брутто располагалась в середине платформы. |
|
|
Подбор контейнеров производят расчетным путем с учетом смещения центра тяжести груза в контейнерах, массы АДГУ и выполнения требований ГОСТ 22235: разница в загрузке тележек не должна превышать 10 тонн для четырехосных вагонов, а нагрузка, приходящаяся на каждую тележку, должна быть не более половины грузоподъемности вагона при соблюдении следующих условий: - масса брутто контейнера длиной 20 футов не должна превышать 11 тонн; - суммарная масса брутто контейнеров Q3 и Q4 не должна превышать суммарную массу брутто контейнеров Q1 и Q2: (Q3 + Q4) <= (Q1 + Q2); - наиболее тяжелый из контейнеров Q1 и Q2 устанавливают в торце платформы (Q1 > Q2). |
|
|
Подбор контейнеров длиной 20 футов Q1 и Q4 производят в соответствии с таблицей 35 Приложения к настоящей главе при условии, что разность масс брутто контейнеров длиной 10 футов, размещенных в середине платформы, не превышает 3 тонны, при этом более легкий контейнер размещают со стороны АДГУ (Q2 <= Q3). |
|
|
Подбор контейнеров производят расчетным путем с учетом смещения центра тяжести груза в контейнерах, массы АДГУ и выполнения требований ГОСТ 22235: разница в загрузке тележек не должна превышать 10 т для четырехосных вагонов, а нагрузка, приходящаяся на каждую тележку, должна быть не более половины грузоподъемности вагона. |
|
|
Подбор контейнеров производят в соответствии с таблицей 36 Приложения к настоящей главе при условии, что в середине платформы устанавливают контейнер (Q2) с наименьшей массой брутто. |
|
|
Таблица 29 Приложения к настоящей главе. |
|
|
Подбор контейнеров производят в соответствии с таблицей 37 Приложения к настоящей главе. При этом в середине платформы устанавливают контейнер массой брутто не более 24 тонны. |
|
|
Подбор контейнеров производят в соответствии с таблицей 38 Приложения к настоящей главе. При этом в середине платформы устанавливают контейнер массой брутто не более 24 тонны. |
|
|
Масса брутто контейнера длиной 10 футов не должна превышать 7 тонн (как при смещении, так и без смещения центра тяжести груза в контейнерах). |
3.9. Размещение и подбор изотермических контейнеров с питанием от электросети платформы производят в соответствии со схемами, приведенными на рисунках 1в - 1д, 2, 3, 4б, 5е, 6в - 6г, 7, 8, 9г, 10г - 10ж, 11, 12, 13б, 13в.
3.10. Размещение и подбор изотермических контейнеров с питанием от электросети платформы совместно с контейнерами с питанием от АДГУ производят в соответствии со схемами, приведенными на рисунках 24, 26 с подключением к электросети платформы двух или одного контейнеров, установленных в торцах платформы.
3.11. АДГУ, расположенные в торцах платформы, могут использоваться для питания контейнеров, размещенных на соседних платформах, или рефрижераторных вагонов сцепа (рисунок 27). В этих случаях их подключают к электросети платформы.
3.12. Порожние изотермические контейнеры совместно с АДГУ размещают на платформах в соответствии со схемами, приведенными на рисунках 21 - 26.
- Гражданский кодекс (ГК РФ)
- Жилищный кодекс (ЖК РФ)
- Налоговый кодекс (НК РФ)
- Трудовой кодекс (ТК РФ)
- Уголовный кодекс (УК РФ)
- Бюджетный кодекс (БК РФ)
- Арбитражный процессуальный кодекс
- Конституция РФ
- Земельный кодекс (ЗК РФ)
- Лесной кодекс (ЛК РФ)
- Семейный кодекс (СК РФ)
- Уголовно-исполнительный кодекс
- Уголовно-процессуальный кодекс
- Производственный календарь на 2025 год
- МРОТ 2026
- ФЗ «О банкротстве»
- О защите прав потребителей (ЗОЗПП)
- Об исполнительном производстве
- О персональных данных
- О налогах на имущество физических лиц
- О средствах массовой информации
- Производственный календарь на 2026 год
- Федеральный закон "О полиции" N 3-ФЗ
- Расходы организации ПБУ 10/99
- Минимальный размер оплаты труда (МРОТ)
- Календарь бухгалтера на 2026 год
- Частичная мобилизация: обзор новостей
- Постановление Правительства РФ N 1875












