4.1. Основные требования к пакетированию и размещению.
4.1.1. Листовой металл предъявляют к перевозке:
- толщиной листа до 4,0 мм включительно - в пачках;
- толщиной листа более 4,0 мм - листами или в пачках по согласованию с получателем.
Пачки формируют в соответствии с требованиями нормативных документов на продукцию.
Пачки могут быть упакованы на салазках (рисунок 48а); на поперечных брусках (рисунок 48б); на поддонах (рисунок 48в) или без деревянных реквизитов (рисунок 48г), а также с использованием реквизитов, изготовленных из металла различных профилей.
4.1.2. Пачки обвязывают в продольном и поперечном направлении металлическими лентами равного сечения или проволокой диаметром 6 мм не менее чем в две нити. Для обвязки применяют металлическую ленту по ГОСТ 3560 "Лента стальная упаковочная" шириной не менее 30 мм и толщиной: мягкую (М) - 1,5 - 2,0 мм, нагартованную (Н) - 0,8 - 2,0 мм. Количество обвязок пачки должно быть не менее, чем указано в таблице 6. Допускается применять упаковочную ленту из других материалов, прочность которых подтверждена нормативными документами.
Количество и расположение обвязок пачки
--------------------------------
<*> При отправлении в Болгарию, Венгрию, Польшу, Румынию и транзитом через эти страны количество обвязок принимается не менее двух.
При обвязке пачек длиной или шириной до 800 мм обвязки устанавливают посередине пачек. При обвязке пачек двумя и более обвязками последние располагают симметрично, при этом расстояние от края пачки до обвязки должно быть 300 - 500 мм.
На кромки пачки под обвязки укладывают прокладки в виде уголков из листовой стали толщиной не менее 0,8 мм. Допускается не устанавливать прокладки на пачки из листов, упакованные в короба.
4.1.3. При перевозке листового металла толщиной до 10 мм каждая пачка может быть уложена на две подкладки из досок сечением не менее 35 x 75 мм или горбыля той же толщины и обвязана металлической лентой. Подкладки располагают вдоль или поперек пачек.
При механизированной упаковке допускается обвязка пачек непромасленных листов только поперечными обвязками в количестве, равном сумме продольных и поперечных обвязок в соответствии с Межгосударственным стандартом ГОСТ 7566 "Металлопродукция. Приемка, маркировка, упаковка, транспортирование и хранение".
4.1.4. При размещении пачек листового металла вдоль и поперек полувагона для обеспечения механизации погрузочно-разгрузочных работ допускается при размещении в два ряда по ширине вагона: между пачками и боковыми стенами полувагонов свободное расстояние до 80 мм, между пачками - до 100 мм, а при размещении в три и более рядов по ширине вагона - до 80 мм, если это расстояние не указано в нижеследующем описании способов размещения металла.
В случаях, когда применяемые средства механизации требуют свободного расстояния более указанного выше, производится крепление пачек от смещений путем установки распорных брусков или вертикальных стоек.
Под "размещением пачки вдоль вагона" следует понимать размещение пачки длинной стороной вдоль вагона.
Под "размещением пачки поперек вагона" следует понимать размещение пачки длинной стороной поперек вагона.
При креплении пачек в вагонах проволочными растяжками (обвязками) по схемам настоящей главы применяют проволоку диаметром не менее 6 мм.
Пачки металла в последующий верхний ярус размещают только в том случае, если полностью использована площадь вагона предыдущим ярусом и грузоподъемность вагона позволяет последующую загрузку. Если количество подлежащих размещению в верхнем ярусе пачек меньше, чем в предыдущем, то пачки металла верхнего яруса размещают двумя группами вплотную к торцевым дверям (стенам), если иное не предусмотрено конкретной схемой размещения. Пачки неполного верхнего яруса крепят к пачкам расположенного под ним яруса в соответствии с требованиями таблицы 6, если иное не предусмотрено конкретным способом. При общей массе пачек, расположенных в верхнем ярусе, менее 5,0 т крепление их к пачкам нижнего яруса не обязательно.
4.1.5. Допускается погрузка пачек разных размеров и разной массы в одном вагоне при условии соблюдения требований главы 1 настоящих ТУ в части допускаемых смещений общего центра тяжести груза в вагоне.
4.1.6. Необходимость применения подкладок, прокладок и вертикальных стоек, увязок пачек смежных ярусов, не предусмотренных схемами размещения и крепления грузов, установленными в пункте 4 настоящей главы, определяется для обеспечения механизированной выгрузки.
4.1.7. При погрузке на платформы пачки листового металла укладывают вплотную друг к другу равномерно по площади пола платформы. Наращивание торцевых бортов платформы производят в соответствии с пунктом 1.6 настоящей главы.
4.2. Размещение и крепление листового металла в пачках в полувагонах.
4.2.1. Пачки шириной 500 - 900 мм и длиной свыше 500 мм до 1200 мм включительно промасленного и непромасленного металла на салазках (поперечных брусках, поддонах) и без них размещают в полувагонах в один - два яруса по высоте, начиная от торцевых дверей к середине. В продольном направлении пачки размещают вплотную друг к другу. В случае, если при размещении пачек в один ярус в середине вагона образуется свободное пространство более 300 мм, пачки раскрепляют распорной рамой (рисунок 49) или обвязками (рисунок 50) из проволоки в шесть нитей.
При размещении пачек в два яруса нижний ярус должен быть заполнен полностью. Если при размещении пачек верхнего яруса в середине вагона образуется свободное пространство более 300 мм, пачки раскрепляют распорной рамой (рисунок 49) или обвязками (рисунок 50) из проволоки в шесть нитей.
1 - пачка листового металла; 2 - упорный брусок
распорной рамы; 3 - распорный брусок
1 - проволочная обвязка; 2 - брусок;
3 - пачка листового металла
При использовании обвязок под проволокой пропускают два бруска сечением не менее 100 x 100 мм и длиной 300 - 350 мм, обвязку крепят к каждому бруску двумя гвоздями диаметром 4 мм и длиной не менее 80 мм (рисунок 50).
Распорную раму для крепления пачек, сформированных без салазок, брусков, поддонов (рисунок 51), изготавливают из двух упорных и не менее двух распорных брусков сечением не менее 80 x 100 мм, которые скрепляют между собой строительными скобами из прутка диаметром не менее 8 мм (по одной скобе в каждое соединение).
1 - упорный брусок; 2 - распорный брусок
Распорную раму допускается изготавливать из распорных брусков в количестве не менее двух сечением каждого не менее 80 x 100 мм, которые скрепляют между собой соединительными планками сечением не менее 25 x 100 мм и гвоздями (по два гвоздя в каждое соединение) диаметром 5 мм и длиной 90 мм (рисунок 52). Длина соединительных планок при использовании рамы для крепления груза в полувагоне должна быть равна внутренней ширине кузова полувагона.
1 - распорный брусок; 2 - соединительная планка
Распорную раму для крепления пачек, упакованных на салазках (поддонах), изготавливают следующим образом (рисунок 53): на пол полувагона в свободном пространстве между штабелями размещают два поперечных бруска размерами не менее 100 x 120 x 2850 мм (высота брусков должна быть не менее высоты салазок (поддонов), на которых упакованы пачки), на поперечные бруски устанавливают в распор между пачками продольные бруски сечением 100 x 80 мм. Бруски соединяют между собой гвоздями длиной не менее 150 мм по два гвоздя в каждое соединение.
4.2.2. Пачки шириной 600 - 1350 мм и длиной свыше 1200 мм до 2400 мм включительно (в полувагонах с длиной кузова 12700 мм - до 2500 мм включительно) промасленного и непромасленного листового металла на салазках (поперечных брусках, поддонах) и без них размещают:
- пачки шириной 600 - 700 мм - в четыре ряда по ширине полувагона;
- шириной 700 - 910 мм - в три ряда по ширине полувагона;
- шириной 910 - 1350 мм - в два ряда по ширине полувагона.
Пачки укладывают симметрично относительно продольной плоскости симметрии вагона с размещением крайних пачек вплотную к боковым стенам.
Если количество рядов менее указанного, то в свободном пространстве устанавливают одну распорную раму - при четном количестве рядов и две - при нечетном.
Если в середине вагона между пачками верхнего яруса образуется свободное пространство более 300 мм, то их следует крепить от продольных смещений распорной рамой (рисунки 51, 52, 53) или проволочными обвязками (рисунок 50).
Допускается одновременное расположение пачек вдоль и поперек полувагона.
При размещении пачек на салазках (поперечных брусках, поддонах), расположенных поперек пачки, на пол вагона укладывают продольные подкладки сечением не менее 25 x 100 мм (рисунок 54).
Люковые закидки полувагона увязывают проволокой в соответствии с пунктом 1.5 настоящей главы.
1 - салазки; 2 - продольная подкладка
4.2.3. Пачки шириной 600 - 1350 мм и длиной от 2400 до 2700 мм размещают в один или два яруса (рисунок 55). В нижнем ярусе пачки размещают поперек полувагона по всей длине кузова. В верхнем ярусе пачки размещают вдоль вагона в один или несколько рядов по ширине и длине, вплотную к торцевым дверям (стенам) полувагона. При этом масса пачек в верхнем ярусе с каждой стороны вагона должна быть одинаковой.
4.2.4. Пачки листового металла размерами (900 - 1500) x (2400 - 2800) мм, упакованные без деревянных реквизитов, размещают поперек вагона на трех продольных подкладках сечением не менее 50 x 100 мм (поз. 1) (рисунок 56).
Подкладки размещают: одну (среднюю) над хребтовой балкой, а две другие (крайние) разрезные (выравнивающие) - на гофрах крышек люков между гофрами поперечных балок полувагона на расстоянии 400 - 500 мм от боковых стен вагона.
Длина средней подкладки, которая может быть составной по длине, должна быть равна длине кузова вагона.
Длина разрезных (выравнивающих) подкладок определяется расстоянием между гофрами поперечных балок.
В вагонах с глухим кузовом длина крайних подкладок, которые могут быть составными по длине, должна быть равна длине кузова вагона.
1 - подкладка продольная; 2 - распорный брусок;
3 - прокладка; 4 - подкладка поперечная;
5 - раскрепляющий брусок
На подкладки поперек вагона поочередно от торцов вагона укладывают пачки листового металла симметрично относительно продольной и поперечной плоскостей симметрии вагона. Зазоры между пачками не должны превышать 100 мм. Для обеспечения механизированной погрузки-выгрузки, когда необходима величина зазоров более 100 мм, пачки должны быть раскреплены двумя брусками размерами 100 x 100 x (150 - 300) мм (поз. 5). При наличии свободного пространства в середине вагона более 350 мм пачки раскрепляют двумя распорными брусками сечением 100 x 100 мм и длиной по месту (поз. 2). Каждый распорный брусок укладывают на крайних подкладках и прибивают тремя гвоздями диаметром 5 мм и длиной не менее 150 мм. При нечетном количестве пачек укладывают четыре бруска: по два с каждой стороны средней пачки.
При наличии зазора, равного длине пачки, допускается размещение одной (двух) пачек вдоль вагона с укладкой ее (их) на двух подкладках размерами 50 x 100 x 2800 мм (поз. 4), уложенных поперек вагона между гофрами крышек люков.
Во втором ярусе пачки размещают симметрично относительно продольной и поперечной плоскостей симметрии вагона в количестве от одной до пяти штук по одной или две по ширине вагона.
Пачки листового металла, упакованные на поперечных брусках, салазках или поддонах, в полувагоне размещают аналогично способу, описанному выше, без применения подкладок и прокладок.
При наличии свободного пространства в середине вагона более 350 мм пачки раскрепляют распорной рамой. Для крепления пачек на поперечных брусках или салазках используют раму (рисунок 57), состоящую из поперечных (поз. 1) и продольных (поз. 2) брусков сечением 100 x 100 мм. Длина поперечных брусков составляет 2800 мм, а длина продольных равна величине зазора между пачками. В каждом пересечении бруски скрепляют двумя гвоздями диаметром 6 мм и длиной 200 мм. При нечетном количестве пачек укладывают две распорные рамы - по одной с каждой стороны средней пачки. Для крепления пачек, упакованных на поддонах, используют раму (рисунок 58).
|
Распорная рама для крепления пачек, упакованных на салазках или поперечных брусках 1 - поперечный брусок; 2 - продольный брусок |
Распорная рама для крепления пачек, упакованных на поддонах 1 - поперечный брусок; 2 - продольный брусок |
4.2.5. Пачки шириной 900 - 2000 мм и длиной свыше 1500 мм до 2800 мм промасленного и непромасленного металла без салазок размещают поперек полувагона (рисунок 59) двумя группами, начиная от торцевых дверей, со смещением относительно друг друга. По хребтовой балке укладывают подкладки сечением не менее 80 x 100 мм или горбыль толщиной не менее 80 мм, а на расстоянии 200 - 250 мм от боковых стен - продольные подкладки сечением не менее 40 x 100 мм или горбыль той же толщины. При неполном заполнении вагона при наличии зазора более 300 мм в середине между пачками устанавливают распорные бруски сечением не менее 80 x 100 мм и длиной по месту. Каждый распорный брусок длиной до 1000 мм крепят к подкладкам шестью гвоздями диаметром 5 мм и длиной не менее 125 мм, брусок длиной более 1000 мм - десятью гвоздями аналогичных размеров.
1, 2 - продольные подкладки;
3 - распорный брусок; 4 - гвоздь
Пачки длиной свыше 1500 мм до 2800 мм на салазках (поперечных брусках, поддонах) размещают поперек вагона аналогично без продольных подкладок. При наличии свободного пространства в средней части вагона под крайние пачки укладывают две подкладки сечением не менее 40 x 100 мм или горбыль той же толщины и длиной, равной ширине двух пачек и зазору между пачками в средней части вагона. На подкладки устанавливают два поперечных бруска высотой, равной высоте салазок, которые крепят к подкладкам в каждое соединение - двумя гвоздями длиной, равной суммарной толщине брусков и подкладок. На бруски устанавливают распорные бруски сечением не менее 80 x 100 мм с креплением их к поперечным брускам гвоздями диаметром 5 мм и длиной не менее 150 мм.
При погрузке пачек в несколько ярусов пачки второго верхнего яруса размещают от торцов вагона на пачки нижнего яруса. При этом количество пачек в каждой группе верхнего яруса должно быть:
- для варианта размещения пачек с четным количеством в группе - одинаковым и кратным двум;
- для варианта размещения пачек с нечетным количеством в группе - одинаковым.
Люковые закидки полувагона увязывают проволокой в соответствии с пунктом 1.5 настоящей главы.
4.2.6. Пачки шириной 900 - 1400 мм и длиной от 2000 мм до 2700 мм включительно (в полувагонах с длиной кузова 12700 мм - до 3100 мм включительно) промасленного металла на салазках (поперечных брусках, поддонах) и без них размещают в полувагоне в один или несколько ярусов (рисунок 60) по высоте двумя продольными рядами от торцов полувагона. При наличии зазоров между продольными рядами более 200 мм под последний ярус пачек укладывают прокладки сечением не менее 25 x 100 мм и длиной, равной ширине вагона, к которым крепят каждый четырьмя гвоздями диаметром 5 мм и длиной 100 мм распорные бруски сечением не менее 40 x 100 мм. Длину брусков выбирают по месту.
В свободное пространство в середине полувагона размещают пачки поперек вагона. Количество пачек, уложенных поперек вагона, может меняться в зависимости от размеров пачек. В продольном направлении свободное расстояние между пачками допускается не более 100 мм. При наличии свободного расстояния между пачками до 250 мм производится крепление пачек от смещений путем установки распорных брусков или вертикальных стоек.
1 - пачка металла; 2 - салазки;
3 - поперечная прокладка; 4 - распорный брусок
4.2.7. Пачки холоднокатаной листовой стали шириной 900 - 1850 мм, длиной 1500 - 4000 мм на салазках, поддонах, поперечных брусках размещают в полувагоне в один или несколько ярусов по высоте в соответствии с рисунком 61а (двумя группами с одной распорной рамой), рисунком 61б (без распорной рамы), рисунком 61в (тремя группами с двумя распорными рамами).
Пачки на салазках, ориентированных вдоль вагона, устанавливают каждую на две подкладки поз. 1 сечением не менее 50 x 100 мм и длиной равной ширине полувагона.
Пачки размещают от торцов к середине полувагона.
Пачки верхнего и нижнего ярусов скрепляют между собой не менее чем тремя увязками из ленты металлической поз. 2 по ГОСТ 3560 "Лента стальная упаковочная" шириной не менее 30 мм и толщиной: мягкая - 1,5 - 2,0 мм, нагартованная - 0,8 - 2,0 мм или полиэстеровых лент, соответствующих европейскому стандарту EN 13394 "Упаковка. Технические условия на неметаллическую ленту для обвязки" (далее - полиэстеровая лента) сечением не менее 1,3 x 24,7 мм.
В зазор более 250 мм между группами пачек устанавливают распорную раму поз. 3 в соответствии с пунктом 4.2.1 настоящей главы и рисунком 53.
От смещений в поперечном направлении в зазоры между пачками более 250 мм в распор между салазками пачек устанавливают распорные бруски сечением не менее 80 x 100 мм и длиной по месту, которые крепят к подкладкам каждый не менее чем 4 гвоздями.
1 - подкладка сечением не менее 50 x 100 мм
и длиной 2800 мм; 2 - увязка; 3 - распорная рама
4.2.8. Пачки холоднокатаной листовой стали шириной 900 - 1850 мм, длиной 1500 - 4000 мм на салазках, поддонах, поперечных брусках размещают в полувагоне в один или несколько ярусов по высоте в соответствии с рисунком 62а (с одной распорной рамой), рисунками 62б, 62в (без распорной рамы), рисунком 62г (с двумя распорными рамами).
Пачки на салазках, ориентированных вдоль вагона, устанавливают каждую на две подкладки поз. 1 сечением не менее 50 x 100 мм и длиной, равной ширине полувагона.
Пачки размещают от торцов к середине полувагона.
Пачки верхнего и нижнего яруса скрепляют между собой не менее чем тремя увязками из ленты поз. 2 металлической по ГОСТ 3560 "Лента стальная упаковочная" шириной не менее 30 мм и толщиной: мягкая - 1,5 - 2,0 мм, нагартованная - 0,8 - 2,0 мм или полиэстеровых лент сечением не менее 1,3 x 24,7 мм.
В зазор более 250 мм между группами пачек устанавливают распорную раму поз. 3 в соответствии с пунктом 4.2.1 настоящей главы и рисунком 53.
От смещений в поперечном направлении в зазоры между пачками более 250 мм в распор между салазками пачек устанавливают распорные бруски сечением не менее 80 x 100 мм и длиной по месту, которые крепят к подкладкам каждый не менее чем 4 гвоздями.
1 - подкладка сечением не менее 50 x 100 мм
и длиной 2800 мм; 2 - увязка; 3 - распорная рама
Допускается погрузка различного количества пачек, размещенных вдоль и поперек вагона, при условии выполнения требований главы 1 настоящих ТУ в части допускаемого смещения общего центра тяжести груза.
4.2.9. Пачки холоднокатаной листовой стали шириной 1400 - 1850 мм, длиной 1400 - 3100 мм на салазках, поддонах, поперечных брусках размещают в один ряд по ширине полувагона и в один или несколько ярусов по высоте в соответствии с рисунком 63 (с двумя распорными рамами), рисунком 64 (с одной распорной рамой), рисунком 65 (без распорной рамы). Пачки верхнего и нижнего яруса скрепляют между собой не менее чем тремя обвязками из ленты металлической по ГОСТ 3560 шириной не менее 30 мм и толщиной: мягкая - 1,5 - 2,0 мм, нагартованная 0,8 - 2,0 мм или обвязками из полиэстеровой ленты сечением не менее 1,3 x 24,7 мм.
Пачки размещают вдоль вагона симметрично относительно продольной и поперечной плоскостей симметрии полувагона. В свободное пространство между штабелями пачек более 300 мм устанавливают распорную раму, изготовленную в соответствии с рисунком 53. Каждый штабель пачек устанавливают на две подкладки (поз. 1) размерами не менее 40 x 100 x 2850 мм. Торцевые двери полувагона ограждают на высоту погрузки торцевыми щитами. От поперечного смещения пачки крепят четырьмя распорными брусками поз. 2 сечением не менее 80 x 100 мм и длиной по месту, которые прибивают к подкладкам поз. 1 каждый тремя гвоздями длиной не менее 120 мм.
1 - подкладка; 2 - распорный брусок;
3 - торцевой щит; 4 - распорная рама
1 - подкладка; 2 - распорный брусок;
3 - торцевой щит; 4 - распорная рама
1 - подкладка; 2 - распорный брусок; 3 - торцевой щит
4.2.10. Пачки шириной 900 - 1400 мм и длиной от 1000 мм до 2800 мм включительно (в полувагонах с длиной кузова 12700 мм - до 3100 мм включительно) не промасленного листового металла на салазках (поперечных брусках, поддонах) и без них размещают в полувагоне двумя продольными рядами вдоль боковых стен (рисунок 66) в один или несколько ярусов по высоте.
При наличии зазоров между продольными рядами более 200 мм крепление верхнего яруса пачек аналогично изложенному в пункте 4.2.6 настоящей главы.
1 - пачка листового металла; 2 - салазки
При неполном использовании длины вагона одну или две пачки размещают в середине поперек вагона (рисунок 67 и 68).
1 - пачка листового металла; 2 - салазки
1 - пачка листового металла; 2 - салазки
При наличии в продольном направлении между пачками зазоров более 300 мм пачки раскрепляют поперечными брусками или распорными рамами из бруса сечением не менее 80 x 100 мм (рисунок 51).
4.2.11. Пачки холоднокатаной листовой стали шириной 900 - 1400 мм, длиной 2800 - 4000 мм на салазках, поддонах, поперечных брусках размещают в два ряда по ширине полувагона, три (рисунок 69) или четыре (рисунок 70) штабеля по длине вагона и в один или несколько ярусов по высоте. Пачки верхнего и нижнего яруса скрепляют между собой не менее чем тремя увязками из ленты металлической поз. 2 по ГОСТ 3560 "Лента стальная упаковочная" шириной не менее 30 мм и толщиной: мягкая - 1,5 - 2,0 мм, нагартованная - 0,8 - 2,0 мм или полиэстеровой лентой сечением не менее 1,3 x 24,7 мм.
Пачки на салазках, ориентированных вдоль вагона, устанавливают каждую на две подкладки поз. 1 сечением не менее 50 x 100 мм и длиной, равной ширине полувагона.
Пачки размещают от торцов к середине полувагона.
В зазор более 250 мм между группами пачек устанавливают распорную раму в соответствии с пунктом 4.2.1 настоящей главы и рисунком 53.
От смещений в поперечном направлении в зазоры между пачками более 250 мм в распор между салазками пачек устанавливают распорные бруски сечением не менее 80 x 100 мм и длиной по месту, которые крепят к подкладкам каждый не менее чем 4 гвоздями.
1 - подкладка 40 x 100 x 2850 мм;
2 - увязка из ленты; 3 - распорная рама
1 - подкладка 40 x 100 x 2850 мм;
2 - увязка из ленты; 3 - распорная рама
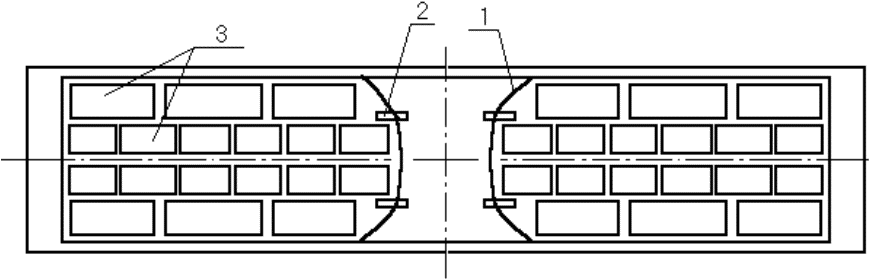
4.2.12. Пачки шириной 1000 - 1350 мм и длиной свыше 2500 мм до 6000 мм включительно (в полувагонах с длиной кузова 12700 мм - до 6300 мм включительно) промасленного и непромасленного листового металла без салазок размещают от торцевых дверей (стен) по ширине полувагона тремя продольными рядами: в середине один ряд пачек укладывают горизонтально, а два других - вдоль боковых стен наклонно (рисунок 71). Под пачки, размещаемые наклонно, на расстоянии 100 - 150 мм от боковых стен полувагона устанавливают продольные подкладки из досок сечением не менее 40 x 100 мм или из горбыля толщиной не менее 40 мм. Подкладки могут быть составными по длине. В зависимости от длины пачки размещают в два - четыре штабеля по длине вагона.
1 - продольная подкладка; 2 - пачки листового металла
При наличии между средними штабелями зазора более 300 мм их раскрепляют от продольных смещений поперечными брусками или распорными рамами из бруса сечением не менее 80 x 100 мм (рисунок 51). При размещении пачек в три штабеля крепление их по длине вагона осуществляется в двух местах брусками или распорными рамами, в два или четыре штабеля - в одном месте брусками или распорной рамой или в двух местах по торцам вагона.
4.2.13. Пачки шириной 900 - 1350 мм и длиной свыше 2500 мм до 6000 мм (в полувагонах с длиной кузова 12700 мм - до 6300 мм) могут располагаться по ширине полувагона двумя рядами, уложенными вплотную к боковым стенам в один или несколько ярусов по высоте (рисунок 72). Если расстояние между рядами в середине вагона больше 200 мм, то под пачки на расстоянии 200 - 250 мм от края пачки по обе стороны от хребтовой балки полувагона укладывают продольные подкладки сечением не менее 100 x 100 мм или горбыль той же толщины для промасленного металла и сечением не менее 40 x 100 мм (горбыль толщиной 40 мм) для непромасленного.
1 - продольная подкладка; 2 - пачки листового металла
Если верхний ярус загружен не полностью, каждую пачку крепят к пачкам предыдущего яруса двумя поперечными увязками из проволоки диаметром 6 мм в две нити. Допускается крепление пачек неполного яруса распорной рамой.
4.2.14. Пачки шириной 1000 - 1350 мм и длиной свыше 6000 мм до 8000 мм непромасленного листового металла без салазок размещают по ширине вагона в два ряда вплотную к боковым стенам и внахлест по длине вагона (рисунок 73) на продольные подкладки сечением не менее 40 x 100 мм или горбыль той же толщины, которые устанавливают на расстоянии 200 - 250 мм от края каждой пачки со стороны хребтовой балки вагона.
1 - торцевой щит; 2 - листовой металл в пачках;
3 - продольная подкладка
При погрузке пачек внахлест торцевые двери ограждают щитами.
4.2.15. Пачки шириной 1360 - 1700 мм и длиной свыше 1500 мм до 6000 мм на салазках (поперечных брусках, поддонах) и без салазок размещают по ширине полувагона тремя продольными рядами: первый ряд в середине полувагона - горизонтально; второй - горизонтально со смещением вплотную к одной из боковых стен; третий вдоль противоположной боковой стены - наклонно (рисунок 74). Высота пачек, уложенных в середине вагона, не должна превышать 250 мм.
1 - пачки, уложенные горизонтально;
2 - пачка, уложенная наклонно
При этом пачки длиной свыше 1500 мм до 2700 мм включительно (в полувагонах с длиной кузова 12700 мм - пачки длиной до 3100 мм включительно) размещают по длине вагона в 4 - 7 штабелей. При наличии между пачками свободного пространства вдоль вагона более 300 мм устанавливают одну или две распорные рамы. Люковые закидки полувагона увязывают проволокой в соответствии с пунктом 1.5 настоящей главы.
Пачки длиной свыше 2700 мм до 6000 мм включительно (в полувагонах с длиной кузова 12700 мм - пачки длиной до 6300 мм включительно) размещают вдоль вагона в четыре, три и два штабеля (рисунок 75). Если по длине вагона между штабелями образуется свободное расстояние более 300 мм, то в середине вагона размещают одну или две распорные рамы. При длине зазора между штабелями более 2300 мм допускается устанавливать две распорные рамы по торцам вагона.
1 - пачки, уложенные горизонтально; 2 - пачка,
уложенная наклонно; 3 - распорная рама
4.2.16. Пачки горячекатаной листовой стали шириной 1500 - 1700 мм длиной 5700 - 6000 мм (в полувагоне с длиной кузова 12700 мм - длиной до 6200 мм включительно) размещают в один или несколько ярусов по высоте следующим порядком (рисунок 76). Симметрично относительно продольной и поперечной плоскостей симметрии полувагона горизонтально устанавливают два штабеля пачек со смещением к середине вагона. Затем в торцевой части полувагона горизонтально устанавливают пачки вплотную к боковой стене и торцу полувагона. На горизонтально размещенные пачки вплотную к противоположной боковой стене и торцу полувагона пачки устанавливают наклонно. Размещение пачек в противоположной торцевой части полувагона выполняют аналогично. Наклонные пачки устанавливают к противоположной боковой стене.
Пачки нижнего яруса устанавливают на подкладки поз. 1 размерами не менее 40 x 100 x 2850 мм. Ярусы пачек разделяют между собой прокладками поз. 2 сечением не менее 25 x 100 мм и длиной по месту.
1 - подкладка; 2 - прокладка
4.2.17. Пачки листового металла шириной 1350 - 1600 мм и длиной свыше 2700 мм до 6000 мм включительно, упакованные без деревянных реквизитов, размещают вдоль вагона четырьмя, тремя или двумя штабелями симметрично относительно плоскостей симметрии вагона (рисунок 77). Каждый штабель в зависимости от длины пачек укладывают на две или три поперечные подкладки размерами 50 x 100 x 2800 мм. Подкладки размещают между гофрами крышек люков. В каждом штабеле в зависимости от массы пачки размещают от двух до пяти пачек.
1 - поперечная подкладка; 2 - стойка;
3 - наклонная прокладка
Горизонтальные пачки размещают от стен вагона в шахматном порядке. Наклонные пачки устанавливают на наклонные прокладки сечением не менее 50 x 100 мм и длиной не менее ширины пачки вплотную к стойкам сечением не менее (40 - 100) x 100 мм и длиной, равной высоте погрузки. Стойки могут быть установлены в вертикальном или наклонном положении.
Пачки листового металла, упакованные на деревянных реквизитах, в полувагоне размещают аналогично без применения подкладок и прокладок.
Допускается в одном вагоне размещать разные штабели, сформированные в соответствии с рисунком 77 (виды а - г).
4.2.18. Пачки листового металла шириной 1400 - 1500 мм и длиной свыше 2700 мм до 6000 мм включительно совместно с пачками шириной 900 - 1400 мм и длиной от 1800 мм до 2700 мм включительно, упакованные без деревянных реквизитов, в полувагоне размещают в несколько штабелей по длине вагона симметрично плоскостям симметрии вагона (рисунок 78).
В средней части вагона размещают пачки шириной 1400 - 1500 мм и длиной свыше 2700 мм до 6000 мм включительно одним, двумя, тремя или четырьмя штабелями, сформированными в соответствии с рисунком 78 (виды а - г).
У торцов вагона размещают горизонтально пачки шириной 900 - 1400 мм и длиной от 1800 мм до 2700 мм включительно. При этом пачки укладывают как поперек так и вдоль вагона.
Каждую пачку, размещаемую поперек вагона, укладывают на три подкладки сечением 50 x 100 мм и длиной, равной длине погрузки. Подкладки размещают над хребтовой балкой и на крышках люков (поз. 4). Каждую пачку, размещаемую вдоль вагона, укладывают на двух подкладках размерами 50 x 100 x 2800 мм (поз. 5), уложенных поперек вагона.
1 - поперечная подкладка; 2 - стойка; 3 - наклонная
прокладка; 4 - продольная подкладка; 5 - поперечная
прокладка; 6 - продольная прокладка
При размещении пачек листового металла во втором ярусе их укладывают как вдоль одним или двумя рядами, так и поперек вагона на прокладках. Каждую пачку, размещаемую поперек вагона, укладывают на трех продольных прокладках (поз. 6) сечением 50 x 100 мм и длиной, равной длине погрузки, а каждую пачку, размещаемую вдоль вагона, укладывают на двух поперечных прокладках размерами 50 x 100 x 2800 мм (поз. 5).
Пачки листового металла, упакованные на салазках, поперечных брусках и поддонах, размещают без применения подкладок и прокладок.
Пачки листового металла, упакованные на салазках, в полувагонах размещают горизонтально как вдоль, так и поперек вагона в нижнем ярусе и только поперек вагона - в верхнем.
4.2.19. Пачки листового металла шириной 900 - 1600 мм и длиной от 1800 мм до 6000 мм включительно, упакованные без деревянных реквизитов, в полувагоне размещают в несколько штабелей по длине вагона симметрично относительно плоскостей симметрии вагона. При этом пачки, размещаемые в одном вагоне, могут иметь различные размеры и массу (рисунок 79).
В полувагоне пачки размещают в один или два яруса. При неполном верхнем ярусе пачки размещают у торцов вагона.
Пачки нижнего яруса размещают на подкладках размерами не менее 50 x 100 x 2800 мм (поз. 1). Размещаемые вдоль вагона пачки устанавливают не менее чем на две поперечные подкладки. Пачки поперек вагона размещают не менее чем на трех подкладках сечением не менее 50 x 100 мм (поз. 2), расположенных: одна над хребтовой балкой, а две - на крышках люков на расстоянии 300 - 400 мм от боковой стены вагона между поперечными балками по всей ширине люка.
1 - поперечная подкладка; 2 - продольная подкладка;
3 - продольная прокладка; 4 - поперечная прокладка
При размещении пачек листового металла во втором ярусе их укладывают вдоль и поперек вагона на прокладках. Каждую пачку, размещаемую поперек вагона, укладывают на двух продольных прокладках сечением не менее 50 x 100 мм и длиной, равной длине погрузки (поз. 3), а каждую пачку, размещаемую вдоль вагона, укладывают на двух поперечных прокладках размерами не менее 50 x 100 x 2800 мм (поз. 4).
Пачки листового металла, упакованные на салазках, поперечных брусках и поддонах, размещают в вагоне без подкладок и прокладок.
Пачки листового металла на салазках (поперечных брусках, поддонах) в полувагонах размещают горизонтально как вдоль так и поперек вагона.
4.2.20. Пачки шириной 1900 - 2700 мм и длиной свыше 4000 мм до 8000 мм включительно (в полувагонах с длиной кузова 12700 мм - пачки длиной до 8300 мм включительно) размещают по ширине полувагона двумя продольными рядами: один ряд пачек располагают к одной из стен горизонтально, второй - к противоположной стене наклонно (рисунок 80). Под пачки, размещенные наклонно, на расстоянии 200 - 300 мм от их края на пачки, размещенные горизонтально, укладывают вдоль вагона бруски сечением не менее 100 x 100 мм или горбыль толщиной 100 мм.
Пачки длиной свыше 4000 мм до 6000 мм включительно (в полувагонах с длиной кузова 12700 мм - пачки длиной до 6300 мм включительно) размещают вдоль вагона двумя штабелями (рисунок 80). При наличии свободного пространства более 300 мм в середине вагона между штабелями устанавливают распорную раму (рисунок 51).
При погрузке пачек шириной более 2400 мм продольный брус (поз. 4) не устанавливают. Пачки шириной более 2400 мм размещают горизонтально симметрично относительно продольной плоскости симметрии вагона.
1 - пачка, уложенная наклонно; 2 - поперечный брус;
3 - пачка, уложенная горизонтально; 4 - продольный брус;
5 - распорный брус
Пачки длиной свыше 6000 мм до 8000 мм включительно (в полувагонах с длиной кузова 12700 мм - пачки длиной свыше 6300 мм до 8300 мм включительно) размещают по длине вагона двумя штабелями внахлест посередине.
4.2.21. Пачки шириной 1400 - 1900 мм, длиной свыше 2700 мм до 5500 мм включительно (в полувагонах с длиной кузова 12700 мм - пачки длиной до 6300 мм включительно) непромасленного металла могут размещаться по схемам, приведенным на рисунках 81, 82, 83.
1 - пачка, уложенная горизонтально; 2 - пачка,
уложенная наклонно; 3 - распорная рама
1 - пачки, уложенные горизонтально; 2 - пачки,
уложенные наклонно, встык и внахлест
1 - пачка, уложенная горизонтально;
2 - пачки, уложенные наклонно
Перекрытие горизонтально уложенных пачек пачками, уложенными наклонно, должно составлять не менее 50 мм. Если перекрытие пачек менее 50 мм, то его размеры увеличивают за счет установки у стен брусков соответствующего сечения.
Пачки могут быть погружены в одном вагоне по комбинированной схеме, состоящей из фрагментов схем, представленных на рисунках 66, 67, 68, 74, 75, 77. При этом равномерность загрузки вагона относительно продольной и поперечной плоскостей симметрии должна подтверждаться эскизами.
4.2.22. Пачки шириной 1400 - 2700 мм длиной свыше 6000 мм до 8000 мм включительно (в полувагонах с длиной кузова 12700 мм - пачки длиной до 8300 мм включительно) без салазок размещают посередине вагона двумя штабелями по длине вагона внахлест (рисунок 84). При этом под последние ярусы пачек штабелей и в месте нахлеста укладывают прокладки сечением не менее 25 x 100 мм и длиной, равной ширине полувагона. К этим прокладкам сверху и снизу по месту между грузом и боковыми стенами крепят поперечные упорные бруски сечением не менее 50 x 100 мм гвоздями диаметром 5 мм и длиной 100 мм - по два в каждый упорный брусок.
1 - торцевой щит; 2 - поперечный упорный брусок;
3 - пачка металла; 4 - прокладка
Пачки длиной более 6000 мм могут быть погружены без "нахлеста", если позволяет внутренняя длина вагона. Торцевые двери полувагона ограждают щитами в соответствии с пунктом 1.4 настоящей главы.
4.2.23. Листовой металл в пачках шириной 1350 - 2700 мм размещают в один продольный ряд симметрично продольной и поперечной плоскостям симметрии полувагона в один или несколько ярусов по высоте.
Пачки длиной свыше 2800 мм до 3000 мм (в полувагонах с длиной кузова 12700 мм - пачки длиной до 3100 мм) размещают в четыре штабеля по длине (рисунок 85), пачки длиной свыше 3000 мм до 4000 мм (в полувагонах с длиной кузова 12300 мм - до 4100 мм, в полувагонах с длиной кузова 12700 мм - до 4200 мм) размещают в три штабеля по длине (рисунок 86), пачки длиной свыше 4000 мм до 6000 мм (в полувагонах с длиной кузова 12300 мм - до 6100 мм, в полувагонах с длиной кузова 12700 мм - до 6300 мм) размещают в два штабеля по длине (рисунок 87).
Каждый штабель пачек длиной до 4000 мм размещают на две, а длиной свыше 4000 мм до 6300 мм - на три подкладки сечением не менее 40 x 100 мм. Подкладки размещают на поперечных балках и между гофрами крышек люков у торцов полувагона.
Каждый штабель закрепляют четырьмя поперечными распорными брусками сечением не менее 40 x 100 мм, прибиваемыми к подкладкам каждый двумя гвоздями диаметром 5 мм длиной 80 мм, и увязывают двумя поперечными увязками из проволоки диаметром 6 мм в четыре нити.
От продольных смещений зазоры между торцевыми дверями (стенами) полувагонов величиной до 300 мм заполняют брусками толщиной не менее 100 мм. В зазоры более 300 мм устанавливают распорные рамы (рисунок 51) или по три распорных бруска сечением не менее 100 x 100 мм, соединенных между собой двумя планками сечением не менее 25 x 80 мм и длиной, равной ширине полувагона. Планки скрепляют с брусками гвоздями длиной не менее 80 мм - по два в каждое соединение.
1 - подкладка; 2 - поперечный распорный брусок;
3 - распорный брус; 4 - соединительная планка; 5 - увязка
1 - подкладка; 2 - поперечный распорный брусок;
3 - распорный брус; 4 - соединительная планка; 5 - увязка
1 - подкладка; 2 - поперечный распорный брусок;
3 - распорный брус; 4 - соединительная планка; 5 - увязка
4.2.24. Пачки листового металла шириной 700 - 1350 мм и длиной свыше 2800 мм до 5500 мм на салазках (поперечных брусках, поддонах) размещают в полувагонах в два-три ряда по ширине, в один или несколько ярусов по высоте горизонтально вдоль вагона и в два - четыре штабеля по длине.
Размещение и крепление пачек аналогично размещению и креплению пачек, изложенному в пункте 4.2.23 настоящей главы.
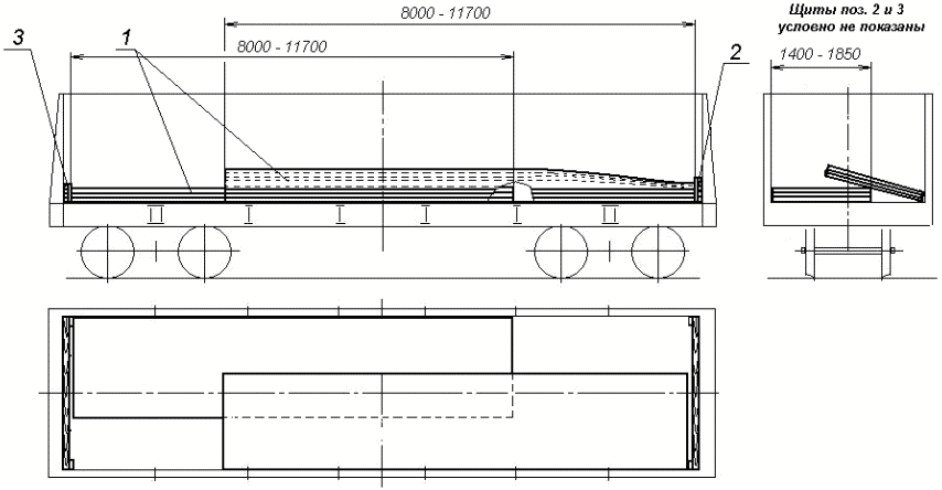
4.2.25. Пачки длиной свыше 8000 мм до 11700 мм включительно (в полувагонах с длиной кузова 12300 мм - до 12100 мм включительно, в полувагонах с длиной кузова 12700 мм - до 12600 мм включительно) размещают в полувагоне:
- при ширине пачки 1000 - 1360 мм (рисунок 88);
- при ширине пачки 1400 - 1850 мм (рисунок 89).
Торцевые двери полувагона ограждают щитами в соответствии с пунктом 1.4 настоящей главы.
1 - пачка; 2, 3 - щит торцевой
1 - пачка; 2, 3 - щит торцевой
4.3. Размещение и крепление листового металла толщиной 6 - 160 мм, не упакованного в пачки, в полувагонах.
4.3.1. Непромасленный металл шириной 1000 - 2700 мм и длиной свыше 2000 мм до 12000 мм включительно (в полувагонах с длиной кузова 12700 мм - металл длиной до 12600 мм включительно) размещают согласно схемам на рисунках, номера которых приведены в таблице 7.
4.3.2. Листы шириной 1000 - 1300 мм, длиной 2800 - 12600 мм размещают в середине полувагона горизонтально штабелями высотой 100 - 200 мм, а вдоль боковых стен - наклонно (рисунок 90).
1 - листовой металл; 2 - распорная рама
При этом листы длиной свыше 2800 мм до 3000 мм включительно размещают в середине вдоль полувагона горизонтально в четыре штабеля (рисунок 90), а затем вдоль боковых стен - по четыре штабеля наклонно. При наличии в середине вагона свободного пространства более 300 мм между штабелями устанавливают распорную раму (рисунок 51).
Листы длиной свыше 3000 мм до 3900 мм включительно (в полувагонах с длиной кузова 12300 мм - листы длиной до 4050 мм включительно, в полувагонах с длиной кузова 12700 мм - листы длиной до 4200 мм включительно) размещают в три штабеля вдоль вагона горизонтально, затем вдоль боковых стен - по три штабеля наклонно. При наличии в середине вагона свободного пространства более 300 мм между штабелями устанавливают две распорные рамы (рисунок 51).
Листы длиной свыше 3900 мм до 6000 мм включительно (в полувагонах с длиной кузова 12300 мм - листы длиной до 6100 мм включительно, в полувагонах с длиной кузова 12700 мм - листы длиной до 6300 мм включительно) размещают в середине полувагона вдоль хребтовой балки от торцевых дверей горизонтально двумя штабелями (рисунок 91), затем вдоль боковых стен - по два штабеля наклонно. При наличии в середине вагона свободного пространства более 300 мм между штабелями устанавливают распорную раму (рисунок 51).
1 - листовой металл; 2 - распорная рама
Листы длиной свыше 6000 мм до 11700 мм включительно (в полувагонах с длиной кузова 12300 мм - листы длиной до 12100 мм включительно, в полувагонах с длиной кузова 12700 мм - листы длиной до 12600 мм включительно) размещают вдоль полувагона над хребтовой балкой двумя штабелями внахлест (рисунок 92), а затем вдоль боковых стен по два штабеля наклонно также внахлест.
Торцевые двери полувагона ограждают щитами в соответствии с пунктом 1.4 настоящей главы.
1 - торцевой щит; 2, 3 - листы, погруженные соответственно
горизонтально, внахлестку и наклонно; 4 - деревянные
прокладки (к пункту 4.3.3 настоящей главы)
4.3.3. При размещении листов толщиной 21 - 160 мм, шириной 1000 - 1300 мм и длиной свыше 7000 мм до 8500 мм под свободные концы верхних штабелей на расстоянии 900 - 1100 мм от края укладывают прокладки толщиной 40 - 80 мм и длиной, равной ширине листов (рисунок 92а).
При размещении листов аналогичной толщины, ширины и длиной свыше 8500 мм до 11700 мм (в полувагонах с длиной кузова 12300 мм - листов длиной до 12100 мм, в полувагонах с длиной кузова 12700 мм - листов длиной до 12600 мм) под каждый верхний штабель укладывают со стороны торцевой двери на расстоянии 500 - 700 мм от нее подкладки высотой 80 - 100 мм, а с противоположной стороны - высотой 40 - 80 мм и длиной, равной ширине листов (рисунок 92б).
4.3.4. Листы шириной 1300 - 1400 мм, длиной свыше 3000 мм до 11700 мм включительно (в полувагонах с длиной кузова 12300 мм - листы длиной до 12100 мм включительно, в полувагонах с длиной кузова 12700 мм - листы длиной до 12600 мм включительно) размещают в полувагоне двумя рядами по ширине (рисунок 93) и в несколько штабелей по длине.
1 - листы металла
- длиной свыше 3000 мм до 3600 мм включительно укладывают по длине полувагона четырьмя штабелями: два штабеля посередине размещают горизонтально встык, а два - наклонно к торцевым дверям (рисунок 94). Торцевые двери ограждают щитами в соответствии с пунктом 1.4 настоящей главы;
1 - торцевой щит; 2, 3 - соответственно
горизонтальный и наклонный штабель
- длиной свыше 3600 мм до 3900 мм включительно размещают вдоль полувагона в три штабеля (рисунок 95). При наличии свободного пространства более 300 мм между штабелями устанавливают две распорные рамы (рисунок 51);
1 - штабель металла
- длиной свыше 3900 мм до 6000 мм включительно размещают вдоль полувагона в три штабеля: один из них в середине полувагона размещают горизонтально, два других - наклонно к торцам вагона (рисунок 96). Листы толщиной до 24 мм допускается размещать внахлест через один или несколько листов. При этом верхние листы центрального штабеля должны находиться под листами наклонных штабелей. Торцевые двери полувагона ограждают щитами в соответствии с пунктом 1.4 настоящей главы;
1 - торцевой щит; 2, 3 - соответственно
горизонтальный и наклонный штабель
- длиной свыше 6000 мм до 7000 мм включительно размещают внахлест штабелями (рисунок 97) или внахлест через несколько листов (рисунок 98). Торцевые двери полувагона ограждают щитами в соответствии с пунктом 1.4 настоящей главы;
1 - торцевой щит; 2 - штабель, уложенный горизонтально;
3 - штабель, уложенный наклонно
1 - торцевой щит; 2 - листы, уложенные
горизонтально; 3 - листы, уложенные наклонно
- длиной свыше 7000 мм до 12600 мм включительно размещают внахлест штабелями (рисунок 99 и рисунок 100 без установки прокладки поз. 4) или внахлест через несколько листов. Торцевые двери полувагона ограждают щитами в соответствии с пунктом 1.4 настоящей главы.
При погрузке листов толщиной 21 - 160 мм и длиной свыше 7000 мм до 8500 мм включительно под свободный конец наклонного штабеля на расстоянии 900 - 1100 мм от его торца укладывают прокладку толщиной 40 - 80 мм и длиной, равной ширине вагона (рисунок 99).
1 - торцевой щит; 2 - штабель, уложенный горизонтально;
3 - штабель, уложенный наклонно; 4 - деревянная прокладка
При погрузке листов длиной свыше 8500 мм до 12600 мм включительно и толщиной 21 - 160 мм под наклонный штабель со стороны торцевой двери на расстоянии 500 - 700 мм от нее устанавливают подкладку высотой 80 - 100 мм, шириной 100 - 150 мм и длиной, равной ширине полувагона, а с противоположной стороны - прокладку высотой 40 - 80 мм, шириной 60 - 120 мм и длиной, равной ширине полувагона, на расстоянии 900 - 1100 мм от торца штабеля (рисунок 100).
1 - торцевой щит; 2 - штабель, уложенный горизонтально;
3 - штабель, уложенный наклонно; 4 - прокладка;
5 - подкладка
4.3.5. Листы шириной 1400 - 1700 мм и длиной свыше 1500 мм до 11700 мм включительно (в полувагонах с длиной кузова 12300 мм - листы длиной до 12100 мм включительно, в полувагонах с длиной кузова 12700 мм - листы длиной до 12600 мм включительно) размещают по ширине полувагона вдоль одной стены горизонтально, вдоль другой - наклонно (рисунок 101).
Листы длиной свыше 1500 мм до 3000 мм включительно размещают в несколько штабелей горизонтально вдоль одной стены, начиная от торцов, равномерно по длине вагона, затем вдоль второй стены укладывают на них наклонно такое же количество штабелей. При наличии свободного пространства вдоль вагона более 300 мм между штабелями устанавливают распорные рамы (рисунок 51).
Листы длиной свыше 3000 мм до 3900 мм включительно (в полувагонах с длиной кузова 12300 мм - листы длиной до 4050 мм включительно, в полувагонах с длиной кузова 12700 мм - листы длиной до 4200 мм включительно) размещают тремя штабелями горизонтально вдоль одной стены полувагона, начиная от торцов, равномерно по длине вагона, затем вдоль второй стены укладывают на них наклонно три штабеля. При наличии свободного пространства вдоль вагона более 300 мм между штабелями устанавливают две распорные рамы (рисунок 51).
Листы длиной свыше 3900 мм до 6000 мм включительно (в полувагонах с длиной кузова 12300 мм - листы длиной до 6100 мм включительно, в полувагонах с длиной кузова 12700 мм - листы длиной до 6300 мм включительно) размещают горизонтально двумя штабелями вдоль одной стены полувагона, затем наклонно двумя штабелями вдоль противоположной стены (рисунок 101а). Между штабелями в середине полувагона устанавливают распорную раму (рисунок 51).
Листы длиной свыше 6000 мм до 11700 мм включительно (в полувагонах с длиной кузова 12300 мм - листы длиной до 12100 мм, в полувагонах с длиной кузова 12700 мм - листы длиной до 12600 мм) размещают вдоль одной стены полувагона двумя горизонтальными штабелями внахлест (рисунок 101б), а вдоль противоположной стены - двумя наклонными штабелями внахлест. Под свободные концы штабелей укладывают на расстоянии 900 - 1100 мм от торца прокладки высотой 80 - 100 мм и длиной, равной ширине листов.
1 - штабель, уложенный горизонтально; 2 - штабель,
уложенный наклонно; 3 - распорная рама; 4 - прокладка
Листы толщиной до 21 мм могут размещаться внахлест через несколько листов.
При погрузке листов толщиной 21 - 160 мм и длиной свыше 7000 мм до 11700 мм включительно (в полувагонах с длиной кузова 12300 мм - листы длиной до 12100 мм включительно, в полувагонах с длиной кузова 12700 мм - листы длиной до 12600 мм включительно) их также можно размещать и закреплять в полувагонах, как указано в пункте 4.2.22 настоящей главы (рисунок 84).
4.3.6. Листы шириной 1700 - 2800 мм и длиной свыше 3000 мм до 11700 мм включительно (в полувагонах с длиной кузова 12300 мм - листы длиной до 12100 мм включительно, в полувагонах с длиной кузова 12700 мм - листы длиной до 12600 мм включительно) размещают по ширине полувагона двумя продольными рядами: один ряд листов располагают у одной стены полувагона горизонтально, второй - у противоположной стены наклонно (рисунок 102). Под ряд листов, размещенный наклонно, на расстоянии 200 - 350 мм от его края укладывают бруски сечением не менее 100 x 100 мм.
1 - ряд, уложенный наклонно; 2 - распорная рама;
3 - ряд, уложенный горизонтально; 4 - прокладка
При этом листы длиной свыше 3000 мм до 3900 мм включительно (в полувагонах с длиной кузова 12300 мм - листы длиной до 4050 мм включительно, в полувагонах с длиной кузова 12700 мм - листы длиной до 4200 мм включительно) размещают вдоль вагона в три штабеля (рисунок 102а), длиной свыше 3900 мм до 6000 мм включительно (в полувагонах с длиной кузова 12300 мм - листы длиной до 6100 мм включительно, в полувагонах с длиной кузова 12700 мм - листы длиной до 6300 мм включительно) - в два штабеля.
Листы длиной свыше 6000 до 12600 мм включительно размещают вдоль вагона в два штабеля внахлест (рисунок 102б). Торцевые двери полувагона ограждают щитами в соответствии с пунктом 1.4 настоящей главы.
Листы шириной более 2000 мм и длиной свыше 6000 мм до 11700 мм включительно (в полувагонах с длиной кузова 12300 мм - листы длиной до 12100 мм включительно, в полувагонах с длиной кузова 12700 мм - листы длиной до 12600 мм включительно) также можно размещать по схеме, приведенной на рисунке 84.
4.3.7. Листовой металл шириной 2500 - 2800 мм и длиной свыше 11500 мм и до 12000 мм (в полувагонах с длиной кузова 12700 мм - длиной свыше 12000 мм до 12600 мм включительно) размещают в полувагоне одним штабелем на четырех подкладках размерами 40 x 100 x 2850 мм (поз. 1), уложенных на шкворневых и средних балках полувагона (рисунок 103).
Торцевые двери полувагона ограждают щитами в соответствии с пунктом 1.4 настоящей главы.
В средних ярусах штабеля (кроме нижнего и верхнего ярусов) допускается размещать листы меньшей длины встык друг к другу. При этом общая длина листов в ярусе должна быть равна длине основных листов.
1 - подкладка
4.4. Листовой металл толщиной 6 - 160 мм на платформах.
4.4.1. Листы шириной 2500 - 2700 мм и длиной свыше 11800 мм до 13000 мм включительно размещают в один штабель вдоль платформы симметрично продольной и поперечной плоскостям симметрии платформы (рисунок 104).
1 - торцевая стойка; 2 - распорный брусок;
3 - поперечный упорный брусок; 4 - боковая стойка;
5 - стяжка; 6 - распорный брус
Допускается совместная укладка листов разных размеров в одном штабеле при условии размещения листов меньших размеров в средней его части. Отдельные листы не должны выходить за пределы штабеля.
По торцам штабеля вплотную к нему устанавливают по одному поперечному упорному бруску (поз. 3) шириной не менее 200 мм, высотой, равной высоте штабеля груза, и длиной, равной ширине платформы. Каждый поперечный упорный брусок прибивают к полу платформы четырьмя гвоздями диаметром 6 мм и длиной 200 мм (по два гвоздя с каждого конца бруска). Упорные бруски в местах забивания гвоздей должны иметь высоту не более 140 мм.
В распор между поперечными упорными брусками и торцевыми бортами платформы напротив торцевых стоек устанавливают по два продольных распорных бруска (поз. 2) сечением не менее 150 x 200 мм. Каждый из них прибивают к полу платформы четырьмя гвоздями диаметром 6 мм и длиной 200 мм.
В торцевые стоечные скобы устанавливают короткие стойки. Во вторые, третьи и четвертые боковые стоечные скобы устанавливают стойки, которые попарно скрепляют стяжками из проволоки диаметром 6 мм в четыре нити.
При наличии зазоров между штабелем и боковыми бортами платформы более 100 мм устанавливают распорные бруски (поз. 6) сечением не менее 80 x 100 мм и длиной по месту. Каждый брусок закрепляют к полу не менее чем двумя гвоздями длиной не менее 150 мм.
4.4.2. Листы длиной от 13000 мм до 14200 мм включительно, шириной до 2700 мм размещают на четырехосной платформе с откинутыми (при необходимости) на кронштейны торцевыми бортами (рисунок 105). Листы укладывают на две поперечные подкладки сечением не менее 60 x 100 мм и длиной, равной ширине пола платформы. Подкладки располагают над шкворневыми балками и прибивают каждую к полу четырьмя гвоздями диаметром 5 мм и длиной 100 - 120 мм.
1 - подкладка; 2 - продольный брусок; 3 - поперечный брусок;
4 - вертикальная стяжка; 5 - боковая стойка; 6 - стяжка
Поверх листов на расстоянии 300 мм от его боковых кромок вдоль платформы укладывают восемь брусков (по четыре с каждой боковой стороны штабеля) сечением не менее 50 x 100 мм и длиной 1000 - 1500 мм. На каждую пару продольных брусков укладывают по одному поперечному бруску сечением не менее 135 x 150 мм и длиной 3150 мм, размещаемому над третьими и четвертыми парами боковых стоечных скоб, считая от торцов платформы. На поперечных брусках на расстоянии 70 - 100 мм от каждого конца делают зарубки глубиной 10 - 15 мм для предотвращения соскальзывания проволочных стяжек.
Каждый поперечный брусок с обеих сторон платформы закрепляют за боковые стоечные скобы вертикальными стяжками из проволоки диаметром 6 мм в четыре нити. До закручивания вертикальных проволочных стяжек сверху на листы рядом с каждым бруском крепления для уплотнения штабеля листов поочередно устанавливают груз массой 3 - 5 т, снимаемый после натяжения стяжек.
Допускается взамен поперечных брусков использовать круглые лесоматериалы диаметром не менее 180 мм, у которых опорную сторону стесывают на плоскость.
В первые и вторые стоечные скобы от торцов платформы устанавливают стойки. Каждую пару противоположных боковых стоек скрепляют между собой стяжками из проволоки диаметром 6 мм в четыре нити. При наличии зазоров между штабелем и боковыми бортами платформы более 100 мм устанавливают распорные бруски против вторых, третьих и четвертых боковых стоечных скоб: между бортами платформы и грузом устанавливают распорные бруски сечением не менее 80 x 100 мм. Каждый брусок прибивают к полу платформы двумя гвоздями диаметром не менее 5 мм.
4.4.3. Листы толщиной 15,7 - 30,0 мм, шириной 2650 - 3000 мм и длиной свыше 18000 мм до 18800 мм включительно размещают на платформах модели 13 - 9004, оборудованных съемным оборудованием, изготовленным по чертежу ПКО ОАО "Мариупольский металлургический комбинат имени Ильича" N И9/2506 - 2С6 - Тх.
Оборудование представляет собой сварную конструкцию, жестко закрепленную на платформе и состоящую из двух торцевых упоров (поз. 1) и связей (поз. 2) между ними.
Оборудование крепится к платформе при помощи захватов и упоров, которые примыкают к конструктивным элементам платформы.
Листы размещают симметрично относительно продольной и поперечной плоскостей симметрии платформы (рисунок 106).
Для обеспечения механизированной выгрузки листов допускается между листами устанавливать по семь прокладок сечением не менее 40 x 100 мм и длиной, равной ширине листов. При этом высота штабеля не должна превышать 300 мм.
1 - торцевой упор; 2 - связь упоров
При возврате платформы с оборудованием после выгрузки дополнительного закрепления оборудования на платформе не требуется.
4.5. Листовой металл толщиной свыше 160 мм до 250 мм включительно размещают и закрепляют в полувагонах и на платформах в соответствии со схемами размещения и крепления слябов, приведенными в пункте 7 настоящей главы.
- Гражданский кодекс (ГК РФ)
- Жилищный кодекс (ЖК РФ)
- Налоговый кодекс (НК РФ)
- Трудовой кодекс (ТК РФ)
- Уголовный кодекс (УК РФ)
- Бюджетный кодекс (БК РФ)
- Арбитражный процессуальный кодекс
- Конституция РФ
- Земельный кодекс (ЗК РФ)
- Лесной кодекс (ЛК РФ)
- Семейный кодекс (СК РФ)
- Уголовно-исполнительный кодекс
- Уголовно-процессуальный кодекс
- Производственный календарь на 2025 год
- МРОТ 2026
- ФЗ «О банкротстве»
- О защите прав потребителей (ЗОЗПП)
- Об исполнительном производстве
- О персональных данных
- О налогах на имущество физических лиц
- О средствах массовой информации
- Производственный календарь на 2026 год
- Федеральный закон "О полиции" N 3-ФЗ
- Расходы организации ПБУ 10/99
- Минимальный размер оплаты труда (МРОТ)
- Календарь бухгалтера на 2025 год
- Частичная мобилизация: обзор новостей
- Постановление Правительства РФ N 1875






























































