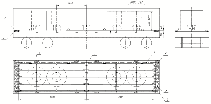
15. Размещение и крепление рулонов листовой и полосовой стали, стальной ленты
Положения настоящего раздела распространяются на:
- рулоны, обвязанные упаковочной лентой, с открытыми торцами (в том числе "штрипсы");
- рулоны, обвязанные упаковочной лентой, с торцами, закрытыми защитным кожухом (упакованные).
Рулоны листовой и полосовой стали, стальной ленты шириной до 400 мм включительно увязывают лентой в стопы. Разность диаметров рулонов, увязанных в стопу, должна быть не более 20 мм.
При размещении на торец отношение диаметра рулона (стоп рулонов) к его высоте должно быть не менее 1,05 (за исключением особо оговоренных случаев).
Допускается размещение рулонов массой менее, чем предусмотрено в пунктах раздела при соблюдении требований к размещению и креплению рулонов по конкретной схеме.
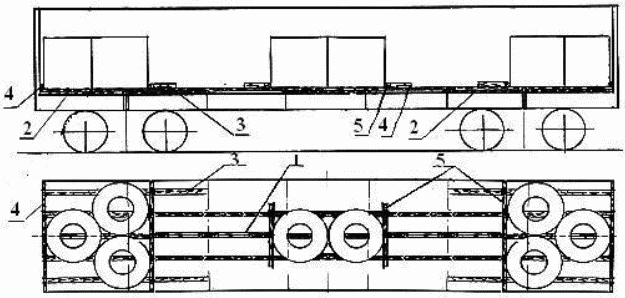
15.1. Рулоны стальной ленты толщиной до 6 мм и шириной до 700 мм наружным диаметром до 1300 мм включительно и массой до 2,5 т на платформе с деревянным настилом пола размещают (рисунок 219) продольными рядами: рулоны с наружным диаметром свыше 600 до 650 мм - в четыре ряда, наружным диаметром свыше 700 до 900 мм - в три ряда, наружным диаметром свыше 900 до 1300 мм - в два ряда. Ряды рулонов размещают симметрично относительно продольной и поперечной плоскостей симметрии платформы.
1 - короткая стойка; 2 - поперечный упорный брусок;
3 - продольная подкладка; 4 - увязка полурядов рулонов;
5 - увязка рулонов, уложенных плашмя
Каждый ряд рулонов размещают на двух продольных подкладках сечением не менее 100 x 100 мм и длиной, равной длине платформы. Подкладки располагают одну от другой на расстоянии, равном половине диаметра, устанавливаемого на них рулона. Подкладку прибивают семнадцатью гвоздями длиной не менее 150 мм. Подкладки могут быть составными по длине из нескольких частей, укладываемых встык. Каждую составную часть подкладки прибивают не менее чем двумя гвоздями, при этом общее количество гвоздей должно быть не менее предусмотренного для цельной подкладки. На подкладки вплотную к обоим торцевым бортам платформы укладывают по одному поперечному бруску сечением 50 x 150 мм и длиной не менее 2000 мм, прикрепляемому к каждой подкладке двумя гвоздями диаметром 5 мм и длиной не менее 125 мм. В каждом ряду рулоны у торцевых бортов платформы укладывают горизонтально друг на друга до высоты не более половины наружного диаметра рулона, остальные размещают вертикально или с наклоном от середины платформы к торцевым бортам.
Рулоны каждого продольного полуряда, установленные наклонно или вертикально, скрепляют увязкой из проволоки диаметром 6 мм в две нити, пропуская проволоку через отверстия рулонов. Аналогично скрепляют рулоны, уложенные у торцевого борта горизонтально. Если между полурядами наклонно уложенных рулонов в середине платформы остается зазор, на каждую продольную подкладку укладывают вдоль платформы распорные бруски сечением не менее 75 x 100 мм и длиной, равной величине зазора.
Каждый распорный брусок прибивают к подкладке тремя гвоздями диаметром 5 мм и длиной не менее 125 мм. Во все стоечные скобы платформы устанавливают короткие стойки.
15.2. Рулоны (стопы) стальной ленты с открытыми торцами наружным диаметром от 1100 до 1400 мм включительно массой до 2 т с установкой на торец размещают в полувагонах двумя продольными рядами симметрично продольной и поперечной плоскостям симметрии вагона (рисунок 220). В середине вагона (если имеется такая возможность) устанавливают один рулон. Рулоны размещают на четырех продольных подкладках сечением не менее 50 x 100 мм в один или в два яруса. В полувагонах с люками подкладки укладывают на крышки люков между гофрами поперечных балок полувагона (рисунок 221, вид А). В полувагонах без люков допускается использование подкладок, составных по длине, при этом стык должен находиться на поперечных балках вагона. Расстояние между подкладками должно быть не менее 700 мм, а от подкладки до боковой стены и хребтовой балки - не более 400 мм.
Если в середине вагона между рулонами образуется зазор более 300 мм, то крепление групп рулонов производится одним из вариантов:
- в середине вагона в зазор устанавливают набор поперечных упорных брусков сечением не менее 50 x 100 мм и длиной, равной ширине полувагона, каждый из которых крепят к подкладкам гвоздями диаметром не менее 5 мм по одному в каждое соединение;
- обе группы рулонов ограждают поперечными упорными брусками сечением не менее 50 x 100 мм и длиной, равной ширине полувагона, которые прибивают к подкладкам двумя гвоздями диаметром не менее 5 мм по два гвоздя в каждое соединение. Между поперечными упорными брусками на подкладки устанавливают четыре продольных распорных бруска такого же сечения и длиной по месту, каждый из которых прибивают к подкладкам тремя гвоздями диаметром не менее 5 мм.
При размещении рулонов в один ярус у торцевого порожка устанавливают на ребро упорный брусок сечением не менее 60 x 100 мм и длиной 2800 мм, который прибивают к подкладкам гвоздями диаметром 5 мм и длиной 150 мм - по одному в каждое соединение. При размещении рулонов в два яруса торцевые двери ограждают щитами в соответствии с требованиями пункта 1.4 настоящей главы. Люковые закидки полувагона увязывают в соответствии с пунктом 1.5 настоящей главы.
1 - подкладка; 2 - торцевой щит
15.3. Рулоны (стопы) стальной ленты с открытыми торцами наружным диаметром от 1100 до 1400 мм включительно, шириной до 800 мм включительно, массой от 1,5 до 3,5 т включительно с установкой на торец в полувагоне размещают в один или два яруса симметрично относительно продольной и поперечной плоскостей симметрии вагона (рисунок 221).
Рулоны размещают на продольных подкладках сечением не менее 50 x 100 мм, которые укладывают на крышки люков между гофрами поперечных балок полувагона (рисунок 221, вид А). В полувагонах без люков допускается использование подкладок, составных по длине, при этом стык должен находиться на поперечных балках вагона. По ширине кузова подкладки располагают аналогично пункту 15.2 настоящей главы.
На подкладки вплотную к торцевым порожкам (стенам) полувагона укладывают на ребро упорный брусок сечением не менее 60 x 100 мм и длиной 2800 мм, который прибивают к подкладкам гвоздями диаметром 5 мм и длиной 150 мм - по одному в каждое соединение.
В нижнем ярусе размещают от 17 до 20 рулонов, при этом крайние рулоны размещают вплотную к упорному бруску. Если в середине вагона между рулонами образуется зазор более 300 мм, то между двумя группами рулонов устанавливают один рулон над хребтовой балкой или крепление рулонов производится аналогично пункту 15.2 настоящей главы.
1 - подкладка; 2 - упорный брусок
Рулоны верхнего яруса размещают непосредственно на рулоны нижнего яруса в один ряд над хребтовой балкой со смещением вдоль вагона на величину половины диаметра рулона. Допускается в торцах полувагона устанавливать рулоны двумя рядами, в середине - в один ряд. Если в верхнем ярусе рулоны не могут быть размещены по всей длине полувагона, рулоны размещают двумя группами в торцах вагона.
Люковые закидки полувагона увязывают в соответствии с пунктом 1.5 настоящей главы.
15.4. Рулоны с открытыми торцами наружным диаметром от 1100 до 1400 мм включительно, массой от 3,5 до 4,5 т включительно с установкой на торец размещают в полувагоне на подкладках сечением не менее 50 x 100 мм в один ярус по высоте, в два-три ряда по ширине симметрично относительно продольной и поперечной плоскостей симметрии вагона (рисунок 222). Подкладки укладывают на крышки люков между гофрами поперечных балок полувагона (рисунок 221, вид А). В полувагонах без люков допускается использование подкладок, составных по длине, при этом стык должен находиться на поперечных балках вагона. По ширине кузова подкладки располагают аналогично пункту 15.2 настоящей главы.
В середине вагона (если имеется такая возможность) устанавливают один рулон. При наличии между двумя группами рулонов свободного пространства более 300 мм крепление рулонов производится в соответствии с пунктом 15.2 настоящей главы.
1 - подкладка; 2 - распорный брусок; 3 - упорный брусок
У торцевого порожка устанавливают на ребро упорный брусок сечением не менее 60 x 100 мм и длиной 2800 мм, который прибивают к подкладкам гвоздями диаметром 5 мм и длиной 150 мм - по одному в каждое соединение.
Люковые закидки полувагона увязывают в соответствии с пунктом 1.5 настоящей главы.
15.5. Рулоны с открытыми торцами наружным диаметром до 1400 мм включительно, массой от 3,5 до 6,0 т включительно в полувагоне размещают двумя группами на подкладках сечением 50 x 150 мм (рисунок 223). Допускается размещение одиночного рулона в середине полувагона.
1, 2 - подкладки; 3 - торцевой упорный брусок;
4 - продольный упорный брусок; 5 - поперечный упорный брусок
Три подкладки (поз. 1) укладывают вдоль полувагона над хребтовой балкой и на расстоянии 300 - 350 мм от нее по всей длине кузова. На расстоянии 250 - 300 мм от боковых стен полувагона укладывают ряды подкладок (поз. 2). Длина каждого ряда подкладок (поз. 2) должна быть не менее длины группы рулонов.
Подкладки (поз. 2) укладывают на крышки люков между гофрами поперечных балок полувагона (рисунок 223, вид А). Длина подкладок (поз. 1) равна длине кузова полувагона (допускаются составные по длине). Для выравнивания уровня пола допускается производить установку подкладок (основных и выравнивающих) в соответствии с требованиями пункта 15.6 настоящей главы.
В полувагонах без люков используются подкладки, составные по длине.
На подкладки поперек вагона вплотную к каждому торцевому порожку (стене) устанавливают на ребро упорный брусок (поз. 3) сечением не менее 60 x 100 и длиной 2800 мм, который прибивают к подкладкам гвоздями диаметром 5 мм и длиной 150 мм - по одному в каждое соединение.
Рулоны устанавливают вплотную к торцевому упорному бруску и боковой стене вагона. Зазоры в продольном направлении между соседними рулонами, а также между рулоном и упорным брусом, рулоном и боковой стеной вагона допускаются не более 50 мм. Одиночный рулон в середине полувагона размещают на трех центральных подкладках.
От продольного смещения каждую группу рулонов закрепляют поперечными упорными брусками (поз. 5) сечением не менее 100 x 100 мм и длиной 2800 (1600) мм, которые прибивают к подкладкам двумя гвоздями диаметром 6 мм и длиной не менее 150 мм в каждом соединении. Упорные бруски подкрепляют продольными брусками (поз. 4) размерами не менее 60 x 100 x 500 мм, которые устанавливают на подкладки и прибивают шестью гвоздями диаметром 6 мм и длиной 150 мм каждый. Если расстояние между группами рулонов менее 1000 мм, то вместо продольных упорных брусков устанавливают продольные распорные бруски сечением 50 x 100 мм и длиной по месту, каждый из которых прибивают к подкладкам шестью гвоздями диаметром 5 мм.
Люковые закидки полувагона увязывают в соответствии с пунктом 1.5 настоящей главы.
15.6. Рулоны с открытыми торцами наружным диаметром до 1400 мм включительно, массой от 4,0 до 8,0 т включительно в полувагоне размещают на подкладках тремя группами (рисунок 224).
1 - подкладка; 2 - выравнивающая подкладка; 3 - основная
подкладка; 4 - упорный брусок; 5 - поперечный упорный
брусок; 6 - продольный упорный брусок; 7 - проволочная
обвязка; 8 - S-образная скоба; 9 - среднее (нижнее)
увязочное устройство
Установка подкладок производится следующим образом. На гофры крышек люков и хребтовую балку вдоль полувагона укладывают ряды из выравнивающих подкладок (поз. 2) сечением 50 x 100 мм и длиной, равной расстоянию между гофрами соседних поперечных балок полувагона. При этом под группы в торцах полувагона укладывают четыре ряда выравнивающих подкладок - на расстоянии 300 - 350 мм от оси хребтовой балки и на расстоянии 250 - 300 мм от боковых стен; под центральную группу рулонов укладывают два ряда выравнивающих подкладок на расстоянии 300 - 350 мм от оси хребтовой балки. На выравнивающие подкладки укладывают основные подкладки (поз. 3) сечением 50 x 150 мм и длиной, превышающей продольный размер группы рулонов на величину, необходимую для установки упорных брусков. В торцах полувагона основные подкладки укладывают, начиная от торцевых дверей (стен) вагона. На основные подкладки поперек вагона вплотную к каждому торцевому порожку (стене) устанавливают упорный брусок (поз. 4) размерами не менее 60 x 100 x 2800 мм, который прибивают к подкладкам гвоздями диаметром не менее 5 мм и длиной не менее 150 мм - по одному в каждое соединение. Над хребтовой балкой укладывают подкладку (поз. 1) сечением 50 x 150 мм между упорными брусками (поз. 4) по всей длине вагона. Допускается основные подкладки изготавливать составными по длине из нескольких частей при условии их стыковки на поперечных балках или на выравнивающих подкладках под рулонами. Основные подкладки прибивают к каждой выравнивающей подкладке не менее чем тремя гвоздями диаметром не менее 5 мм и длиной не менее 100 мм.
В полувагонах без разгрузочных люков выравнивающие подкладки не устанавливают.
Рулоны устанавливают по возможности вплотную к торцевым упорным брускам и боковым стенам полувагона. Зазоры между соседними рулонами группы, а также между рулоном и упорным брусом допускаются не более 30 мм.
От продольного смещения каждую группу рулонов закрепляют поперечными упорными брусками (поз. 5) сечением не менее 100 x 200 мм или двумя брусками сечением 100 x 100 мм и длиной, равной ширине группы. Упорные бруски устанавливают вплотную к рулонам. Упорные бруски прибивают к подкладкам двумя гвоздями диаметром не менее 5 мм и длиной не менее 100 мм в каждом соединении. Упорные бруски подкрепляют продольными упорными брусками (поз. 6) размерами не менее 50 x 100 x 500 мм. Продольные бруски устанавливают на средних подкладках и прибивают шестью гвоздями диаметром 6 мм и длиной не менее 150 мм каждый. Если расстояние между группами рулонов менее 1000 мм, то вместо продольных упорных брусков устанавливают продольные распорные бруски сечением 50 x 100 мм и длиной по месту, каждый из которых прибивают к подкладкам шестью гвоздями диаметром 5 мм.
Допускается размещать в середине полувагона одиночный рулон с соотношением между его диаметром и высотой не менее 0,67 при условии закрепления рулона от опрокидывания двумя обвязками из проволоки диаметром 6 мм в две нити (рисунок 224, вид В). Каждую обвязку закрепляют за S-образную скобу, изготовленную из проволоки диаметром не менее 8 мм (поз. 8), на высоте 2/3 высоты рулона. Концы обвязки закрепляют за средние или нижние увязочные устройства, расположенные на стороне полувагона, противоположной от S-образной скобы.
Люковые закидки полувагона увязывают в соответствии с пунктом 1.5 настоящей главы.
15.7. Рулоны с открытыми торцами наружным диаметром до 1400 мм включительно массой от 6,0 до 9,0 т включительно размещают в полувагоне тремя группами (рисунки 224 и 225).
1 - подкладка; 2 - выравнивающая подкладка; 3 - основная
подкладка; 4 - упорный брусок; 5 - поперечный упорный
брусок; 6 - продольный упорный брусок
Размещение подкладок, крепление рулонов упорными брусками производят в соответствии с требованиями пункта 15.6 настоящей главы.
Люковые закидки полувагона увязывают в соответствии с пунктом 1.5 настоящей главы.
В полувагонах без разгрузочных люков выравнивающие подкладки не устанавливают.
15.8. Рулоны с открытыми торцами наружным диаметром до 1400 мм включительно, массой от 9 до 11 т включительно в полувагоне размещают на подкладках двумя группами, расположенными в торцевых частях, и один рулон - в середине кузова (рисунок 226).
1 - выравнивающая подкладка; 2 - подкладка; 3 - продольный
брусок; 4 - упорный брусок
При перевозке рулонов в полувагонах с разгрузочными люками укладывают поперечные выравнивающие подкладки сечением 50 x 150 мм и длиной, равной ширине кузова вагона, расположенные между гофрами люков и опирающиеся на хребтовую балку и угольники нижней обвязки. Выравнивающие подкладки размещают симметрично относительно плоскости симметрии рулона на расстоянии между ними, равном половине наружного диаметра рулона. На выравнивающие подкладки параллельно друг другу вдоль вагона укладывают пять подкладок сечением не менее 50 x 150 мм, при этом среднюю подкладку укладывают над хребтовой балкой. Три средние подкладки размещают по всей длине кузова вагона, а крайние - на длине, превышающей длину группы рулонов не менее чем на 600 мм. Допускается три средние подкладки изготавливать составными по длине из двух частей. Расстояние между продольными осями подкладок должно быть 450 - 500 мм. Подкладки прибивают к выравнивающим подкладкам гвоздями диаметром 5 мм и длиной не менее 100 мм по два гвоздя на каждое соединение. Вплотную к торцевым порожкам вагона на подкладки укладывают упорные бруски сечением не менее 90 x 90 мм и длиной, равной ширине кузова вагона, которые прибивают к подкладкам гвоздями диаметром 6 мм и длиной 150 мм по два гвоздя на каждую подкладку. Рулоны устанавливают, по возможности, вплотную к торцевому упорному бруску и друг к другу, при этом у торцевого порожка устанавливают один рулон. Зазоры между соседними рулонами, а также между рулоном и торцевым бруском должны быть не более 30 мм. От продольных перемещений крайние группы рулонов закрепляют упорными брусками сечением не менее 100 x 200 мм или двумя брусками сечением 100 x 100 мм и длиной 2800 мм. Центральный рулон закрепляют упорными брусками сечением не менее 100 x 200 мм или двумя брусками сечением 100 x 100 мм и длиной не менее диаметра рулона. Бруски прибивают гвоздями диаметром 6 мм и длиной не менее 150 мм по два гвоздя на каждую подкладку. Упорные бруски подкрепляют продольными брусками сечением не менее 50 x 150 мм. На трех центральных подкладках бруски устанавливают враспор между упорными брусками, на подкладках у стен устанавливают бруски длиной не менее 500 мм. Подкрепляющие бруски прибивают к подкладкам гвоздями длиной 120 мм по шесть в каждый брусок.
Люковые закидки полувагона увязывают в соответствии с пунктом 1.5 настоящей главы.
15.9. Рулоны с открытыми торцами наружным диаметром от 1450 до 1600 мм включительно, массой от 9 до 15 т включительно размещают в полувагоне на подкладках двумя группами, расположенными в торцевых частях, и один рулон - в середине кузова (рисунок 227).
1 - выравнивающая подкладка; 2 - подкладка; 3 - продольный
брусок; 4 - упорный брусок
При перевозке рулонов в полувагонах с разгрузочными люками между поперечными балками укладывают выравнивающие подкладки в соответствии с требованиями пункта 15.8 настоящей главы. Среднюю подкладку размещают над хребтовой балкой, остальные - параллельно средней на расстоянии 300 - 350 мм и 650 - 700 мм друг от друга. Подкладки могут быть составными по длине (при стыковании их на поперечных балках). Рулоны устанавливают по возможности вплотную к торцевому упорному бруску, боковым стенам вагона и друг к другу. Торцевые упорные бруски сечением не менее 100 x 100 x 2800 мм прибивают гвоздями диаметром 6 мм и длиной не менее 150 мм по два гвоздя на каждую подкладку.
От продольного смещения каждый рулон ограждают поперечными упорными брусками сечением не менее 100 x 100 мм и длиной:
- для крайних рулонов, расположенных вплотную к торцевому упорному бруску - не менее 1200 мм;
- для всех остальных рулонов - не менее диаметра рулона.
Поперечные упорные бруски прибивают гвоздями диаметром 6 мм и длиной не менее 150 мм по два гвоздя на каждую подкладку.
Упорные бруски подкрепляют продольными брусками сечением не менее 50 x 150 мм. На трех центральных подкладках бруски устанавливают в распор между упорными брусками, на подкладках у стен устанавливают бруски длиной не менее 500 мм. Подкрепляющие бруски прибивают к подкладкам гвоздями длиной 120 мм по шесть в каждый брусок.
Люковые закидки полувагона увязывают в соответствии с пунктом 1.5 настоящей главы.
15.10. Рулоны с открытыми торцами наружным диаметром до 1700 мм включительно массой от 9 до 12,5 т включительно размещают в полувагоне тремя группами, расположенными у торцов вагона и в его середине (рисунок 228).
Каждый рулон устанавливают не менее чем на две подкладки (поз. 1) размерами 50 x 150 x 2850 мм, которые располагают симметрично относительно рулона между гофрами люков и опираются на хребтовую балку и угольники нижней обвязки. Вплотную к каждому торцевому порожку (стене) укладывают упорный брусок (поз. 2) размерами не менее 100 x 100 x 2800 мм. Рулоны устанавливают по возможности вплотную к торцевому упорному бруску и один к другому в группе. Зазоры между соседними рулонами группы, а также между рулоном и упорным бруском должны быть не более 50 мм.
От продольного смещения группы рулонов закрепляют распорными рамами, состоящими из двух упорных брусков поз. 6 сечением не менее 100 x 100 мм и длиной 2800 мм и двух распорных брусков (поз. 4) сечением не менее 100 x 100 мм и длиной по месту. Распорные бруски укладывают на расстоянии 200 - 250 мм один от другого и скрепляют двумя досками (поз. 3) сечением не менее 50 x 100 мм и длиной 2800 мм. Доски прибивают к распорным брускам гвоздями диаметром 6 мм и длиной 150 мм по три в каждое соединение. При размещении семи рулонов распорную раму не устанавливают, если зазор между группами рулонов в продольном направлении не превышает 200 мм.
1 - подкладка; 2 - упорный брусок; 3 - скрепляющая доска;
4 - распорный брусок; 5, 6 - упорные бруски
От поперечного смещения каждую крайнюю группу рулонов закрепляют четырьмя упорными брусками (поз. 5) размерами не менее 50 x 100 x 1100 мм, которые прибивают к поперечным подкладкам гвоздями диаметром 5 мм и длиной 100 мм по три в каждое соединение.
Люковые закидки полувагона увязывают в соответствии с пунктом 1.5 настоящей главы.
15.11. Рулоны с открытыми торцами наружным диаметром до 1700 мм включительно массой от 10 до 17 т включительно размещают в полувагонах в соответствии со схемой, приведенной на рисунке 229.
1 - выравнивающая подкладка; 2 - основная подкладка;
3, 4, 6 - упорный брусок; 5, 7 - брусок
В полувагонах с разгрузочными люками под каждый рулон укладывают не менее чем по две поперечные выравнивающие подкладки (поз. 1) размерами 50 x 150 x 2800 мм. Под рулоны в торцах полувагона выравнивающие поперечные подкладки укладывают на расстоянии 550 - 850 мм друг от друга, в середине вагона укладывают четыре выравнивающие подкладки - по две под каждый рулон.
Допускается выравнивающие подкладки изготавливать составными по высоте: на доске размерами 25 x 150 x 2800 мм по концам устанавливают две доски размерами 25 x 150 x 1200 мм, которые прибивают гвоздями диаметром 5 мм и длиной 50 мм по три штуки каждую.
На выравнивающие подкладки параллельно продольной плоскости симметрии вагона укладывают три основные подкладки (поз. 2) сечением не менее 50 x 150 мм и длиной, равной длине кузова вагона. Допускается подкладки изготавливать составными по длине при условии их стыковки на поперечных балках или выравнивающих подкладках под рулонами. При этом среднюю подкладку укладывают над хребтовой балкой, а две другие - на расстоянии от нее, равном половине внутреннего диаметра размещаемых рулонов. Подкладку прибивают к выравнивающим подкладкам двумя гвоздями диаметром 5 мм и длиной не менее 100 мм в каждом пересечении. На подкладки поперек вагона вплотную к каждому торцевому порожку (стене) укладывают упорный брусок (поз. 3) сечением не менее 50 x 100 мм и длиной 2800 мм, который прибивают к подкладкам гвоздями диаметром 5 мм и длиной не менее 100 мм - по одному в каждое соединение.
Рулоны устанавливают вплотную к упорному торцевому бруску и один к другому в средней группе.
От продольного смещения крайние рулоны и среднюю группу рулонов закрепляют упорными брусками (поз. 4) размерами не менее 50 x 100 x 1600 мм. Упорные бруски прибивают к подкладкам тремя гвоздями диаметром 5 мм и длиной не менее 100 мм в каждом пересечении. Упорные бруски подкрепляют продольными брусками (поз. 5) размерами не менее 50 x 100 x 500 мм, которые прибивают к подкладкам гвоздями диаметром 5 мм и длиной не менее 100 мм по шесть штук в каждый брусок.
От поперечного смещения каждый крайний рулон закрепляют двумя упорными брусками (поз. 6) размерами не менее 100 x 100 x 1100 мм, которые прибивают к выравнивающим подкладкам гвоздями диаметром 5 мм и длиной не менее 150 мм по три штуки в каждом пересечении. Упорные бруски подкрепляют двумя поперечными брусками (поз. 7) размерами не менее 100 x 100 x 400 мм, которые прибивают гвоздями диаметром 6 мм и длиной не менее 150 мм по три штуки в каждый.
Люковые закидки полувагона увязывают в соответствии с пунктом 1.5 настоящей главы.
15.12. Размещение и крепление в полувагонах рулонов листового металла (упакованных и с открытыми торцами) наружным диаметром от 860 до 1350 мм включительно, шириной полосы от 1000 до 1600 мм включительно, массой от 3 до 10 т включительно с использованием комплекта из двух металлических рам, изготовленных по чертежу 005Д-1В АО "Северсталь".
Рамы (рисунок 230) являются многооборотным средством крепления. Рамы изготовлены из сварных балок коробчатого сечения. На верхние плоскости продольных балок по длине 4200 мм приварены угольники, которые образуют три ложемента (секции) для укладки рулонов на образующую. Рамы размещают в вагоне вплотную к торцевым порожкам симметрично относительно продольной и поперечной плоскостям симметрии вагона. Зазоры более 50 мм между торцами поперечных балок рамы и боковыми стенами вагона должны быть заполнены брусками сечением не менее 50 x 50 мм и длиной не менее 500 мм. В свободное пространство между рамами укладывают три продольных распорных бруска сечением не менее 90 x 90 мм, которые фиксируют двумя поперечными скрепляющими досками сечением не менее 25 x 100 мм и длиной, равной ширине вагона. Скрепляющие доски прибивают к распорным брускам гвоздями длиной 120 мм, по два гвоздя в каждое соединение.
Рулоны размещают продольными рядами в ложементы рам симметрично относительно продольной плоскости симметрии вагона. Суммарные массы рулонов на каждой раме должны быть равны. Варианты размещения рулонов приведены на рисунке 231. Размещение рулонов производят, начиная от торцевых дверей вагона. В крайние секции шириной 800 мм допускается укладывать рулоны наружным диаметром не менее 960 мм. Рулоны в крайних ячейках центральной секции укладывают вплотную к концевым поперечным балкам. Крайние рулоны рядов, а также всей группы на раме должны быть расположены вплотную к концевым поперечным балкам соответствующей секции. Пространство величиной 50 мм и более между торцами рулонов должно быть заполнено брусками сечением (50 - 100) x 100 мм и длиной не менее 900 мм, которые укладывают на угольники ложементов.
1 - рама; 2 - брусок; 3 - распорный брусок;
4 - скрепляющая доска
Схема размещения и крепления рам при возврате приведена на рисунке 232. Рамы в полувагоне размещают двумя штабелями по длине вплотную к торцевым порожкам. В каждом штабеле рамы объединяют увязками из проволоки диаметром 4 мм в две нити.
1 - рама; 2 - увязка
15.13. Размещение и крепление в полувагонах рулонов листовой стали (упакованных и с открытыми торцами) наружным диаметром от 1000 до 1300 мм включительно, шириной полосы от 1000 до 1500 мм включительно, массой от 3,3 до 9,8 т включительно, уложенных на образующую, с использованием комплекта из двух металлических поддонов, изготовленных по чертежу М39-87725СБ ОАО "Запорожсталь".
Поддон размерами 5980 x 2800 x 340 мм, массой 1,85 т является многооборотным средством крепления и представляет собой плоскую цельносварную конструкцию (рисунок 233).
Комплект из двух поддонов устанавливают непосредственно на пол вагона симметрично относительно его продольной и поперечной плоскостей симметрии, при этом торцы поддонов с упорными балками должны быть обращены к торцу вагона (рисунок 234).
Рисунок 234 - Размещение комплекта поддонов в полувагоне:
а - с длиной кузова до 12228 мм включительно;
б - с длиной кузова свыше 12228 мм
1 - распорный брусок; 2 - скрепляющая доска
В полувагоне с длиной кузова до 12228 мм включительно поддоны устанавливают вплотную к торцевым порожкам полувагона (рисунок 234а). В полувагоне с длиной кузова свыше 12228 мм поддоны устанавливают вплотную друг к другу в середине кузова (рисунок 234б), в зазор между порожком (торцевой стеной) вагона и торцом поддона устанавливают четыре распорных бруска сечением не менее 100 x 100 мм и длиной по месту. Распорные бруски соединяют скрепляющей доской размерами не менее 40 x 100 x 2800 мм, которую прибивают к каждому бруску двумя гвоздями диаметром 5 мм и длиной 120 мм. Допускается зазоры заполнять набором поперечных брусков сечением не менее 100 x 100 мм.
В зависимости от массы рулонов в вагоне размещают от 6 до 15 рулонов, которые укладывают в торцевые, промежуточные и средние ячейки поддонов в соответствии со схемами, приведенными на рисунках 235 - 238.
1 - поддон; 2 - рулон; 3 - упорный брусок
1 - поддон; 2 - рулон; 3 - упорный брусок
1 - поддон; 2 - рулон; 3 - упорный брусок
1 - поддон; 2 - рулон; 3 - упорный брусок
При наличии зазора более 300 мм между рулоном и упорными элементами конструкции поддонов (рисунки 235 - 238) рулоны закрепляют упорными брусками размерами 100 x 100 x 2800 мм, устанавливаемыми в специальные пазы на продольных балках поддона. Допускается зазор между торцами рулонов и упорным бруском не более 100 мм.
Схема размещения и крепления поддонов при возврате приведена на рисунке 239. Поддоны размещают в полувагоне двумя штабелями по семь и менее штук в штабеле. Допускается возвышение элементов поддона над верхним обвязочным брусом полувагона не более 100 мм.
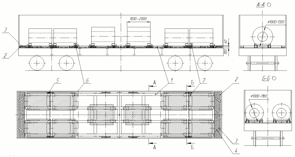
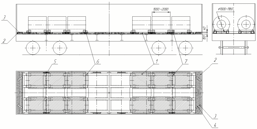
15.14. Размещение и крепление в полувагонах рулонов листовой стали (упакованных и с открытыми торцами) наружным диаметром от 1100 до 1600 мм включительно, шириной полосы от 900 до 1800 мм включительно, массой от 5 до 18 т включительно с использованием комплекта из двух металлических рам, изготовленных по чертежу 14775-1.1СБ ОАО "Северсталь".
Рамы (рисунок 240) являются многооборотным средством крепления. Рамы изготовлены из сварных балок коробчатого сечения, которые образуют продольный ложемент для укладки рулонов на образующую. Рамы имеют одну упорную торцевую стенку и передвижные поперечные балки, предназначенные для закрепления рулонов по торцам.
1 - рама; 2 - передвижная балка
Балки фиксируют на верхней плоскости рамы вертикальными фиксаторами, устанавливаемыми в отверстия рамы. Отверстия расположены с шагом 90 мм.
Рамы укладывают в вагоне вплотную к торцевым порожкам торцами с упорными стенками. В свободное пространство между рамами укладывают три продольных распорных бруска сечением не менее 90 x 90 мм, которые фиксируют двумя поперечными скрепляющими досками сечением не менее 25 x 100 мм и длиной, равной ширине вагона.
Скрепляющие доски прибивают к распорным брускам гвоздями диаметром 5 мм и длиной 120 мм, по два гвоздя в каждое соединение.
Варианты размещения рулонов приведены на рисунке 241.
1 - рама; 2 - передвижная балка; 3 - продольный распорный
брусок; 4 - поперечный распорный брусок;
5 - скрепляющая доска
Рулоны должны быть размещены симметрично относительно поперечной и продольной плоскостей симметрии вагона. Размещение рулонов производят, начиная от торцевых дверей вагона (вплотную к упорным стенкам рам). Рулоны размещают вплотную друг к другу. Группы рулонов на каждой раме закрепляют от продольного смещения передвижными балками, располагаемыми по возможности вплотную к торцам рулонов. Зазоры величиной 40 мм и более между рулонами или между рулоном и балкой, образующиеся из-за дискретности расположения балок, должны быть заполнены брусками сечением (40 - 90) x 90 мм и длиной не менее 2000 мм, которые укладывают на верхнюю плоскость рамы.
Допускается размещать рулоны на концах рам без упорных стенок (рисунок 241а). В этом случае рулон ограждается дополнительной передвижной балкой, а пространство между рулонами, размещенными таким образом, должно быть заполнено поперечными брусками сечением не менее 90 x 90 мм и длиной 2800 мм, которые прибивают к продольным распорным брускам, уложенным между рамами.
Допускается также размещение одного рулона в центре вагона с опорой на обе рамы (рисунок 241д, е). В этом случае в свободное пространство между рамами укладывают два продольных распорных бруска сечением не менее 90 x 90 мм, на которые прибивают по две поперечных скрепляющих доски сечением не менее 25 x 100 мм в распор между рулоном и боковой стеной полувагона. Центральный рулон ограждают двумя дополнительными передвижными балками с соблюдением вышеизложенных требований.
Схема размещения и крепления рам в полувагоне при возврате приведена на рисунке 242.
1 - рама в сборе с поперечной балкой; 2 - увязка;
3 - продольный распорный брусок; 4 - скрепляющая доска;
5 - фиксатор; 6 - увязка
Рамы размещают в вагоне двумя штабелями по длине, в четыре яруса по высоте, вплотную к торцевым порожкам. Передвижные поперечные балки должны быть закреплены на рамах фиксаторами на расстоянии 700 - 1000 мм от свободного торца рамы; фиксаторы должны быть закреплены на балке увязками из проволоки диаметром 4 мм в две нити. В каждом штабеле рамы скрепляют двумя увязками из проволоки диаметром 6 мм в две нити. В свободное пространство между штабелями на пол вагона укладывают три продольных распорных бруска сечением не менее 90 x 90 мм, которые фиксируют двумя поперечными скрепляющими досками сечением 25 x 100 мм и длиной, равной ширине вагона. Скрепляющие доски прибивают к распорным брускам гвоздями длиной 120 мм, по два гвоздя в каждое соединение.
15.15. Размещение и крепление в полувагонах рулонов листовой стали (упакованных и с открытыми торцами) наружным диаметром от 1000 до 1500 мм включительно, шириной полосы от 800 до 1500 мм включительно, массой от 4 до 16 т включительно с использованием комплекта из двух металлических поддонов, изготовленных по чертежу ПК 02031.079.0Г ОАО "Запорожсталь".
Поддон размерами 6000 x 2800 x 420 мм массой 2,5 т является многооборотным средством крепления и представляет собой сварную металлическую конструкцию с желобом по оси поддона с передвижным упором (рисунок 243).
1 - поддон; 2 - передвижной упор; 3 - трос металлический;
4 - ячейка для передвижного упора; 5 - отверстия
для крепления передвижного упора
В полувагоне с длиной кузова до 12228 мм включительно поддоны устанавливают вплотную к торцевым порожкам полувагона (рисунок 244а). В полувагоне с длиной кузова свыше 12228 мм поддоны устанавливают вплотную друг к другу в середине кузова (рисунок 244б), в зазор между порожком (торцевой стеной) вагона и торцом поддона устанавливают четыре распорных бруска сечением не менее 100 x 100 мм и длиной по месту. Распорные бруски соединяют скрепляющей доской размерами (25 - 40) x 100 x 2800 мм. Доску прибивают к каждому бруску двумя гвоздями диаметром 5 мм и длиной 120 мм. Допускается заполнять зазоры набором поперечных брусков сечением не менее 100 x 100 мм или устанавливать поперечный упорный брусок 100 x 100 x 2800 мм между порожком (торцевой стеной) и распорными брусками.
Рисунок 244 - Размещение комплекта поддонов в полувагоне:
а - с длиной кузова до 12228 мм включительно; б - с длиной
кузова свыше 12228 мм
1 - распорный брусок; 2 - скрепляющая доска
Рулоны наибольшей в полувагоне массы размещают вплотную к торцевым упорам поддона (в торцах полувагона), с последовательным уменьшением массы к середине вагона (рисунок 245).
В зависимости от применяемых при выгрузке технологий и механизмов между рулонами могут устанавливаться бруски размерами 80 x 80 x 1700 мм с фиксацией на раме двумя гвоздями диаметром 5 мм и длиной не менее 150 мм.
Каждую группу рулонов на поддоне закрепляют от продольного перемещения передвижными упорами, которые вставляют пальцами в отверстия на поддоне и шплинтуют проволокой диаметром не менее 6 мм. При наличии между рулонами и упорами зазора более 30 мм в этот зазор устанавливают брусок (доску) сечением (25 - 75) x 100 мм и длиной 1700 мм, которую прибивают к упору через отверстия в нем гвоздями длиной не менее 80 мм.
1 - рулон; 2 - поддон; 3 - упор; 4 - распорный брусок;
5 - брусок (доска)
Допускается размещение одного рулона посередине вагона на стыке двух поддонов, при этом он должен быть закреплен с обеих сторон передвижными упорами (рисунок 246).
1 - рулон; 2 - поддон; 3 - упор; 4 - брусок;
5 - брусок (доска)
Масса рулонов на каждом поддоне должна быть не более половины грузоподъемности вагона с учетом массы поддонов.
Схема размещения и крепления поддонов, оборудованных одним или двумя передвижными упорами, при их возврате приведена на рисунке 247. Поддоны размещают в полувагоне двумя штабелями по пять и менее штук в штабеле. Допускается возвышение элементов поддона над верхним обвязочным брусом полувагона не более 120 мм.
Передвижной упор, соединенный с поддоном металлическим тросом (поз. 3), размещают в ячейке (поз. 2) поддона. При отсутствии металлического троса или его разъединении с поддоном или передвижным упором этот упор размещают на поддоне, расположенном в одном из нижних ярусов штабеля. При погрузке порожних поддонов должно обеспечиваться соблюдение условий погрузки передвижных упоров на поддонах, в том числе, комплектность упоров.
1 - поддон; 2 - ячейка с передвижным упором;
3 - трос металлический
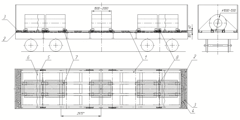
15.16. Размещение и крепление в полувагонах рулонов листовой стали (упакованных и с открытыми торцами) наружным диаметром от 1300 до 2150 мм включительно, шириной полосы от 900 до 1800 мм включительно, массой от 5 до 30 т включительно с использованием комплекта из двух металлических рам, изготовленных по чертежу 64295-1.1СБ ОАО "Северсталь".
Рамы (рисунок 248) являются многооборотным средством крепления. Рамы изготовлены из сварных балок коробчатого сечения и листового металла и имеют продольный ложемент для укладки рулонов на образующую.
1 - рама; 2 - передвижная упорная балка
Рамы имеют одну упорную торцевую стенку и передвижные упорные балки, предназначенные для закрепления рулонов по торцам. Балки крепятся на верхней плоскости рамы штырями-фиксаторами, вставляемыми в отверстия рамы. Отверстия расположены с шагом 80 мм. Шаг фиксации упорных балок - 40 мм.
Рамы размещают в полувагоне торцами с упорными стенками вплотную к торцевым порожкам. При величине зазора между рамами в середине полувагона более 350 мм в него устанавливают распорную раму из упорных и распорных брусков сечением не менее 90 x 90 мм (рисунок 249б, в, г, д), при этом упорные бруски должны иметь длину, равную ширине кузова, а распорные - по месту; расстояние между крайними распорными брусками - 1800 мм. Упорные и распорные бруски скрепляют между собой строительными скобами из прутка диаметром не менее 8 мм - по одной скобе в каждое соединение. Зазор между рамами величиной менее 350 мм заполняют пакетом брусков сечением (50 - 90) x 90 мм, скрепленных между собой гвоздями длиной не менее 120 мм непосредственно либо с помощью накладок из доски сечением 25 x 100 мм; при этом один брусок должен иметь длину не менее 2700 мм, остальные - не менее 1900 мм. Между рамами и боковыми стенами напротив боковых стоек вагона устанавливают распорные рамы из брусков сечением не менее 90 x 90 мм, скрепляемых гвоздями диаметром 6 мм и длиной 150 мм по одному в каждое соединение. Длина рам (вдоль вагона) - не менее 500 мм, ширина - по месту. Между торцами боковых упорных угольников рам и боковыми стенами вагона устанавливают распорные бруски сечением не менее 90 x 90 мм и длиной не менее 230 мм. Боковые распорные рамы и бруски должны быть закреплены от продольного смещения увязками из проволоки диаметром не менее 4 мм, закрепляемыми за нижние увязочные устройства полувагона.
Варианты размещения рулонов приведены на рисунке 249.
1 - рама; 2 - передвижная упорная балка; 3 - пакет распорных
брусков; 4 - боковая распорная рама; 5 - боковой распорный
брусок; 6 - центральная распорная рама
Рулоны должны быть размещены симметрично относительно поперечной плоскости симметрии вагона.
Рулоны размещают, начиная от торцевых дверей (стен) вагона вплотную к упорным стенкам рам. Рулоны должны быть размещены по возможности вплотную друг к другу. Группы рулонов на каждой раме закрепляют от продольного смещения передвижными упорными балками, располагаемыми по возможности вплотную к торцам рулонов. Зазоры величиной более 40 мм между торцами рулонов или между рулоном и балкой должны быть заполнены брусками сечением 40 x 90 мм и длиной не менее 2000 мм, которые укладывают на верхнюю плоскость рамы.
Допускается размещение одного рулона в центре вагона с опорой на обе рамы (рисунок 249в, г, д). В этом случае рулон ограждают двумя дополнительными передвижными балками с соблюдением вышеизложенных требований.
Схема размещения и крепления рам при возврате приведена на рисунке 250. Рамы размещают в вагоне двумя штабелями по длине, в три яруса по высоте, вплотную к торцевым порожкам. Передвижные поперечные балки должны быть закреплены на рамах штырями-фиксаторами; штыри-фиксаторы должны быть закреплены на балке увязками из проволоки диаметром 4 мм в две нити. В каждом штабеле рамы скрепляют двумя увязками из проволоки диаметром 6 мм в две нити. В свободное пространство между штабелями рам и между штабелями и боковыми стенами на пол вагона укладывают пакет брусков или распорную клетку так же, как и при погрузке рулонов.
1 - рама в сборе с поперечной балкой; 2 - увязка;
3 - центральная распорная рама (пакет брусков); 4 - боковая
распорная рама; 5 - увязка; 6 - штырь-фиксатор
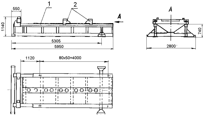
15.17. Размещение и крепление в полувагонах рулонов листовой стали с открытыми торцами наружным диаметром от 1000 до 2000 мм включительно, шириной полосы от 470 до 1600 мм включительно, массой от 2,0 до 21 т включительно, с использованием многооборотных металлических рам конструкции ОАО "Новолипецкий металлургический комбинат" (ТУ 14-106-586-97, чертеж 69581-002, чертеж N ТБ-7158).
Рама (рисунок 251) представляет собой стальную сварную конструкцию из трубчатого профиля прямоугольного сечения. Рама состоит из четырех продольных балок (поз. 1), усиленных приваренной стальной полосой (поз. 5), торцевой (поз. 2) и концевой (поз. 3) упорных балок, промежуточных поперечных балок (поз. 4). В верхних полках балок (поз. 1, 3 и 4) выполнены отверстия для установки упоров. Длина рамы чертеж 69581-002 - 5950 мм, чертеж ТБ-7158 - 6200 мм, ширина - 2780 мм.
1 - продольная балка; 2 - торцевая упорная балка;
3 - концевая упорная балка; 4 - промежуточная поперечная
балка; 5 - стальная полоса
Упор (рисунок 252) для закрепления рулонов на раме представляет собой сварную конструкцию, включающую палец (поз. 1) и направляющую втулку (поз. 2), объединенные пластиной (поз. 3) и ребрами (поз. 4 и 5). Расстояние между осями пальца и направляющей втулки равно шагу отверстий в балках рамы.
1 - палец; 2 - направляющая втулка; 3 - пластина;
4, 5 - ребра
Рамы укладывают в полувагоне симметрично относительно продольной и поперечной плоскостей симметрии вагона торцевыми упорными балками вплотную к торцевым порожкам (за исключением особо описанных случаев). Зазоры более 50 мм между рамами в центре полувагона должны быть заполнены брусками высотой не менее 80 мм и длиной не менее 2700 мм. В полувагонах длиной кузова более 12068 мм (за исключением особо описанных случаев) между рамами в середине вагона должна быть установлена распорная рама (рисунок 253), состоящая из трех распорных брусков (поз. 3) сечением не менее 80 x 90 мм, скрепленных между собой двумя скрепляющими досками (поз. 2) сечением не менее 25 x 100 мм. Каждую доску прибивают к брускам гвоздями диаметром не менее 5 мм и длиной 100 мм, по два гвоздя в каждое соединение. При наличии между брусками распорной рамы и люками полувагона вертикальных зазоров (из-за деформированной поверхности люков) под распорные бруски рамы устанавливают поперечные подкладки из досок сечением не менее 20 x 100 мм. Подкладки крепят к брускам рамы гвоздями длиной не менее 80 мм - по два в каждое соединение.
1 - рама; 2 - скрепляющая доска; 3 - распорный брусок
При размещении в полувагонах с длиной кузова 12068 мм на рамах по чертежу 69581-002 в случаях, когда длина погрузки рулонов на каждой раме менее 3000 мм, и отсутствует возможность размещения рулонов в середине полувагона (схемы по рисункам 254д, 254о, 254р, 254х), рамы укладывают вплотную друг к другу, концевые упорные балки рам в центре полувагона скрепляют двумя увязками из проволоки диаметром 6 мм в две нити либо стальной ленты сечением не менее 1,0 x 30 мм. Зазоры более 50 мм между рамами и торцевыми порожками полувагона должны быть заполнены брусками высотой не менее 80 мм и длиной не менее 2700 мм (рисунки 254д, 254о).
Размещение рулонов следует производить, начиная от торцов вагона, вплотную к торцевым упорным балкам рам. Каждый рулон должен опираться не менее чем на две продольные балки рамы. На каждой раме рулоны размещают по возможности вплотную друг к другу симметрично относительно продольной и поперечной плоскостей симметрии вагона по количеству, массе и расположению. Зазоры между соседними рулонами должны быть не более 40 мм, сумма зазоров в последовательном ряду (цепочке) рулонов от торцевой балки до соответствующего упора должна быть не более 250 мм. Допускается такое размещение, при котором отдельные рулоны одной рамы расположены кососимметрично относительно рулонов другой рамы.
При размещении в полувагонах длиной кузова более 12068 мм на рамах по чертежу 69581-002 в случаях, когда длина погрузки рулонов на каждой раме составляет менее 3000 мм, в центре полувагона с опорой на обе рамы должны быть размещены рулоны суммарной массой не менее 20% общей массы рулонов в полувагоне (рисунки 254п, 254т - 254ф).
При размещении по схемам, приведенным на рисунках 254а, 254б, 254д, 254е, 254и, 254л, 254о - 254х, должна быть обеспечена устойчивость рулонов от опрокидывания в продольном направлении. С этой целью рулоны, имеющие отношение высоты к наружному диаметру более 0,85, должны быть объединены увязкой из стальной ленты сечением не менее 1 x 30 мм в три оборота или из проволоки диаметром 6 мм в две нити, расположенной на расстоянии 100 - 300 мм от верхнего торца рулона (рисунки 254о, 254х).
1 - рама; 2 - рулон наружным диаметром 1000 - 1300 мм;
3 - рулон наружным диаметром 1000 - 1650 мм; 4 - упор;
5 - упорный брусок; 6 - увязка рам; 7 - распорный брусок;
8 - распорная рама; 9 - увязка рулонов
Закрепление рулонов на раме обеспечивают установкой упоров, при этом палец упора вставляют в ближайшее к поверхности рулона отверстие, а направляющая втулка - в соседнее отверстие на той же балке. Для крепления рулонов в продольном направлении упор устанавливают на продольной балке, для крепления в поперечном направлении - на поперечной балке.
Комплекты рулонов наружным диаметром 1000 - 1300 мм, а также смешанные комплекты, состоящие из рулонов наружным диаметром 1000 - 1300 мм и рулонов наружным диаметром 1000 - 1650 мм, размещают и закрепляют на рамах в шахматном порядке (рисунки 254а - 254з). Рулоны большего диаметра должны располагаться на продольной плоскости симметрии полувагона. При необходимости осуществления неполной загрузки вагона рулоны наружным диаметром 1000 - 1300 мм могут быть размещены также по схемам на рисунках 254о, 254т, 254х. Группы рулонов на обеих рамах закрепляют упорами; одиночный рулон в центре вагона (рисунок 254г, 254м) закрепляют при возможности установки упоров.
Рулоны наружным диаметром 1300 - 1430 мм размещают и закрепляют в соответствии со схемами рисунков 254и - 254к двумя продольными рядами вплотную к боковым стенам. Смешанные комплекты, состоящие из рулонов наружным диаметром 1300 - 1430 мм и рулонов других диаметров, размещают и закрепляют в соответствии со схемами рисунков 254л - 254п. Рулоны наружным диаметром 1300 - 1430 мм располагают двумя продольными рядами вплотную к боковым стенам, рулоны других диаметров - вплотную к ним на продольной плоскости симметрии полувагона. При необходимости осуществления неполной загрузки вагона рулоны наружным диаметром 1300 - 1430 мм могут быть размещены также по схемам рисунков 254т, 254х. Группы рулонов на обеих рамах закрепляют упорами; одиночный рулон в центре вагона (рисунок 254г, м) закрепляют при возможности установки упоров.
Комплекты рулонов наружным диаметром 1430 - 650 мм размещают и закрепляют на рамах в соответствии со схемами рисунков 254р, 254с, а при необходимости осуществления неполной загрузки вагона - также по схемам рисунков 254т - 254х.
Рулоны наружным диаметром до 2000 мм размещают и закрепляют в соответствии со схемами рисунков 254т - 254х.
Допускается размещение и крепление стоп из двух рулонов одинакового диаметра, закрепленных на поддоне с опорой на торец. При этом должны быть выполнены вышеизложенные требования по обеспечению устойчивости груза от опрокидывания.
Размещение рам в полувагоне при возврате выполняют в соответствии со схемой, приведенной на рисунке 255. Высота погрузки рам не должна превышать высоты стен полувагона. В случаях размещения рам в полувагонах с длиной кузова 12700 мм между штабелями рам устанавливают распорную раму, состоящую не менее чем из двух распорных брусков сечением не менее 80 x 100 мм и длиной по месту и двух соединительных планок сечением не менее 25 x 50 мм и длиной 2850 мм. Соединительные планки крепят к распорным брускам в каждом соединении двумя гвоздями длиной не менее 80 мм.
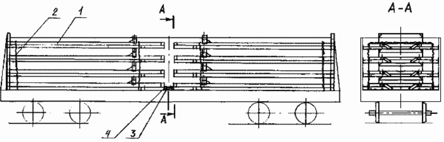
15.18. Размещение и крепление в полувагонах рулонов листовой стали с открытыми торцами наружным диаметром от 1000 до 1700 мм включительно, шириной полосы от 1000 до 1500 мм включительно, массой от 3,3 до 18 т включительно с использованием комплекта из двух металлических поддонов, изготовленных по чертежу М39-82209-1СБ ОАО "Запорожсталь".
Поддон размерами 5960 x 2800 x 508 мм массой 1,3 т является многооборотным средством крепления и представляет собой сварную металлическую конструкцию (рисунок 256).
Комплект из двух поддонов устанавливают непосредственно на пол полувагона симметрично относительно его продольной и поперечной плоскостей симметрии вплотную друг к другу, при этом торцы поддонов с упорами для среднего рулона должны быть обращены к середине вагона (рисунок 257).
Рисунок 257 - Размещение комплекта поддонов в полувагоне:
а - длиной кузова до 12228 мм включительно;
б - длиной кузова свыше 12228 мм
1 - поддон; 2 - скрепляющая доска; 3 - распорный брусок
В полувагоне с длиной кузова свыше 12228 мм в зазор между порожком (торцевой стеной) вагона и торцом поддона устанавливают четыре распорных бруска (поз. 3) сечением 100 x 100 мм и длиной по месту. Распорные бруски соединяют скрепляющей доской (поз. 2) размерами (25 - 40) x 100 x 2800 мм. Доску прибивают к каждому бруску двумя гвоздями диаметром 5 мм и длиной 120 мм. Допускается устанавливать поперечный упорный брусок 100 x 100 x 2800 мм между порожком (торцевой стеной) и распорными брусками. Допускается зазоры заполнять набором поперечных брусков сечением не менее 100 x 100 мм, скрепляемых между собой строительными скобами по три штуки каждый или двумя соединительными досками сечением не менее 25 x 100 мм и длиной по месту, прибивая их гвоздями диаметром 5 мм и длиной 100 мм по одному в каждый брусок.
Рулоны устанавливают на штыри поддонов и средний упор на стыке двух поддонов (рисунок 258).
Допускается размещать часть рулонов между рулонами, установленными на штырях, и плоскими упорами, имеющимися на поддонах (рисунок 259). При этом зазоры между соседними рулонами, установленными в группах, должны быть не более 40 мм.
При возврате поддонов в порожнем состоянии их размещают в полувагоне двумя штабелями по десять и менее штук в штабеле (рисунок 260). В штабеле размещение поддонов производят с поочередным разворотом поддонов в горизонтальной плоскости на 180°. При этом штыри нижнего поддона входят в просветы верхнего. Допускается возвышение элементов поддона над верхним обвязочным брусом полувагона не более 120 мм.
1 - поддон; 2 - рулон
1 - поддон; 2 - рулон; 3 - плоский упор
15.19. Размещение и крепление рулонов (упакованных и с открытыми торцами) наружным диаметром от 1000 до 1600 мм включительно, шириной полосы от 900 до 1800 мм включительно, массой от 3,5 до 20 т включительно на платформах, оборудованных многооборотным креплением по проектам 76329 и 76347 ОАО "Новолипецкий металлургический комбинат".
Борта платформы демонтированы. Многооборотное крепление представляет собой сварную конструкцию из стальных профилей и листовой стали (раму) и имеет продольный ложемент для укладки рулонов на образующую. Рамы закреплены на платформе посредством сварки. Рамы имеют упорные торцевые стенки и передвижные поперечные балки, предназначенные для закрепления рулонов в продольном направлении. Балки фиксируют на верхней плоскости рамы вертикальными фиксаторами, устанавливаемыми в отверстия балки и рамы. Отверстия расположены с шагом 100 мм.
В зависимости от массы рулонов их размещают в количестве от 3 до 12 штук. Четное число рулонов располагают на раме двумя группами (рисунок 261а - 261г); при нечетном числе рулонов один рулон размещают посередине рамы (рисунок 261д - 261з).
Общая масса погруженных рулонов с учетом массы оборудования и за вычетом массы демонтированных бортов не должна превышать грузоподъемность платформы.
Рулоны размещают, начиная от торцевых частей платформы (вплотную к упорным стенкам рамы). Рулоны большей массы размещают в торцевых частях платформы. Рулоны размещают по возможности вплотную друг к другу. Группы рулонов на раме закрепляют от продольного смещения передвижными балками (поз. 3), располагаемыми по возможности вплотную к торцам рулонов. Центральный рулон закрепляют с обеих сторон двумя дополнительными балками. При невозможности установки для крепления рулонов в продольном направлении двух упорных балок между группами рулонов допускается устанавливать в центре одну балку или вкладыш, или производить размещение рулонов по всей длине рамы без применения упорных балок. Вкладыш представляет собой упорную балку без косынок и устанавливается он между рулонами.
Фиксаторы упорных балок должны быть зашплинтованы проволокой диаметром не менее 4 мм с закруткой концов проволоки в три оборота. Длина скрученных концов проволоки должна быть не более 100 мм.
Зазоры величиной более 40 мм между балками и рулонами заполняют наборами досок или (и) брусков сечением (20 - 80) x 100 мм и длиной, равной длине упорной балки (поз. 3). Зазоры между рулонами заполняют аналогичными наборами досок или брусков, закрепленными аналогичным образом. Допускается размещение рулонов, объединенных в стопу по 2 - 3 штуки, суммарной шириной полосы стопы 900 - 1800 мм.
Варианты размещения рулонов приведены на рисунке 261.
1 - рулон; 2 - рама; 3 - упорная балка;
4 - металлический вкладыш; 5 - деревянные бруски
длиной по месту
Допускается производить погрузку рулонов двумя группами с несимметричным расположением рулонов относительно поперечной плоскости симметрии платформы (рисунки 261и - 261л). При этом смещение общего центра тяжести груза не должно превышать значений, указанных в таблице 9 главы 1 настоящих ТУ.
Допускается погрузка бунтов листовой стали, соединенных между собой в рулоны с помощью металлических лент по ГОСТ 3560 "Лента стальная упаковочная" шириной не менее 30 мм и толщиной: мягкая - 1,5 - 2,0 мм, нагартованная - 0,8 - 2,0 мм или полиэстеровых лент сечением не менее 1,3 x 24,7 мм.
Возврат платформы в порожнем состоянии осуществляется в соответствии с рисунком 262. Перед возвратом платформы проверяют состояние оборудования платформы, целостность сварных швов приварки рамы к платформе, целостность упорных балок. Упорные балки, предназначенные для закрепления рулонов в продольном направлении, фиксируют на верхней плоскости рамы вертикальными фиксаторами, устанавливаемыми в отверстия балки и рамы. Фиксаторы упорных балок должны быть зашплинтованы проволокой диаметром не менее 4 мм с закруткой концов проволоки в три оборота.
Количество упорных балок может быть различным в зависимости от схемы крепления прибывших рулонов. Количество упорных балок при возврате должно соответствовать количеству прибывших.
1 - упорная балка; 2 - фиксатор; 3 - проволока
15.20. Размещение и крепление упакованных рулонов листовой стали наружным диаметром от 1000 до 1600 мм включительно, массой от 5 до 18 т включительно в полувагоне с использованием многооборотных рам конструкции ОАО "Новолипецкий металлургический комбинат", чертеж 74985-000.
Рама представляет собой сварную металлическую конструкцию с торцевыми упорами и ложементом для размещения рулонов. Длина рамы 5950 мм, ширина рамы 2780 мм. В полувагоне устанавливают две рамы вплотную к торцевым порожкам (стенам) полувагона. В распор между рамами в середине полувагона устанавливают три распорных деревянных бруска сечением не менее 80 x 100 мм и длиной по месту. Распорные бруски устанавливают в специальные окна в нижней обвязке рамы. При наличии между брусками распорной рамы и люками полувагона вертикальных зазоров (из-за деформированной поверхности люков) под распорные бруски рамы устанавливают поперечные подкладки из досок сечением не менее 20 x 100 мм. Подкладки крепят к брускам рамы гвоздями длиной не менее 80 мм - по два в каждое соединение.
Рулоны размещают вплотную к торцевым упорам рам. С противоположной стороны рулоны крепят передвижными балками. Упорные балки крепят к раме втулками-фиксаторами. При наличии между рулонами и упорной балкой зазоров их заполняют деревянными вкладышами. Для обеспечения механизированной выгрузки допускается между рулонами устанавливать доски толщиной не менее 40 мм и длиной, равной ширине кузова полувагона.
Фиксаторы упорных балок должны быть зашплинтованы проволокой диаметром не менее 4 мм в один оборот с закруткой концов проволоки в три оборота. Длина скрученных концов проволоки должна быть не более 100 мм.
Рулоны наружным диаметром от 1100 до 1300 мм включительно, шириной листа от 900 до 1800 мм включительно и массой от 7 до 10 т включительно размещают в количестве восьми штук, по четыре на каждой раме (рисунок 263).
1 - рама; 2 - упорная балка; 3 - распорный брусок; 4 - рулон
Рулоны наружным диаметром от 1200 до 1400 мм включительно, шириной листа от 900 до 1800 мм включительно и массой от 9 до 11 т включительно размещают в количестве шести штук, по три на каждой раме (рисунок 264).
1 - рама; 2 - упорная балка; 3 - распорный брусок; 4 - рулон
Рулоны наружным диаметром от 1250 до 1500 мм включительно, шириной от 900 до 1800 мм включительно и массой от 12 до 18 т включительно размещают в количестве четырех штук, по два на каждой раме (рисунок 265).
1 - рама; 2 - упорная балка; 3 - распорный брусок;
4 - рулон
Схема размещения и крепления рам при возврате приведена на рисунке 266.
1 - рама в сборе с упорной балкой; 2 - увязка;
3 - продольный распорный брусок;
4 - скрепляющая доска
Рамы размещают в полувагоне двумя штабелями по длине, в четыре-пять ярусов по высоте, вплотную к торцевым порожкам. Упорные балки закрепляют на рамах фиксаторами на расстоянии 700 - 1000 мм от свободного торца; фиксаторы закрепляют на балке увязками из проволоки диаметром 4 мм в две нити. В каждом штабеле рамы скрепляют двумя увязками (поз. 2) из проволоки диаметром 6 мм в две нити. В распор между штабелями на пол вагона укладывают три продольных распорных бруска (поз. 3) сечением не менее 80 x 100 мм, которые фиксируют двумя поперечными скрепляющими досками (поз. 4) сечением 25 x 100 мм и длиной, равной ширине вагона. Скрепляющие доски прибивают к распорным брускам гвоздями длиной 120 мм, по два гвоздя в каждое соединение.
15.21. Размещение и крепление рулонов стали наружным диаметром от 800 до 1100 мм включительно, шириной полосы от 900 до 1600 мм включительно, массой от 3,5 до 10 т включительно в полувагоне с использованием многооборотных рам конструкции ОАО "Новолипецкий металлургический комбинат", чертеж N 56647-1а.
Рама (рисунок 267) представляет собой сварную металлическую конструкцию длиной 5950 мм, шириной 2780 мм и высотой 360 мм. Масса рамы составляет 0,85 - 1,5 т.
В полувагоне устанавливают две рамы одинаковой массы вплотную к торцевым порожкам (стенам) полувагона (рисунок 268). В полувагоне внутренней длиной более 12068 мм в распор между рамами в середине полувагона устанавливают три распорных деревянных бруска сечением не менее 80 x 100 мм. Распорные бруски соединяют между собой двумя скрепляющими досками размерами не менее 25 x 100 x 2850 мм. Каждую доску прибивают к брускам гвоздями длиной не менее 80 мм по два в каждое соединение. При наличии между брусками распорной рамы и люками полувагона вертикальных зазоров (из-за деформированной поверхности люков) под распорные бруски рамы устанавливают поперечные подкладки из досок сечением не менее 20 x 100 мм. Подкладки крепят к брускам рамы гвоздями длиной не менее 80 мм - по два в каждое соединение.
1 - рама; 2 - распорный брусок; 3 - скрепляющая доска
Рулоны размещают в ячейки рам на образующую симметрично относительно продольной и поперечной плоскостей симметрии вагона с опорой на продольные балки рам (рисунки 269 - 271). Рулоны в торцевых ячейках рам размещают вплотную к любой из поперечных балок рамы.
Допускается размещение рулонов, объединенных в стопу по 2 - 3 штуки, суммарной шириной полосы стопы 900 - 1600 мм.
При ширине полосы рулонов 900 - 1100 мм их диаметр должен быть не более 1000 мм.
От продольного смещения рулоны в ячейках закрепляют следующим порядком. В ячейке с размещенным рулоном в промежутке между ним и поперечной балкой на пол полувагона укладывают два поперечных бруска (поз. 2) сечением не менее 100 x 80 мм, на них в распор между рулоном и поперечной балкой укладывают два продольных распорных бруска поз. 3, которые прибивают к брускам (поз. 2) двумя гвоздями длиной не менее 120 мм в каждое соединение.
В зависимости от массы рулонов в полувагоне размещают:
- 8 рулонов - в соответствии со схемой по рисунку 269;
- 10 рулонов - в соответствии со схемой по рисунку 270;
- 12 рулонов - в соответствии со схемой по рисунку 271.
1 - рама; 2 - брусок; 3 - распорный брусок
1 - рама; 2 - брусок; 3 - распорный брусок
1 - рама; 2 - брусок; 3 - распорный брусок
Размещение рам в полувагоне при возврате выполняют в соответствии со схемой, приведенной на рисунке 272. При возврате рамы в полувагоне размещают симметрично продольной и поперечной плоскостям симметрии вагона в два штабеля по длине вагона и в 8 - 9 ярусов по высоте в зависимости от высоты кузова вагона. Выступающие поперечные балки рам размещают поочередно к торцам и к середине вагона. Каждый штабель рам увязывают двумя увязками. При погрузке в вагоны внутренней длиной 12700 мм между штабелями в середине вагона (рисунок 273) устанавливают распорную раму, состоящую из трех распорных брусков, которые скрепляют между собой двумя скрепляющими планками. Планки прибивают к брускам гвоздями длиной не менее 100 мм по два гвоздя в каждое соединение. Высота погрузки рам не должна превышать высоты стен полувагона.
1 - рама; 2 - увязка из проволоки диаметром 6 мм в 2 нити;
3 - продольный распорный брусок сечением не менее
100 x 80 мм и длиной по месту;
4 - скрепляющая планка сечением не менее
25 x 100 мм и длиной 2850 мм
15.22. Размещение и крепление рулонов с открытыми торцами наружным диаметром от 1000 до 1350 мм включительно, шириной полосы от 1000 до 2000 мм включительно, массой до 13 т включительно в полувагонах с использованием рам по проекту М 37132 ОАО "Магнитогорский металлургический комбинат".
Рама (чертеж N М 37132.03.000) является многооборотным средством крепления и представляет собой сварную металлическую конструкцию с ложементами для установки на них рулонов с опорой на образующую. Для закрепления рулонов в продольном направлении и от перекатывания в комплекте рамы имеются специальные упоры (чертеж N М 37133.03, N М37133.04). Комплект из двух рам (поз. 1) устанавливают на пол полувагона (рисунки 274 - 283) встык в середине полувагона симметрично относительно его продольной и поперечной плоскостей симметрии. Зазоры между рамами и торцевыми дверями (стенами) полувагона заполняют наборами брусков (поз. 2) сечением не менее 100 x 100 мм и длиной 2870 мм, скрепленных досками (поз. 3) сечением не менее 40 x 100 мм и длиной по месту, которые прибивают гвоздями (поз. 4) диаметром 5 мм и длиной 120 мм. Зазоры между рамами и боковыми стенами полувагона заполняют распорными брусками (поз. 5) сечением не менее 100 x 100 и длиной 400 мм.
В полувагоне допускается размещать рулоны, соотношение наружного диаметра и высоты (ширины полосы) которых удовлетворяет данным таблицы 9.
Рулоны размещают в ложементы рам и закрепляют упорами (поз. 7 и 8). Упоры (поз. 7) устанавливают к свободному торцу рулона, упоры (поз. 8) - между соседними рулонами.
В центральном ложементе рам устанавливают рулоны наружным диаметром до 1350 мм, в боковые ложементы - рулоны наружным диаметром до 1180 мм. Крайние рулоны наружным диаметром более 1180 мм, установленные в центральном ложементе в торцах полувагона, закрепляют увязками (поз. 6) из стальной ленты сечением 0,8 x 30 мм, закрепляемыми за специальные проушины рамы.
В зависимости от массы и наружного диаметра рулонов на платформе размещают от 5 до 14 рулонов (рисунки 274 - 283).
1 - рама; 2 - упорный брусок; 3 - скрепляющая доска;
4 - гвоздь; 5 - распорный брусок; 6 - увязка; 7, 8 - упор
1 - рама; 2 - упорный брусок; 3 - скрепляющая доска;
4 - гвоздь; 5 - распорный брусок; 6 - увязка; 7, 8 - упор
1 - рама; 2 - упорный брусок; 3 - скрепляющая доска;
4 - гвоздь; 5 - распорный брусок; 6 - увязка; 7, 8 - упор
1 - рама; 2 - упорный брусок; 3 - скрепляющая доска;
4 - гвоздь; 5 - распорный брусок; 6 - увязка; 7, 8 - упор
1 - рама; 2 - упорный брусок; 3 - скрепляющая доска;
4 - гвоздь; 5 - распорный брусок; 6 - увязка; 7, 8 - упор
1 - рама; 2 - упорный брусок; 3 - скрепляющая доска;
4 - гвоздь; 5 - распорный брусок; 6 - увязка; 7, 8 - упор
1 - рама; 2 - упорный брусок; 3 - скрепляющая доска;
4 - гвоздь; 5 - распорный брусок; 6 - увязка; 7, 8 - упор
1 - рама; 2 - упорный брусок; 3 - скрепляющая доска;
4 - гвоздь; 5 - распорный брусок; 6 - увязка; 7, 8 - упор
1 - рама; 2 - упорный брусок; 3 - скрепляющая доска;
4 - гвоздь; 5 - распорный брусок; 6 - увязка; 7, 8 - упор
1 - рама; 2 - упорный брусок; 3 - скрепляющая доска;
4 - гвоздь; 5 - распорный брусок; 6 - увязка; 7, 8 - упор
Схема возврата рам с упорами приведена на рисунке 284.
Рамы (поз. 1) размещают в полувагоне в количестве 16 штук двумя штабелями. В первых семи ярусах каждого штабеля размещают рамы с установленными и зафиксированными на них упорами (поз. 2 и 3). В восьмом ярусе размещают рамы с демонтированными упорами. Демонтированные упоры размещают в ячейках рам нижнего яруса. Каждый штабель рам закрепляют двумя обвязками (поз. 4), закрепляемыми за нижние или верхние увязочные устройства полувагона.
1 - рама; 2, 3 - упор; 4 - обвязка
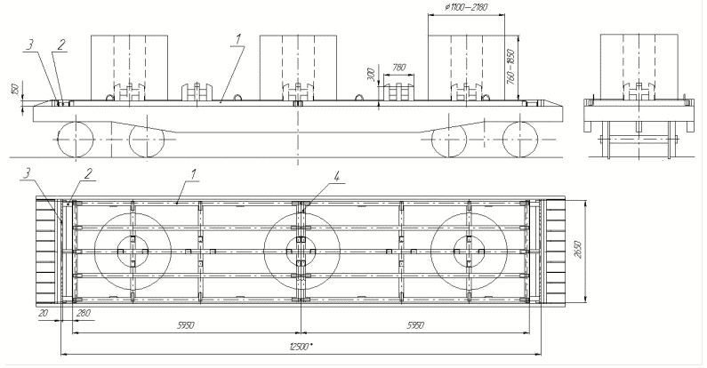
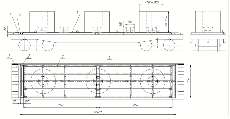
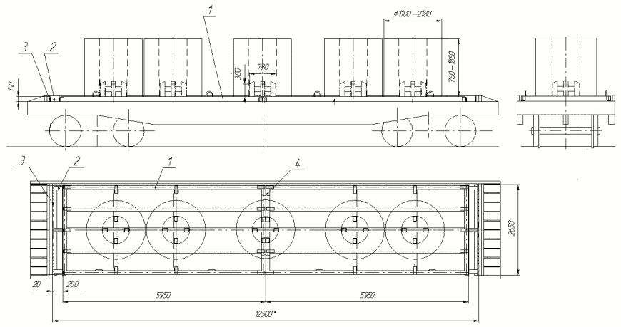
15.23. Размещение и крепление рулонов листовой стали и стальной ленты шириной от 100 мм в рулонах, упаковка которых осуществлена в соответствии с требованиями стандартов (ГОСТ) массой до 30 т на платформах моделей 13-4094 и 13-4094-01.
Технические характеристики платформ моделей 13-4094 и 13-4094-01 (рисунок 285) представлены в таблице 10.
1 - стационарная опора; 2 - передвижная опора;
3 - упор крепления передвижных опор
Платформа модели 13-4094 отличается от платформы 13-4094-01 отсутствием передвижных опор, а также наличием кожуха для защиты груза от атмосферных воздействий.
Рулоны размещают симметрично относительно продольной и поперечной плоскостей симметрии платформы, начиная от середины платформы поочередно к торцам в соответствии со схемами, приведенными на рисунках 286 - 293.
При размещении в ложементе двух рулонов первый рулон укладывают вплотную к месту установки передвижного поперечного упора. Второй рулон укладывают вплотную к первому. Рулоны закрепляют вторым передвижным поперечным упором, устанавливая его в ближайшую к рулону прорезь. Суммарный зазор между рулонами, уложенными в один ложемент, не должен превышать 100 мм. При размещении в ложементе одного рулона смещение его центра тяжести относительно продольной плоскости симметрии платформы должно быть не более 50 мм.
Допускается разница масс рулонов, размещаемых в одном ложементе, не более 2 т, при этом в соседних ложементах рулоны должны размещаться кососимметрично по массе.
Допускается разница масс рулонов, размещаемых на платформе, более 2 т при условии размещения рулонов, имеющих наибольшую или наименьшую массу, в средние ложементы по одному.
Допускается размещение в одном ложементе рулонов различной ширины при условии равенства масс рулонов, при этом середина суммарной ширины рулонов может быть смещена относительно продольной плоскости симметрии платформы не более чем на 50 мм.
При возврате платформ в порожнем состоянии передвижные упоры и защитный кожух устанавливают в рабочее положение.
15.24. Размещение и крепление упакованных рулонов наружным диаметром от 780 до 1200 мм, высотой до 1250 мм, массой до 5,0 т, закрепленных на деревянных поддонах, в полувагонах с использованием металлических многооборотных рам, изготовленных по чертежу 79321-00.00.00"А"СБ, по чертежу 80772-00.00.00СБ и по чертежу 80898.00.00.00СБ ОАО "Новолипецкий металлургический комбинат".
Рама представляет собой сварную конструкцию со специальными ячейками для размещения рулонов. Масса рамы составляет 1,165 - 1,272 т.
В полувагонах рамы устанавливают (рисунок 294) вплотную к торцевым порожкам (стенам). В полувагонах с длиной кузова более 12068 мм в зазор между рамами устанавливают распорную раму, выполненную из трех распорных брусков (поз. 3) сечением не менее 100 x 80 мм и длиной по месту, которые скрепляют между собой двумя скрепляющими досками (поз. 4) сечением не менее 25 x 100 мм и длиной 2850 мм. Доски прибивают к брускам гвоздями длиной 120 мм по два гвоздя в каждое соединение. При наличии между брусками распорной рамы и люками полувагона вертикальных зазоров (из-за деформированной поверхности люков) под распорные бруски рамы устанавливают поперечные подкладки из досок сечением не менее 20 x 100 мм. Подкладки крепят к брускам рамы гвоздями длиной не менее 80 мм - по два в каждое соединение.
Рулоны размещают в ячейках рам. От перемещения рулоны закрепляют в ячейках деревянными брусками сечением не менее 50 x 100 мм и длиной по месту или набором досок, которые укладывают между рулонами и поперечными балками рамы.
а) 10 рулонов; б) - 12 рулонов;
в) 14 рулонов; г) 16 рулонов
1 - рама; 2 - рулон; 3 - брусок;
4 - скрепляющая доска
Размещение и крепление металлических рам при возврате производят в соответствии со схемой, приведенной на рисунке 295. Высота погрузки рам не должна превышать высоты стен полувагона.
Рамы размещают двумя штабелями. В каждом штабеле рамы скрепляют между собой двумя увязками (поз. 3) из проволоки диаметром 6 мм в две нити. В полувагонах с длиной кузова более 12068 мм в зазор между рамами устанавливают распорную раму, выполненную из двух распорных брусков (поз. 5) сечением не менее 100 x 80 мм и длиной по месту, которые скрепляют между собой двумя скрепляющими досками (поз. 4) сечением не менее 25 x 100 мм и длиной 2850 мм. Доски прибивают к брускам гвоздями длиной 120 мм по два гвоздя в каждое соединение. У торцевых порожков устанавливают на ребро бруски (поз. 2) сечением не менее 60 x 100 мм и длиной не менее 2850 мм.
1 - рама; 2 - упорный брусок; 3 - увязка; 4 - скрепляющая
доска; 5 - распорный брусок
15.25. Размещение и крепление рулонов электротехнической стали наружным диаметром 780 - 1150 мм включительно, шириной полосы до 1250 мм включительно, упакованных на деревянных поддонах, в полувагонах с использованием металлических щитов, изготовленных по проекту ОАО "Новолипецкий металлургический комбинат" (чертежи 11.71.98 и 11.71-99-01).
Каждый рулон защищен кожухом от атмосферных осадков и закреплен к поддону увязкой из стальной ленты сечением не менее 1,0 x 30 мм (рисунок 296). Длина поддона (вдоль полозьев) составляет 900 - 1000 мм, ширина - 1000 мм.
1 - рулон; 2 - кожух; 3 - поддон; 4 - увязка
Торцевой щит и усиленный щит (рисунок 297) состоят из двух горизонтальных балок (поз. 1), приваренных к двум вертикальным стойкам (поз. 2), и двух брусков (поз. 3), вложенных внутрь профиля балок и закрепленных к ним гвоздями через отверстия в балках. Усиленный щит имеет балки с приваренными к ним между стойками дополнительными швеллерами (поз. 5). На стойках щита со стороны, противоположной балкам, приварены направляющие (поз. 4) для установки и закрепления распорных брусков.
а) - торцевой щит; б) - усиленный щит
1 - балка, 2 - стойка; 3 - брусок, 4 - направляющая;
5 - швеллер
Торцевые двери (стены) полувагона ограждают торцевыми щитами. Рулоны размещают (рисунок 298) тремя группами (две группы в торцах полувагона вплотную к торцевым щитам и одна - в середине) симметрично относительно плоскостей симметрии полувагона. Полозья поддонов должны быть вдоль вагона. В группах рулоны размещают рядами вплотную к боковым стенам. Зазоры в продольном направлении между соседними рулонами (или их поддонами) должны быть не более 80 мм. Каждую группу рулонов от продольного смещения закрепляют усиленными щитами. При расположении рулона на крышке люка всей площадью поддона рулон устанавливают на две поперечные подкладки сечением 40 x 80 мм и длиной 1400 мм, опирающиеся на хребтовую балку и угольник нижней обвязки полувагона. Подкладки располагают на расстоянии 100 - 150 мм от края поддона. Допускается при размещении одного края поддона на поперечной балке устанавливать под противоположный край выравнивающую подкладку сечением не менее 40 x 100 мм. При погрузке рулонов в полувагоны без разгрузочных люков подкладки не устанавливают.
Допускается размещение в одном полувагоне рулонов разной массы при условии, что разность суммарных масс рулонов в торцевых группах составляет не более 2 т.
От продольного смещения группы рулонов закрепляют усиленными щитами (поз. 3), устанавливаемыми вплотную к рулонам, и распорными брусками (поз. 4) сечением не менее 80 x 100 мм, которые устанавливают в направляющие на щитах, и закрепляют к ним гвоздями длиной 100 - 150 мм и увязками из проволоки диаметром 6 мм или из стальной ленты сечением 0,8 x 30 мм с замковым устройством. Распорные бруски скрепляют между собой скрепляющими досками (поз. 8) сечением не менее 25 x 100 мм и гвоздями длиной не менее 100 мм - по два в каждое соединение. От поперечного смещения рулоны закрепляют продольными швеллерами с вложенными в них брусками (поз. 5 и 10), которые устанавливают на горизонтальные балки щитов вплотную к рулонам. Швеллеры закрепляют к торцевым щитам специальной скобой, к усиленным щитам - увязкой из проволоки диаметром 6 мм крест-накрест. На швеллеры в распор между ними устанавливают распорные бруски (поз. 6) сечением не менее 80 x 100 мм с прибитыми к ним сверху планками (поз. 9) сечением не менее 25 x 100 мм. Планки закрепляют к брускам, вложенным в швеллеры, гвоздями длиной не менее 100 мм. Зазоры в продольном направлении между рулонами в группах заполняют разделительными планками (поз. 7) сечением не менее 25 x 100 мм.
Размещение и крепление рулонов массой от 2,0 до 5,0 т включительно производят в соответствии со схемами, приведенными на рисунке 298.
а) - 14 рулонов; б) - 16 рулонов; в) - 18 рулонов
1 - рулон на поддоне; 2 - щит торцевой; 3 - щит усиленный;
4, 6 - распорные бруски; 5, 10 - швеллеры с бруском;
7 - разделительная планка; 8 - скрепляющая доска; 9 - планка
Размещение и крепление рулонов массой до 3,5 т включительно в количестве 20 штук производят в соответствии со схемой, приведенной на рисунке 299.
1 - рулон на поддоне; 2 - щит торцевой; 3 - щит усиленный;
4, 6 - распорные бруски; 5, 10 - швеллеры с бруском;
7 - разделительная планка; 8 - скрепляющая доска; 9 - планка
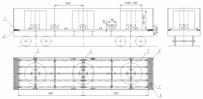
15.26. Рулоны (связки бунтов) холоднокатаной и горячекатаной листовой стали массой до 32 т включительно, шириной полосы от 900 до 1800 мм включительно (ширина полосы бунта от 100 мм), наружным диаметром от 1000 до 2200 мм включительно размещают на платформе, оборудованной многооборотным креплением по чертежу 79343-00.00.00СБ ОАО "Новолипецкий металлургический комбинат" (398040, г. Липецк, пл. Металлургов, 2) (рисунок 300).
Рулоны или группы рулонов размещают на специальные опоры, имеющие форму ложементов, и крепят от продольного смещения передвижными упорными балками. Рулоны наружным диаметром от 1600 до 2200 мм включительно размещают на больших опорах, расположенных в торцах и в середине платформы, и крепят передвижными упорными балками, изготовленными по чертежу N 78756-01.00.00СБ. Рулоны наружным диаметром от 1000 до 1600 мм включительно размещают на малых опорах, расположенных по всей длине платформы, и крепят передвижными упорными балками, изготовленными по чертежу N 79246-00.00.00СБ.
Передвижные упорные балки стопорят фиксаторами. Фиксаторы передвижных упорных балок должны быть зашплинтованы проволокой диаметром не менее 4 мм в один оборот с закруткой концов проволоки в три оборота. Длина скрученных концов проволоки должна быть не более 100 мм.
Крайние рулоны или группы рулонов размещают вплотную к торцевым упорам. Рулоны или группы рулонов, расположенные в торцевых частях платформы, крепят одной передвижной упорной балкой, а рулоны или группы рулонов, расположенные в центральной части - двумя.
Зазоры между рулонами и передвижными упорными балками более 200 мм заполняют брусками или досками. Для обеспечения сохранности рулонов допускается устанавливать между рулонами в группе деревянные прокладки толщиной не менее 25 мм.
Общая масса погруженных рулонов с учетом массы оборудования и за вычетом массы демонтированных бортов не должна превышать грузоподъемности платформы.
Допускается размещение на платформе рулонов различных размеров и массы. При этом смещение общего центра тяжести груза не должно превышать величин, установленных главой 1 настоящих ТУ.
1 - балка упорная оборудования платформы по чертежу 78756;
2 - балка упорная оборудования платформы по чертежу 79246;
3 - прокладка
При размещении рулонов наружным диаметром от 900 до 1600 мм допускается упорные балки (чертеж 78756), установленные на больших торцевых опорах, смещать к торцам и закреплять фиксаторами. При этом рулоны устанавливают вплотную к балкам.
Допускается погрузка бунтов листовой стали, соединенных между собой в рулоны с помощью металлических лент по ГОСТ 3560 "Лента стальная упаковочная" шириной не менее 30 мм и толщиной: мягкая - 1,5 - 2,0 мм, нагартованная - 0,8 - 2,0 мм или полиэстеровых лент сечением не менее 1,3 x 24,7 мм.
Возврат платформы в порожнем состоянии осуществляется в соответствии с рисунком 301.
Перед возвратом платформы проверяют состояние оборудования платформы, целостность сварных швов приварки рамы к платформе, целостность упорных балок. Упорные балки должны быть закреплены фиксаторами. Фиксаторы передвижных упорных балок должны быть зашплинтованы проволокой диаметром не менее 4 мм в один оборот с закруткой концов проволоки в три оборота.
Количество упорных балок может быть различным в зависимости от схемы крепления прибывших рулонов. Количество упорных балок при возврате платформы должно соответствовать количеству прибывших упорных балок.
1 - продольный ложемент для размещения рулонов
(бунтов в связках) диаметром 1000 - 1600 мм;
2 - опорный ложемент для размещения рулонов
(бунтов в связках) диаметром от 1600 до 2200 мм;
3 - передвижная упорная балка (чертеж N 79246-00.00.00СБ);
4 - передвижная упорная балка (чертеж N 78756-01.00.00СБ)
Количество упорных балок на одной платформе может быть различным (в зависимости от варианта размещения прибывших рулонов).
15.27. Размещение и крепление рулонов (упакованных и с открытыми торцами) наружным диаметром от 1100 до 1400 мм включительно, шириной полосы от 1000 до 1550 мм включительно, массой от 4,5 до 13,0 т включительно, закрепленных на деревянных поддонах в положении на образующую, в полувагонах с глухим кузовом.
Поддоны (рисунок 302) для рулонов с открытыми торцами изготавливают из нескольких поперечных брусков-подкладок (поз. 1) размерами (80 - 100) x 100 x (1150 - 1350) мм, двух продольных опорных брусков (поз. 2) размерами (100 - 120) x (100 - 160) x (1500 - 1800) мм, двух торцевых упорных брусков (поз. 3) размерами (50 - 100) x 100 x 1150 мм.
Рисунок 302 - Поддон для рулонов с открытыми торцами
1 - поперечный брусок-подкладка; 2 - продольный опорный
брусок; 3 - торцевой упорный брусок; 4 - стяжка
В зависимости от массы рулона используют от трех до пяти поперечных брусков-подкладок. Продольные опорные бруски имеют с внутренней стороны продольную фаску шириной 30 мм под углом 45° для увеличения площади опирания рулона. В каждом пересечении бруски поддона скрепляют двумя гвоздями диаметром 8 мм и длиной 200 мм. Торцевые упорные бруски закрепляют к продольным опорным брускам в каждом пересечении двумя гвоздями диаметром 8 мм и длиной 200 мм и дополнительно двумя стяжками (поз. 4) из стальной ленты сечением не менее 1,0 x 30 мм. Торцевые упорные бруски должны быть установлены вплотную к торцам размещенного рулона.
Поддоны для упакованных рулонов (стоп) стальной ленты (рисунок 303) изготавливают аналогично поддонам для рулонов с открытыми торцами с тем отличием, что между продольными опорными брусками (поз. 1) и поперечными упорными брусками (поз. 3) дополнительно устанавливают по две прокладки (поз. 5) сечением 100 x (160 - 180) x 200 мм.
Рисунок 303 - Поддон для упакованных рулонов
1 - поперечный брусок-подкладка; 2 - продольный опорный
брусок; 3 - торцевой упорный брусок; 4 - стяжка;
5 - подкладка
После укладки на поддон рулон в зависимости от массы закрепляют на нем обвязками из стальной ленты сечением (1,0 - 1,5) x 30 мм.
В зависимости от массы рулона расстояние В между продольными опорными брусками, количество поперечных брусков-подкладок поддона, количество обвязок должно соответствовать данным, приведенным в таблице 11.
Рулоны массой до 6,0 т размещают в полувагоне двумя продольными рядами (рисунок 304).
1 - поперечный упорный брусок; 2 - распорный брусок;
3 - поперечный торцевой брусок; 4 - скрепляющий брусок;
5 - металлическая лента
Рулоны размещают в полувагоне одной, двумя или тремя группами. Вплотную к торцевым дверям (стенам) полувагона устанавливают по два скрепленных между собой торцевых бруска (поз. 3) общей высотой 160 - 200 мм, шириной 100 мм и длиной 2800 мм, к которым вплотную размещают крайние группы рулонов и ограждают их двумя поперечными скрепленными между собой упорными брусками (поз. 1) размером (160 - 200) x 100 x 2800 мм. Аналогично ограждается средняя группа рулонов. Между поперечными упорными брусками устанавливают распорную раму, состоящую из четырех распорных брусков (поз. 2) размером (80 - 100) x (80 - 100) мм и длиной по месту и двух скрепляющих брусков (поз. 4) размером (80 - 100) x (80 - 100) x 2800 мм, которые прибивают к распорным брускам двумя гвоздями диаметром не менее 5 мм и длиной 150 - 200 мм в каждом соединении. Распорные рамы устанавливают скрепляющими брусками вниз.
Рулоны массой от 4,0 до 9,0 т включительно в количестве 8 - 14 штук размещают в полувагоне двумя-тремя группами симметрично относительно продольной и поперечной плоскостей симметрии вагона (рисунок 305).
1, 4 - упорные бруски; 2, 5 - распорные бруски;
3 - подкладка; 6 - скрепляющая доска
Вплотную к торцевым стенам укладывают упорные бруски (поз. 1) сечением не менее 100 x 160 мм и длиной 2850 мм. В торцах полувагона размещают группы из четырех рулонов, в каждой из которых поочередно устанавливают один рулон, два рулона по ширине полувагона, один рулон. В середине вагона устанавливают один или два рулона. Под концы продольных опорных брусков рулонов крайних групп укладывают подкладки (поз. 3) сечением не менее 70 x 100 мм и длиной не менее 2850 мм. Концы опорных брусков прибивают к подкладкам одним гвоздем диаметром 6 мм и длиной 150 мм.
В зазоры между группами рулонов устанавливают распорные рамы, состоящие из двух упорных брусков (поз. 4) сечением не менее 100 x 160 мм и длиной 2800 мм и трех распорных брусков (поз. 5) сечением не менее 100 x 100 мм и длиной по месту. Распорные бруски скрепляют с упорными брусками (поз. 4) скобами диаметром прутка 8 мм (одна скоба в каждое соединение) и скрепляют между собой двумя скрепляющими досками (поз. 6) сечением не менее 50 x 100 мм и длиной 1800 мм, которые прибивают к брускам двумя гвоздями диаметром 6 мм и длиной 150 мм в каждом пересечении. Распорные рамы располагают скрепляющими досками вниз. Допускается вместо распорных брусков (поз. 5) устанавливать наборы из нескольких упорных брусков сечением не менее 100 x 160 и длиной не менее 2850 мм.
От поперечного смещения рулоны, уложенные над хребтовой балкой, закрепляют распорными брусками (поз. 2) сечением не менее 100 x 100 мм и длиной, равной зазору между продольным опорным бруском поддона и стеной вагона. Каждый распорный брусок прибивают к упорным брускам (поз. 1 и 4) двумя гвоздями диаметром 6 мм и длиной не менее 150 мм.
Рулоны массой от 9,0 до 13,0 включительно в количестве 5 - 7 штук размещают в полувагоне двумя - тремя группами симметрично относительно плоскостей симметрии вагона (рисунок 306).
1, 4 - упорные бруски; 2, 5 - распорные бруски;
3 - подкладка; 6 - скрепляющая доска
Вплотную к торцевым стенам укладывают упорные бруски (поз. 1) сечением не менее 100 x 160 мм и длиной 2850 мм. В торцах полувагона размещают группы из трех (рисунок 306а) или двух (рисунки 306б, 306в) рулонов, при этом у торцевых стен устанавливают два рулона по ширине полувагона. В середине вагона устанавливают один или два рулона. Под концы продольных опорных брусков рулонов крайних групп укладывают подкладки (поз. 3) сечением не менее 70 x 100 мм и длиной 2850 мм. Концы опорных брусков прибивают к подкладкам одним гвоздем диаметром 6 мм и длиной не менее 150 мм.
Крепление рулонов в продольном и поперечном направлениях производится аналогично рулонам массой от 6,0 до 9,0 т.
15.28. Размещение и крепление рулонов с открытыми торцами наружным диаметром от 1100 до 2180 мм включительно, шириной полосы от 760 до 1850 мм включительно, массой до 32 т включительно на платформах, оборудованных по проекту 01377а ОАО "Магнитогорский металлургический комбинат".
Рама (проект 01.529УС ОАО "Магнитогорский металлургический комбинат") является многооборотным средством крепления и представляет собой сварную металлическую конструкцию с упорами (штырями) для установки на них рулонов с опорой на торец. Комплект из двух рам (поз. 1) устанавливают на пол платформы и закрепляют при помощи специальных торцевых упоров (поз. 2) (рисунки 307 - 310) вплотную друг к другу таким образом, чтобы на стыке рам в середине платформы образовался общий упор (штырь) для центрального рулона. Зазоры между торцевыми упорами и торцевыми стенками рамы заполняют наборами брусков (поз. 3) сечением не менее 20 x 150 мм и длиной 2870 мм. В середине платформы рамы скрепляют между собой двумя увязками (поз. 4) из проволоки диаметром 6 мм в две нити.
В зависимости от массы и наружного диаметра рулонов на платформе размещают от 2 до 5 рулонов (рисунки 307 - 310).
1 - рама; 2 - торцевой упор; 3 - брусок (доска); 4 - увязка
1 - рама; 2 - торцевой упор; 3 - брусок (доска); 4 - увязка
1 - рама; 2 - торцевой упор; 3 - брусок (доска); 4 - увязка
1 - рама; 2 - торцевой упор; 3 - брусок (доска); 4 - увязка
15.29. Размещение и крепление рулонов с открытыми торцами наружным диаметром от 1100 до 2180 мм включительно, шириной полосы от 760 до 1850 мм включительно, массой до 32 т включительно в полувагонах с использованием рам по проекту 01.529УС ОАО "Магнитогорский металлургический комбинат".
Комплект из двух рам (поз. 1) устанавливают на пол полувагона (рисунок 311) вплотную друг к другу симметрично относительно продольной и поперечной плоскостей симметрии таким образом, чтобы на стыке рам в середине полувагона образовался общий упор (штырь) для центрального рулона. Зазоры между торцевыми упорами и торцевыми дверями (стенами) полувагона заполняют наборами брусков (поз. 2) сечением не менее 100 x 100 мм и длиной 2870 мм, скрепленных досками (поз. 3) сечением не менее 40 x 100 мм, которые прибивают гвоздями (поз. 4) диаметром 5 мм и длиной 120 мм. Зазоры между рамами и боковыми стенами полувагона заполняют распорными брусками (поз. 5) сечением не менее 100 x 100 мм. В середине полувагона рамы скрепляют между собой двумя увязками (поз. 6) из проволоки диаметром 6 мм в две нити.
В зависимости от массы и наружного диаметра рулонов в полувагоне размещают от 2 до 5 рулонов (рисунки 311 - 314).
1 - рама; 2 - упорный брусок; 3 - скрепляющая доска;
4 - гвоздь; 5 - распорный брусок; 6 - увязка
1 - рама; 2 - упорный брусок; 3 - скрепляющая доска;
4 - гвоздь; 5 - распорный брусок; 6 - увязка
1 - рама; 2 - упорный брусок; 3 - скрепляющая доска;
4 - гвоздь; 5 - распорный брусок; 6 - увязка
1 - рама; 2 - упорный брусок; 3 - скрепляющая доска;
4 - гвоздь; 5 - распорный брусок; 6 - увязка
15.30. Рулоны с открытыми торцами листовой стали массой от 7 до 32 т включительно, шириной полосы от 1000 до 1850 мм включительно размещают на платформе, оборудованной многооборотным креплением по чертежу N 79662 ОАО "Новолипецкий металлургический комбинат" (398040, г. Липецк, пл. Металлургов, 2). Оборудование представляет собой металлический настил, на котором установлены 5 металлических тумб.
- непосредственно на металлический настил платформы (рисунок 315);
- на три подкладки из досок толщиной 20 - 40 мм, шириной не менее 80 мм и длиной от 1000 до 1500 мм (рисунок 316);
- на две подкладки из досок толщиной 20 - 40 мм, шириной не менее 80 мм и длиной от 1000 до 1500 мм (рисунок 317).
1 - металлическая тумба
1 - подкладка
1 - подкладка
В зависимости от массы рулонов на платформе размещают от 2 до 5 рулонов.
Допускается размещение на платформе рулонов различной массы, при этом смещение общего центра тяжести груза не должно превышать величин, установленных главой 1 настоящих ТУ. Масса рулонов, расположенных над шкворневыми балками, должна быть одинаковой.
Перед возвратом платформ проверяют состояние оборудования платформы, целостность сварных швов приварки настила к платформе, целостность сварных швов приварки штырей к настилу.
Сварные швы не должны иметь разрывов, на настиле не должно быть посторонних предметов.
15.31. Размещение и крепление в полувагонах листового металла и ленты в рулонах (упакованных и с открытыми торцами) с шириной полосы от 500 до 1500 мм включительно, массой от 2 до 16 т включительно, наружным диаметром от 900 до 1570 мм включительно, закрепленных на деревянных поддонах на образующую, с использованием двух металлических поддонов, изготовленных по чертежу N ПР 144.00.000 ОАО "Запорожсталь".
Металлический поддон размерами 5980 x 2800 x 425 мм и массой 1,9 т является многооборотным средством крепления и представляет собой плоскую цельносварную конструкцию (рисунок 318). Поперечные и боковые упоры на металлическом поддоне образуют карманы (ячейки) для размещения в них рулонов, закрепленных на деревянных поддонах.
1 - рама; 2 - поперечный упор; 3 - боковой упор; 4 - крюк
В полувагон устанавливают два металлических поддона непосредственно на пол вагона симметрично его продольной и поперечной плоскостям симметрии, при этом в середине вагона поддоны должны быть обращены друг к другу торцами с полукарманами (рисунки 319 и 320).
В карманах металлических поддонов размещают от 4 до 14 рулонов, закрепленных на деревянных поддонах.
1 - поддон; 2 - распорный брусок; 3 - соединительная доска
При погрузке 4, 6, 8, 10, 12 рулонов металлические поддоны устанавливают в полувагон вплотную к торцевым порожкам (рисунок 319).
В зазор между металлическими поддонами укладывают четыре распорных бруска сечением 100 x 100 мм и длиной по месту, которые скрепляют двумя соединительными досками размером 25 x 100 x 2800 мм и двумя гвоздями диаметром 4 мм длиной 100 мм в каждое соединение.
При погрузке 5, 7, 9, 11, 13, 14 рулонов металлические поддоны в полувагон устанавливают вплотную друг к другу (рисунок 320). В зазор между торцевым порожком и поддоном устанавливают набор деревянных поперечных упорных брусков сечением 100 x 100 мм и длиной 2800 мм, общей шириной, равной величине зазора.
- Гражданский кодекс (ГК РФ)
- Жилищный кодекс (ЖК РФ)
- Налоговый кодекс (НК РФ)
- Трудовой кодекс (ТК РФ)
- Уголовный кодекс (УК РФ)
- Бюджетный кодекс (БК РФ)
- Арбитражный процессуальный кодекс
- Конституция РФ
- Земельный кодекс (ЗК РФ)
- Лесной кодекс (ЛК РФ)
- Семейный кодекс (СК РФ)
- Уголовно-исполнительный кодекс
- Уголовно-процессуальный кодекс
- Производственный календарь на 2025 год
- МРОТ 2026
- ФЗ «О банкротстве»
- О защите прав потребителей (ЗОЗПП)
- Об исполнительном производстве
- О персональных данных
- О налогах на имущество физических лиц
- О средствах массовой информации
- Производственный календарь на 2026 год
- Федеральный закон "О полиции" N 3-ФЗ
- Расходы организации ПБУ 10/99
- Минимальный размер оплаты труда (МРОТ)
- Календарь бухгалтера на 2025 год
- Частичная мобилизация: обзор новостей
- Постановление Правительства РФ N 1875











































































































